
この記事の監修者 篠原 昌志
(株)ココテラス代表取締役/一卵性の双子/山口県出身/職人・施工会社が薄利というリフォーム業界の悪い収益構造改革をする事を目標に、定額制リフォーム「イメチェン」のFC本部を運営。
現在全国42拠点で展開中。リフォーム事例を紹介するYouTubeチャンネルの登録者は約1.7万人超(2025年12月末時点)。
定額制リフォームを全国展開中!
東京都墨田区にある築35年、5K(116㎡)の賃貸戸建て住宅をリフォーム。
今回の事例は、築古戸建て住宅のリフォームを検討している方にとって工事内容や費用面で参考になる点が満載!
築古戸建て物件で不動産投資をお考えの方も、ぜひご一読ください!
- 築古の戸建て住宅で不動産投資を行っているオーナー様からのご依頼
- 全体的にイメージチェンジ&ペット可の物件にリフォーム希望
- 既存の設備を活かしながらもデザインを統一することで、和モダンな空間にイメチェン!
それでは、今回のリフォームの詳細についてご紹介します。
1㎡1万円の定額制リフォーム「イメチェン」




「イメチェン」は1㎡(床面積)×1万円でデザイナーズ物件にイメージチェンジを図る事ができる一般住宅、賃貸物件向けの定額制のリフォームブランドを全国42店舗で展開しています。
まずはリフォームのプロに相談しませんか?
リフォーム事例満載のパンフレット配布中!

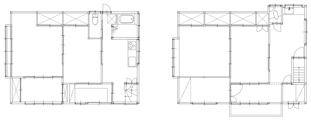
物件概要
| 物件種別 | 賃貸戸建て |
| 住所 | 東京都墨田区 |
| 竣工年月 | 1990年(リフォーム当時 築35年) |
| 構造 | 木造 |
| 間取り(面積) | 5K(約116㎡) |
| リフォーム費用 | 約207万(税込) |


リフォーム内容
- 全居室 畳撤去 → 塩ビタイル仕上げ
- 柱・枠・階段・手すり ブラック塗装(つや消し)
- 襖(ふすま) クロス張替え(ブラック系)
- 障子 張替え
- 既存建具・欄間 再利用
- インターホン位置移設(本体交換なし)
- キッチン本体 既存利用
- キッチン壁 合板 → キッチンパネル施工
- キッチン床 水対策としてエンビタイル施工
- 2階 元キッチンスペース → 洗面スペース新設
- 洗面ボウル新設(給排水既存利用/水のみ仕様)
- 洗面壁 キッチンパネル施工
- 洗面床 エンビタイル仕上げ
- 浴室 照明交換+クリーニング対応
- 階段・2階 天井 塗装仕上げ
- ダウンライト新設(階段・2階)
間取り変更なしでも印象一新!和室を活かした和モダン空間(1階)




大がかりな間取り変更は行っていません。
和室を洋室に変更していますが、建具などは既存のものを活かしてリフォーム。
デザインの段階でオーナー様とイメージを共有しながら、黒で統一した和モダンな雰囲気にイメチェンしました!
畳敷きだった居室は、すべて塩ビタイルに変更。
床上げ工事を行ってレベル調整をしています。
入退去が繰り返される賃貸物件では、クリーニングだけで対応できる塩ビタイルが床材におすすめ。
居室の中央には掘りごたつがありましたが、埋め戻して塩ビタイルで仕上げました。
また、掘りごたつでも使いやすいように低めに設置されていたインターホンは、配線を露出させ上に通して設置しています。
インターホン自体の交換は行っていません。
壁は、前所有者様のリフォームで塗装された状態のままです。
柱などの木部は茶色の木目が出ている状態でしたが、塗りつぶし塗装で黒く仕上げています。
襖(ふすま)はクロスで仕上げました。
天井は既存のまま、欄間(らんま)も手を付けず残してあります。
お部屋は黒で統一していますが、あえて塗装せずに差し色としました。


和室の畳を撤去して床だけをフローリング調に変更すると、中途半端な仕上がりになるケースが多く見られます。
しかし今回は、床材の選定や木部塗装を工夫することで、和と洋がうまく融合した和モダンな空間に仕上がりました。
押入れや天井、建具を含めてすべて洋風に変更すると、かなりのコストがかかります。
そのため、活かせる部分は残しつつ、デザインで統一感を持たせて差別化。
特に今回は賃貸に貸し出すリフォームのため、コスト削減を意識したリフォーム内容になっています。




キッチン自体は、前の所有者様が交換されたものをそのまま使うことに。
壁は合板仕上げだったため、キッチンパネルを施工しました。
床はキッチン周りのみ、既存フローリングの上から塩ビタイルを上貼りしています。
キッチンからの水による変形や変色を防ぐため、今後の賃貸運用やお手入れのしやすさを考えて塩ビタイルを採用しました。
塩ビタイルの厚さは3㎜。
フローリング部分と多少段差ができてしまいますが、見切り材を入れてきれいに納めています。
塩ビタイルで段差ができても、見切り材を入れることで違和感がなくなりました。
キッチンスペースとして視覚的にも区切られ、逆に良い仕上がりに。
2階に洗面スペースを新設|既存配管を活かした工夫




2階へ上がる階段の手すりや土台部分は、マットな質感の黒で塗装しています。
天井はシミが出ていたため、白で塗装しました。
また、ダウンライトを新たに設置しています。
2階に上がるとすぐ正面に洗面スペースを設置しています。
このスペースはもともとキッチンがあった場所だと思われますが、リフォーム前にすでに撤去済みでした。
給排水やガスの配管がそのまま残っていたため、洗面スペースとして有効活用しています。
洗面ボウルを設置し、木材はパイン材を使用。
給湯器は撤去し、水のみの仕様です。
壁は1階キッチンと同様にキッチンパネルを施工し、床は塩ビタイルで仕上げています。
こちらも既存フローリングへの上貼りのため、見切り材で収めました。
2階居室も木部塗装&襖クロス貼りで統一感あるデザインへ



2階の和室も1階と同様に畳を撤去し、塩ビタイルで仕上げています。
襖はクロスで仕上げ、障子は貼り換えました。
柱や木部はすべて黒で統一して塗装しています。
エアコンはオーナー様側で交換していただきました。
水廻り設備は交換なし!塗装+クリーニングで清潔感アップ

今回はキッチン・トイレ(1階・2階)・浴室などの水廻り設備はいずれも交換していません。
床・壁ともに既存のまま活用しています。
木部は塗装し、浴室の照明交換、各箇所のクリーニングのみ行いました。
何度かリフォームされていた物件なので、塗装とクリーニングのみで清潔感ある仕上がりに。
このお部屋のリフォーム費用総額と事例動画
今回の物件では、前所有者の方がこれまでに何度かリフォームされていた経緯がありました。
そのため、壁や設備は既存のまま活かし、床工事と木部の塗装がメインのリフォーム内容になっています。
リフォーム費用総額は、税込み207万円でした。
リフォームの詳しい内容をご覧になりたい方は、こちらの動画もご視聴ください。
今回の工事内容は、イメチェンの「1㎡×1万円パック」外となっています。

画像引用:定額制リフォーム「イメチェン」とは?/イメチェン
イメチェンといえば「1㎡×1万円」。
パック内容以外の工事はできないのでは?とお考えのオーナー様も多いのですが、それ以外の施工ももちろん可能です!
イメチェンでは、物件の状態やご予算に合わせて、活かせる部分は活かし、コストダウンしながら進める考え方でリフォームをご提案しております。
「利回りの高い築古物件を購入してリフォーム・リノベーションしたい」とお考えの方は、ぜひイメチェンまでご相談ください!
築古戸建のリフォーム・リンベーション事例

この記事の監修者 篠原 昌志
(株)ココテラス代表取締役/一卵性の双子/山口県出身/職人・施工会社が薄利というリフォーム業界の悪い収益構造改革をする事を目標に、定額制リフォーム「イメチェン」のFC本部を運営。
現在全国42拠点で展開中。リフォーム事例を紹介するYouTubeのチャンネル登録者は約1.7万人。
1㎡1万円の定額制リフォーム「イメチェン」に相談してみませんか?
定額制リフォーム「イメチェン」は1㎡(床面積)×1万円でデザイナーズ物件にイメージチェンジを図る事ができる一般住宅、賃貸物件向けの定額制のリフォームブランドを全国で展開しています。
施工エリアの確認だけでも大歓迎
見積もり依頼も大歓迎です!
リフォーム事例満載のパンフレット配布中!

定額制リフォーム「イメチェン」施工可能エリア ※詳細はお問い合わせください
| 北関東エリア | 群馬県前橋市周辺 / 茨城県の一部 |
| 関東エリア | 埼玉県の一部 / 東京都の一部 / 神奈川県の一部 / 千葉県の一部 |
| 中部エリア | 静岡県静岡市・焼津市周辺 / 愛知県名古屋市・稲沢市周辺 |
| 関西エリア | 京都府京都市周辺 / 大阪府大阪市・枚方市周辺 / 兵庫県神戸市・明石市周辺・姫路市周辺 |
| 九州エリア | 福岡県福岡市周辺・北九州市周辺 |
オンラインリフォーム相談「イメチェンコンシェルジュ」

イメチェンコンシェルジュとはオンライン(GoogleMeet)でリフォームの無料相談が出来るサービスです。
リフォームのプロがあなたのお悩みを解決致します。
60分と限られた時間になりますので、事前に物件詳細(平面図・室内写真)やご希望の工事内容を共有頂ければ、より内容の濃い面談が可能になります。

定額制リフォーム「イメチェン」間取り別リフォーム事例
定額制リフォーム「イメチェン」金額別リフォーム事例
定額制リフォーム「イメチェン」お部屋の大きさ別リフォーム事例
定額制リフォーム「イメチェン」デザイン別リフォーム事例
お部屋をイメチェンされたお客様の声





























