
この記事の監修者 篠原 昌志
(株)ココテラス代表取締役/一卵性の双子/山口県出身/職人・施工会社が薄利というリフォーム業界の悪い収益構造改革をする事を目標に、定額制リフォーム「イメチェン」のFC本部を運営。
現在全国42拠点で展開中。リフォーム事例を紹介するYouTubeチャンネルの登録者は約1.7万人超(2025年8月末時点)。
定額制リフォームを全国展開中!
神奈川県横浜市にある築25年の木造住宅を「もっと快適にしたい」
そんなご依頼から始まった今回のリノベーション。
イメチェン品川南大井店は、施主様の熱い想いを全て受け止め、その「こだわり」をいかに実現できるかを徹底的に検討・調査しました。
そして、その想いを全て詰め込んだ理想の住まいをついに実現!
これから、施主様の理想を叶えたリノベーションの全貌をご紹介していきます。
ぜひ最後までご覧ください。
- 築25年を迎えられたタイミングで、大規模なリノベーションをご検討され、この度ご相談をいただきました
- Ⅱ型キッチンを採用し、作業効率を高めた使いやすいキッチンに変更
- 広々とした浴槽で、心から安らげる極上のバスタイムを実現
それでは、今回のリノベーションの詳細についてご紹介します。
一般住宅(分譲マンション・戸建)向け定額制リフォーム「イメチェン」

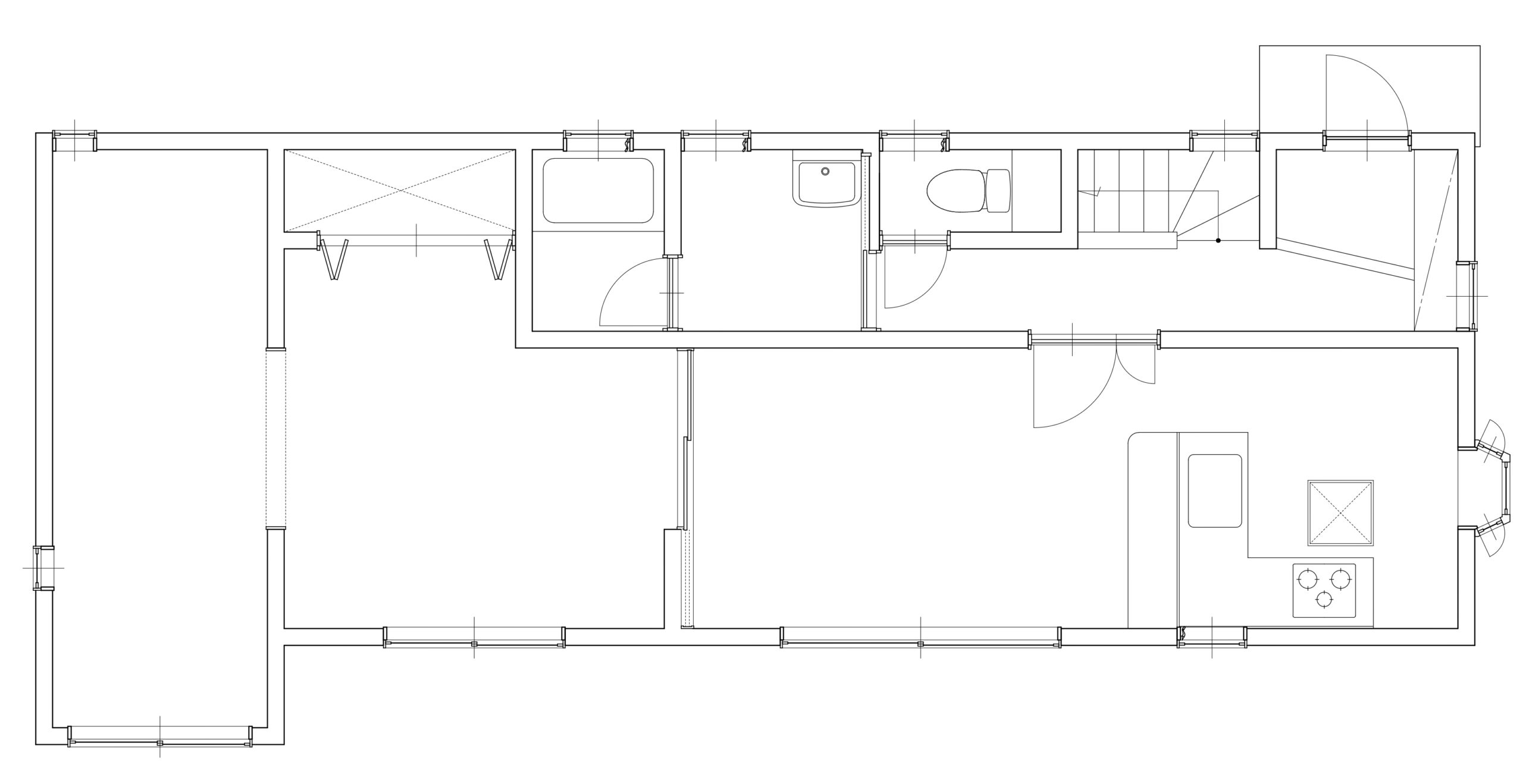
リフォーム前

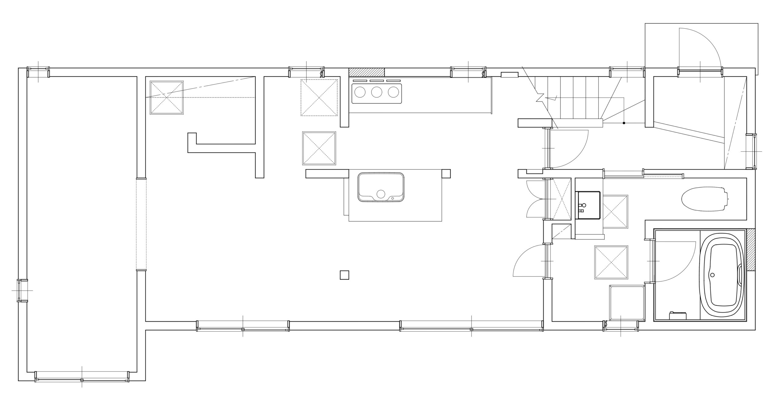
リフォーム後
定額制リフォーム「イメチェン」とは、1㎡(床面積)×1万円から始めることができる中古住宅(分譲マンション・戸建住宅)をオシャレなデザイナーズ住宅にイメージチェンジできる「定額制リフォーム」です。
全国42店舗で展開中!
中古住宅のリフォーム事例満載のパンフレット配布中!

物件概要


リノベーション施工内容
- 塩ビタイル施工(床)
- キッチン移設
- 水廻り移設
- Ⅱ型キッチン交換
- パントリー造作
- クロス張替え
- 建具交換(リビング・水廻り・玄関)
- ニッチ造作
- 収納造作
- 内窓(インプラス)施工
- 下地施工(壁掛けテレビ)
- 照明交換(ダウンライト・ペンダントライト)
- ユニットバス交換
- 洗面台交換
- 床下収納施工
- 温水洗浄便座交換
- コンセント増設
- 分電盤交換
- その他
1㎡×1万円の定額制リフォーム「イメチェン」は全国展開中!



「イメチェン」は1㎡(床面積)×1万円でデザイナーズ物件にイメージチェンジを図る事ができる一般住宅、賃貸物件向けの定額制のリフォームブランドを全国で展開しています。
築古のアパート、マンション、戸建てはイメチェン可能です!
お見積りは無料です!
パナソニックのラクシーナが叶えた使いやすいⅡ型キッチン





当初は、大型のアイランドキッチンの設置を計画していましたが、構造上の柱により設置を断念。
工事の途中でⅡ型キッチンへ変更しました。
Ⅱ型キッチンも元々ご検討されていたため、スムーズに仕様変更を進めることができました◎
キッチンはパナソニックのラクシーナを採用。
トリプルIHを搭載しており、ワンプッシュで操作盤が出現する優れた機能性が魅力。
収納面でも、物の出し入れが容易な大容量収納を完備しています。
面倒な収納もメンテナンスを楽にしてくれるキッチン、ラクシーナ。
傷・汚れに強いシンクや油汚れを毎回自動で掃除してくれるレンジフード(ほっとくリーンフード)があります。
1500サイズのキッチンと、900サイズのカップボードを一体化させました。
この工夫により、作業効率が格段に上がり、調理を心から楽しめる空間が実現しました。
浴室だったスペースは、機能的なパントリーへと生まれ変わりました。
特にこだわったのは、使い勝手を最優先に考えた設計です。
冷蔵庫専用のコンセントはもちろん、施主様のご要望に基づき、配置予定の家具に合わせてコンセントの高さを綿密に調整しました。
シーリングも設置済みで、お好みのペンダントライトなど自由な照明コーディネートを楽しんでいただけます。
ネイビーの扉が主役!木目✖️真鍮で叶えるスタイリッシュなリビング
リビングは、壁紙を張り替え、床は塩ビタイルを上貼りしました。
リビングの柱にはキッチンと同じ木目調のクロスを張り、空間に統一感を持たせています。
扉はパナソニックのベリティス(クラフトレーベル)を採用。
真鍮のレバーハンドルで、スタイリッシュな雰囲気をプラスし、細部までこだわったお気に入りの空間になりました。
パナソニックの建材。
ドアだけでなく、床、階段、収納までラインナップが揃っているので、住まいの統一感がアップします。





将来のコストとメンテナンス性を考慮し、ダウンライトは敢えて電球交換が可能なタイプを採用しました。
また、コンセントのスイッチプレートには、デザイン性の高いパナソニックのアドバンスシリーズを採用し、分電盤も一新しています。
電球交換が可能なタイプは初期費用は高くなりますが、器具交換が不要なため長期的にはコスパに優れます◎
リビング内には、新たに壁を造作し深めのニッチを設けました。
ニッチには、インターホン・給湯器のリモコン・リビングのスイッチを全てまとめて設置。
生活感が出やすい機器類を集約させ、すきっりとした空間を保てるようにしています。

収納内部には、空間のアクセントとなるクロスを張りました。
施主様ご自身でアレンジを楽しんでいただけるよう、敢えて棚やパイプハンガーなどは設けず、余白を残した収納にしているのもポイントです◎

冬場の寒さ対策と遮音性アップのため、LIXILのインプラス(内窓)を設置しました。
窓のサイズに合わせて特注品を2箇所に設置。
複層ガラスを選び、国の補助金対象となるグレードで施工しています。
大掛かりな工事が不要で、外からの騒音を軽減し室内の音が外に漏れるのも防いでくれます。
テレビを壁に掛けるための下地を施工しました。
最大のこだわりは配線の処理です。
テレビの裏側の収納スペースに、テレビジャックやコンセントを新設し、通信・電源機器をすべて集約。
リビング側から機器や配線が一切見えない、ミニマルな空間を実現しました。
また、収納には枕棚のみを設置。
棚やパイプハンガーは敢えて設けず、施主様がお選びになる収納ユニットの設置に柔軟に対応できる設計にしています。





1㎡×1万円の定額制リフォーム「イメチェン」は全国展開中!



「イメチェン」は1㎡(床面積)×1万円でデザイナーズ物件にイメージチェンジを図る事ができる一般住宅、賃貸物件向けの定額制のリフォームブランドを全国で展開しています。
築古のアパート、マンション、戸建てはイメチェン可能です!
お見積りは無料です!
「ゆとり」と「使いやすさ」を追求した水廻り空間
洗面台はLIXILのカスタムバ二ティを設置しました。
アクセントとなるペンダントライトも取り付け、おしゃれな空間を演出しています。
洗面台裏のスペースには下地を施しました。
これにより、棚やキャビネットなどお好みの収納を後から追加でき、自由度の高い空間活用を可能にしています。
造作洗面台のようなデザイン性と、既製品のお手軽さ・機能性を両立させた、新しいタイプのカウンター洗面台です。


トイレはTOTOの高級モデルネオレストを採用しました。
排水位置をずらし、背面側に30cmのスペースを確保しています。
このスペースには、施主様ご希望の収納を自由に設置できるよう施工しています。
さらに、空間のアクセントとしてデザイン性の高いペンダントライトも取り付けました。
TOTOの最高級タンクレストイレシリーズです。
「綺麗除菌水」と「縁無し形状」による清潔性と、節水性能の高さがネオレストの大きな強みです。

浴槽はTOTOのサザナ(1616サイズ)を採用し、1216サイズからの大幅なサイズアップを実現しました。
施主様からの「浴室を大きくしたい」というご要望に応えるため、浴室全体の位置をずらすことで、このサイズアップに対応しています。
リラックスして入浴できるように人間工学をもとに設計されたバスタブや、汚れ・カビがつきにくい素材が特徴のユニットバス。


洗面台下にはストック品の収納に便利な深型の床下収納を、脱衣所には日常的に出し入れしやすい浅型の床下収納を設置しました。
更に、洗面脱衣所はリビングと廊下の2方向から出入りできる動線とし、家事効率と家族の使いやすさを両立させています。
構造上重要な大引がありましたが、大工の尽力により安全に浅型の床下収納を設置することができました◎
玄関扉は、既存の枠の上に新しい扉の枠を取り付ける、カバー工法を用いて交換しました。
壁や外壁を壊すことなく、既存の枠を残したまま、その上に新しい枠を被せて(カバーして)扉を設置する工法。
従来の大掛かりな解体工事が不要なため、工期を大幅に短縮でき費用も抑えることが可能です。

リノベーション動画と費用総額!使用設備もご紹介
今回のリノベーション費用は総額1,140万円(税込)でした。
今回の事例のように、築25年木造住宅の1階のみ改修を行い、2階はそのまま残すリノベーションも可能です。
イメチェンは、お客様の様々なニーズに柔軟に対応いたします。
・フルリノベーションで大規模な間取り変更
・部分改修で必要な箇所だけを刷新
・住みながらのリノベーションにも対応
お客様の理想を、私たちと一緒にカタチにしませんか?
まずは、お気軽にこちらからお問い合わせください。
今回使用した主要設備はこちら▼
- キッチン▶︎パナソニック/ラクシーナ
- 浴室▶︎TOTO/サザナ(1616サイズ)
- トイレ▶︎TOTO/ネオレスト
- 洗面台▶︎LIXIL/カスタムバニティ
- 建具▶︎パナソニック/ベリティス(クラフトレーベル)
- 内窓▶︎LIXIL/インプラス
イメチェン品川南大井店は、お客様との会話を大切にし、ご要望を丁寧にヒアリングすることで、理想のリフォーム・リノベーションを実現できるよう努めております。
お客様のご希望やご予算に合わせたご提案も可能ですので、ぜひお気軽にこちらからご相談ください。

この記事の監修者 篠原 昌志
(株)ココテラス代表取締役/一卵性の双子/山口県出身/職人・施工会社が薄利というリフォーム業界の悪い収益構造改革をする事を目標に、定額制リフォーム「イメチェン」のFC本部を運営。
現在全国42拠点で展開中。リフォーム事例を紹介するYouTubeのチャンネル登録者は約1.7万人。
一般住宅(分譲マンション・戸建)をおしゃれなお部屋へ!
定額制リフォーム「イメチェン」とは、1㎡(床面積)×1万円から始めることができる中古住宅(分譲マンション・戸建住宅)をオシャレなお部屋にイメージチェンジできる「定額制リフォーム」です。
施工エリアの確認だけでも大歓迎
見積もり依頼も大歓迎です!
中古住宅のリフォーム事例満載のパンフレット配布中!

定額制リフォーム「イメチェン」施工可能エリア
| 北関東エリア | 群馬県前橋市周辺 / 茨城県の一部 |
| 関東エリア | 埼玉県の一部 / 東京都の一部 / 神奈川県の一部 / 千葉県の一部 |
| 中部エリア | 静岡県静岡市・焼津市周辺 / 愛知県名古屋市・稲沢市周辺 |
| 関西エリア | 京都府京都市周辺 / 大阪府大阪市・枚方市周辺 / 兵庫県神戸市・明石市周辺・姫路市周辺 |
| 九州エリア | 福岡県福岡市周辺・北九州市周辺 |
オンラインリフォーム相談「イメチェンコンシェルジュ」

イメチェンコンシェルジュとはオンライン(GoogleMeet)でリフォームの無料相談が出来るサービスです。
リフォームのプロがあなたのお悩みを解決致します。
60分と限られた時間になりますので、事前に物件詳細(平面図・室内写真)やご希望の工事内容を共有頂ければ、より内容の濃い面談が可能になります。

間取り別リフォーム・リノベーション事例
金額別リフォーム・リノベーション事例
お部屋の大きさ別リフォーム・リノベーション事例
定額制リフォーム「イメチェン」デザイン別リフォーム事例
お部屋をイメチェンされたお客様の声



























