
この記事の監修者 篠原 昌志
(株)ココテラス代表取締役/一卵性の双子/山口県出身/職人・施工会社が薄利というリフォーム業界の悪い収益構造改革をする事を目標に、定額制リフォーム「イメチェン」のFC本部を運営。
現在全国42拠点で展開中。リフォーム事例を紹介するYouTubeチャンネルの登録者は約1.7万人超(2025年12月末時点)。
定額制リフォームを全国展開中!
兵庫県西宮市にある築51年を迎えた分譲マンションをリノベーション。
長年住み慣れた大切なご実家を、現代の暮らしに合った住まいに再生されることになりました。
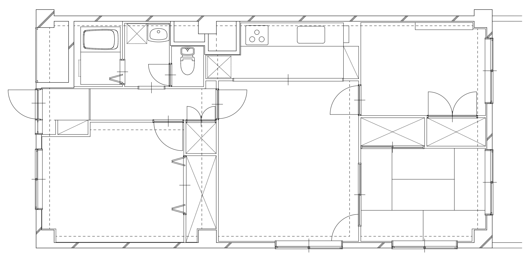
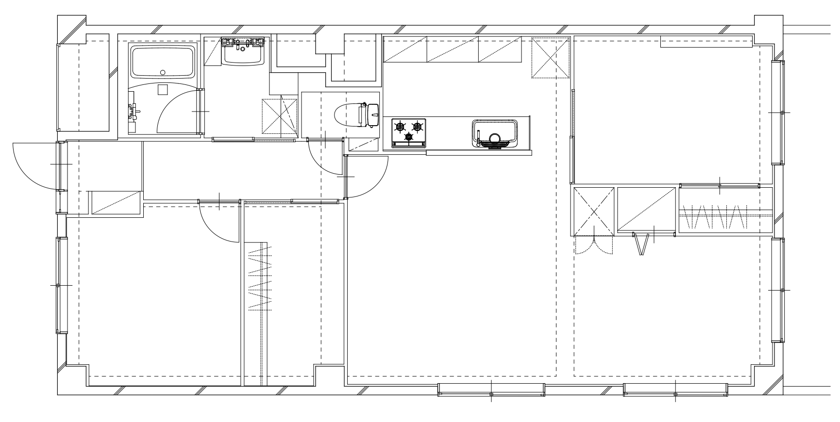
細かく仕切られた3DKという間取りは、現代のライフスタイルには少し窮屈なため、2LDKに間取り変更フルリノベーションを実施。
大切な記憶はそのままに、劇的なイメチェンを遂げたお部屋!ビフォーアフターをぜひご覧ください。
- 和室とキッチンを繋げ、広々いリビングにしたい
- 壁付けキッチンを対面式に変えて、家族の様子が見渡せるようにしてほしい
- 和室との間仕切りを撤去し開放感あふれるLDKに!
- 配管の課題を克服し、理想の対面式キッチンを実現
- 家族全員の荷物を一括管理できる大容量のウォークインクローゼットを新設
それでは、今回のリノベーションの詳細についてご紹介します。
1㎡1万円の定額制リフォーム「イメチェン」

リフォーム前

リフォーム後

リフォーム前

リフォーム後
「イメチェン」は1㎡(床面積)×1万円でデザイナーズ物件にイメージチェンジを図る事ができる一般住宅、賃貸物件向けの定額制のリフォームブランドを全国42店舗で展開しています。
リフォーム事例満載のパンフレット配布中!

物件概要


リノベーション施工内容
- 3DK→2LDK(WIC)変更
- 和室・間仕切り撤去
- 塩ビタイル施工(床)
- 収納・仏壇置き場・WIC施工
- ロールスクリーン設置(専用補強含む)
- エアコンコンセント容量変更
- 内窓施工(5箇所)
- 廊下・キッチン拡張
- 対面式キッチン交換
- 浴室交換
- トイレ・洗濯機置き場移設・交換
- 給水・給湯管の配管更新
- クロス張替え(アクセントクロス含む)
- 建具交換
- 洗面化粧台交換
- コンセント新設・増設
- 下駄箱交換
- 照明交換
- インターホン交換
- その他
1㎡×1万円の定額制リフォーム「イメチェン」は全国展開中!



「イメチェン」は1㎡(床面積)×1万円でデザイナーズ物件にイメージチェンジを図る事ができる一般住宅、賃貸物件向けの定額制のリフォームブランドを全国で展開しています。
築古のアパート、マンション、戸建てはイメチェン可能です!
お見積りは無料です!
東リ「ロイヤルウッド」で彩る開放感あふれる広々LDK
和室との間仕切りを撤去し、開放感あふれるLDKを実現しました。
リビングの床材には、デザイン性と耐久性に優れた東リのロイヤルウッド(塩ビタイル)を採用。
分譲マンションの管理規約に配慮して「置床工法」で床を底上げし、しっかりと遮音性能を確保した上で施工しています。


一間分の押し入れは一旦解体し、施主様のご要望に沿って「仏壇置き場」と「折れ戸付き収納」に作り替えました。
仏壇置き場は最適な高さにしました。
専用のコンセントも新設し、下段には仏具セットをすっきりと収められるスペースを造りました。
折れ戸収納は、中段を新たに造りクロスを張って、床は塩ビタイルで仕上げ統一感を出しています。
奥行きを広く取っているため、大きな荷物もゆとりを持って収納可能に◎
収納スペースの壁はあえて厚く作りました。
ライフスタイルの変化に合わせて、間仕切りを建てるなどの再リフォームが容易に行えるよう、先を見据えた設計を行っています。
家具の配置を考え、折れ戸の向きを調整。
このひと工夫が毎日の使いやすさを左右します◎


リビングの開放感を損なうことなく、必要に応じて空間を仕切れるよう、天井にはロールスクリーンを新設しました。
普段はスクリーンを上げ広々とした空間に、来客時などプライバシーを確保したい時にはサッと下ろすだけでOK!
また、リビングからもお仏壇を見守れるよう、設置位置やサイズを緻密に計算。
コストを抑えつつもライフスタイルに寄り添う、自由度の高い住まいを実現しました。
他にも、長く安全にお使いいただけるよう、天井には専用の補強を施し、耐荷重・強度面もしっかりと確保。
機能美と安心を兼ね備えた工夫です。
100Vだったエアコン専用コンセントを、広くなったリビングに合わせて200Vに変更しました。
冷媒管は専用の配管穴を利用。スムーズに設置できます。
リビングを拡張するなら、エアコンの電源(コンセント容量)の見直しもあわせて考えるのがおすすめです。
施主様のご要望により、内窓はLIXILのインプラスを設置しています。
補助金の費用対効果が最も高いグレードを選択。
2026年も補助金制度が継続されるため、内窓設置は非常におすすめのリフォームです◎
今ある窓に後付けできる内窓で、断熱性・防音性がアップ。
冬は暖かく夏は涼しく、快適な室内環境に。結露も抑えられ、お手入れもラクです。
シエラSで実現!配管課題を克服した対面キッチン
壁付けキッチンは撤去し、対面式キッチンに変更しました。
デザインバランスのために作られていた空洞の柱を解体し、食器棚の配置を見直し。
デッドスペースを冷蔵庫置き場として有効活用しました。
また、キッチンを解体してみると、配管が想定より高い位置にあり、そのまま配管に合わせて床上げするとキッチンの作業台の位置が高くなりすぎてしまうことが判明。
配管の接続位置を最適な場所から分岐させて、対面式キッチンを実現しています。
この配管状況を確認した上でLIXILのシエラSを設置。
足元までしっかり活用できるスライドストッカープランに加え、食洗機も完備しています。
キッチン収納と背面収納の扉を同時に開けても、邪魔にならない距離を確保。
カップボード下にはゴミ箱専用のスペースを設けました。
さらに、調理家電用にアース付きコンセントを新設し、手元にもコンセントを増設。
サイドにはエンドパネルを設置し、見た目の美しさと機能性を兼ね備えたキッチン空間になりました。
デザインや機能だけでなく、居心地の良さよ使い心地を重視したシステムキッチン。
調理動線を意識して設計されています。(LIXIL公式HP参照)


キッチンの床には、東リのロイヤルストーン(塩ビタイル)を採用しました。
本物の目地棒を入れたように見えるデザインのものを選定し、質感高く仕上げています。
今回特にこだわったのはアクセントクロス。
タイルの柄とクロスの縁がずれると違和感が出てしまうため、しっかりと「割り付け」をし、コーナー部分まで自然に繋がるよう調整しました。
細部までミリ単位で計算することで、空間全体のデザイン完成度を高めています。
クロスや床材などの材料を、壁や広さに合わせてどう並べるか決めること。


建具は、施主様がショールームにて選ばれたLIXILのラシッサSを設置。
ガラス越しに光が届くデザインが魅力です。
対面式キッチンの拡張に伴い、扉の位置を数センチ単位で緻密に調整。
廊下を20cmほど広げ、スムーズな動線とゆとりあるスペースを確保しました。
インターホンも新設しました。
カラーバリエーションや模様だけでなく、ドアハンドルや金物の種類が豊富。
好みに合わせて自分だけのインテリアを演出してくれる建具です
1㎡×1万円の定額制リフォーム「イメチェン」は全国展開中!



「イメチェン」は1㎡(床面積)×1万円でデザイナーズ物件にイメージチェンジを図る事ができる一般住宅、賃貸物件向けの定額制のリフォームブランドを全国で展開しています。
築古のアパート、マンション、戸建てはイメチェン可能です!
お見積りは無料です!
コンパクトな寝室+収納力が高いウォークインクローゼット(WIC)
クローゼットのある7畳の洋室には間仕切りを新設し、約5畳の寝室と広々としたウォークインクローゼットに分けました。
寝室横の廊下を拡張したため寝室は以前より面積を絞りましたが、くつろぐには十分な広さです。
残りのスペースは家族全員の荷物を一括管理できる大容量のウォークインクローゼットに生まれ変わりました。
ウォークインクローゼットには長さ2.7mの枕棚を設置し、重量物にも耐えられるよう補強板で強度を高めています。
さらに、ダウンライトの増設やコンセントの新設を行い、使いやすさUP!




【広さと安全◎】配置で生まれ変わった理想の水廻り
以前は脱衣室を経由しなければならなかったトイレの動線を、廊下からトイレに直接行けるよう設計しなおしました。
将来を見据えた安全な暮らしを一番に考え、廊下からトイレ入口まで段差のないバリアフリーを重視。
排水に必要な勾配をしっかり確保するため、便器の下のみ床を24mmほど上げて配管ルートを確保しつつ、歩行スペースはフラットに仕上げました。
リビング建具の位置をスライドさせ、トイレにも収納を設けました。
自由な高さに調整できる棚柱と棚板を設置したので、ストック品の収納など大きさや量に合わせて収納パターンを変えられます。
配置を最適化したことで、使い勝手の良いトイレ空間に生まれ変わりました。
掃除がしやすい素材で汚れにくく、清潔感をキープ。
シンプルながら使い勝手の良い設計で、毎日を快適にサポートします。


トイレだった場所を洗濯機置き場に変更しました。
洗濯機の上部には、高さを変えられる可動棚と、使いやすい位置にパイプハンガーを新設。
洗濯機横にはあえて高めに設定した作業台を設置。
洗濯物の一時置き場としてなど、生活動線に「あると嬉しいスペース」を作りました。
洗面台にはお手入れしやすく使い勝手に定評のあるLIXILのピアラを採用し、快適に過ごせるこだわりのサニタリー空間が完成しました。
広々としたボウルとたっぷりの収納で、朝の身支度がスムーズに。お掃除もラクで、忙しい毎日にうれしい機能が満載です。


1116サイズから、LIXILのリノビオV(1216サイズ)に変更。
浴室の拡張にあわせて、壁も新しく造作しました。
特にこだわったのが、洗面台と浴室の間にできた「使いにくい隙間」の解消です。
ただ埋めるのではなく壁を造作することで、見た目もスッキリとお掃除のしやすい空間に仕上がりました。
それぞれのライフスタイルに合ったバスルームを選べるリノビオV。


玄関は「ラシッサS」で収納力◎!
玄関収納は、LIXILのラシッサSを選定しました。
中央に小物が置けるカウンター(コの字型)を採用し、上部には吊り戸棚を設置することで、利便性と収納力が大幅にアップ。
色味をホワイト基調に統一したことで、玄関がパッと明るい雰囲気に。
人感センサー付き照明も設置しています。
リノベーション動画と費用総額!使用設備もご紹介
築51年3DK78㎡の分譲マンションをファミリー向けにフルリノベーションした今回の事例は、総額770万円(税込)でした。
リノベーションの金額には、見た目を新しくするだけではなく以下の内容も含まれています。
- 水廻りの設備の全面更新
- 暮らしに合わせたレイアウト変更
- 給水・給湯管の配管更新
他にも国の補助金制度を活用することで、トータルコストを抑える工夫をしました。
まず、断熱性を高めるための内窓設置(5箇所)には、先進的窓リノベ事業から約21万8000円。
そして、食洗機の設備など家事負担を軽減する設備に関しては、子育てグリーン住宅支援事業から約21万7000円がそれぞれ還元されます。
補助金を受け取るには、申請が必要です。
先進的窓リノベ事業については2026年も継続が決まっており、今からリノベーションの計画をされる方も活用できます!
「古いマンションをどこまで再生できるか知りたい」「補助金を最大限活用してリフォームしたい」など、そんな思いをお持ちの方は、イメチェン神戸店までご相談ください。
お客様の理想の住まいづくりを丁寧にサポートいたします。
まずはこちらから、お気軽にお問い合わせください。
今回使用した主要設備はこちら▼
- キッチン▶︎LIXIL/シエラS(間口2550)
- 建具▶︎LIXIL/ラシッサS(カラー:クリエペール)
- 下駄箱▶︎LIXIL/ラシッサS(カラー:クリエアイボリー)
- 洗面化粧台▶︎LIXIL/ピアラ(間口750)
- 浴室▶︎LIXIL/リノビオV(1216サイズ)
- トイレ▶︎LIXIL/アメージュ便器
- 内窓▶︎LIXIL/インプラス

この記事の監修者 篠原 昌志
(株)ココテラス代表取締役/一卵性の双子/山口県出身/職人・施工会社が薄利というリフォーム業界の悪い収益構造改革をする事を目標に、定額制リフォーム「イメチェン」のFC本部を運営。
現在全国42拠点で展開中。リフォーム事例を紹介するYouTubeのチャンネル登録者は約1.7万人。
1㎡1万円の定額制リフォーム「イメチェン」に相談してみませんか?
定額制リフォーム「イメチェン」は1㎡(床面積)×1万円でデザイナーズ物件にイメージチェンジを図る事ができる一般住宅、賃貸物件向けの定額制のリフォームブランドを全国で展開しています。
施工エリアの確認だけでも大歓迎
見積もり依頼も大歓迎です!
リフォーム事例満載のパンフレット配布中!

定額制リフォーム「イメチェン」施工可能エリア ※詳細はお問い合わせください
| 北関東エリア | 群馬県前橋市周辺 / 茨城県の一部 |
| 関東エリア | 埼玉県の一部 / 東京都の一部 / 神奈川県の一部 / 千葉県の一部 |
| 中部エリア | 静岡県静岡市・焼津市周辺 / 愛知県名古屋市・稲沢市周辺 |
| 関西エリア | 京都府京都市周辺 / 大阪府大阪市・枚方市周辺 / 兵庫県神戸市・明石市周辺・姫路市周辺 |
| 九州エリア | 福岡県福岡市周辺・北九州市周辺 |
オンラインリフォーム相談「イメチェンコンシェルジュ」

イメチェンコンシェルジュとはオンライン(GoogleMeet)でリフォームの無料相談が出来るサービスです。
リフォームのプロがあなたのお悩みを解決致します。
60分と限られた時間になりますので、事前に物件詳細(平面図・室内写真)やご希望の工事内容を共有頂ければ、より内容の濃い面談が可能になります。

定額制リフォーム「イメチェン」間取り別リフォーム事例
定額制リフォーム「イメチェン」金額別リフォーム事例
定額制リフォーム「イメチェン」お部屋の大きさ別リフォーム事例
定額制リフォーム「イメチェン」デザイン別リフォーム事例
お部屋をイメチェンされたお客様の声





























