
この記事の監修者 篠原 昌志
(株)ココテラス代表取締役/一卵性の双子/山口県出身/職人・施工会社が薄利というリフォーム業界の悪い収益構造改革をする事を目標に、定額制リフォーム「イメチェン」のFC本部を運営。
現在全国42拠点で展開中。リフォーム事例を紹介するYouTubeチャンネルの登録者は約1.7万人超(2025年12月末時点)。
定額制リフォームを全国展開中!
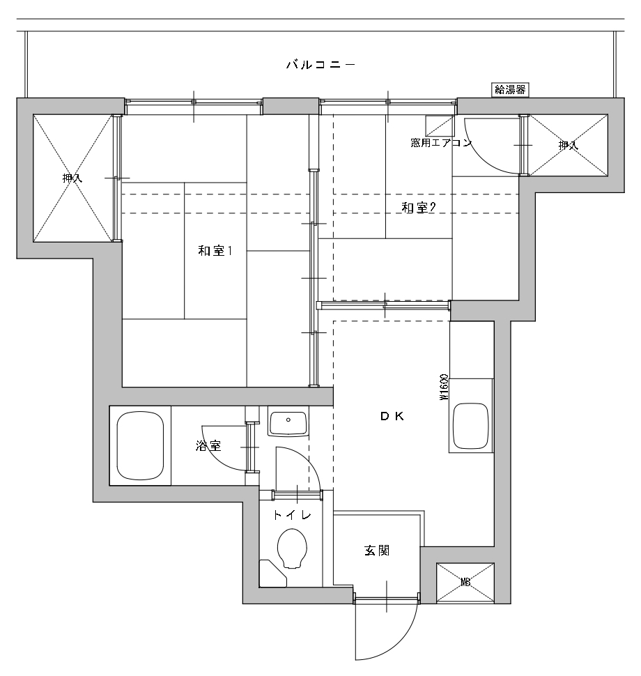
今回の物件は、東京都品川区にある築48年(23㎡)2Kのお部屋です。
オーナー様が原状回復工事を依頼できる会社をお探しのところ、イメチェンにご依頼いただきました。
担当したのはイメチェン品川南大井店です。
今回のリノベーションで鍵となったのは「メリハリ」です。
活かせるものは活かし、コストを抑えながらも市場で戦える強力な物件へと変貌を遂げました。
築古物件が、いかにして競争力のある部屋に生まれ変わったのか?
ぜひ、そのビフォーアフターを最後までご覧ください。
- 原状回復工事を依頼できる会社を探していた
- コストを抑えつつ家賃アップにつながる物件価値向上策を提案してほしい
- 和室二間を快適な洋室に変更
- 昔ながらの狭い浴室を、快適なシャワールームに変更
それでは、今回のリフォームの詳細についてご紹介します。
1㎡1万円の定額制リフォーム「イメチェン」

リフォーム前

リフォーム後

リフォーム前

リフォーム後
「イメチェン」は1㎡(床面積)×1万円でデザイナーズ物件にイメージチェンジを図る事ができる一般住宅、賃貸物件向けの定額制のリフォームブランドを全国42店舗で展開しています。
リフォーム事例満載のパンフレット配布中!

物件概要


リフォーム施工内容
- 2K→1LDKに間取り変更
- 和室→洋室変更
- キッチン交換
- ガス管・ガス栓撤去
- 造作カウンター設置(コンセントも完備)
- 浴室→シャワールーム変更
- レンジフード交換
- キッチン内ボックス造作
- 屋外洗濯機置き場移設
- 冷蔵庫置き場新設
- 洗面台交換
- トイレ交換(温水洗浄便座設置)
- 壁造作
- ダイノックシート施工
- 塩ビタイル施工
- クロス張替え
- エアコン新設(2台)
- ソフト巾木張替え(一部)
- 天井・窓枠塗装
1㎡×1万円の定額制リフォーム「イメチェン」は全国展開中!



「イメチェン」は1㎡(床面積)×1万円でデザイナーズ物件にイメージチェンジを図る事ができる一般住宅、賃貸物件向けの定額制のリフォームブランドを全国で展開しています。
築古のアパート、マンション、戸建てはイメチェン可能です!
お見積りは無料です!
和室がモダンな洋室に!リフォームで叶える理想の暮らし


以前は、6畳と4畳半の和室が二間ある2Kのお部屋でした。
そこで4畳半の和室は畳を撤去し、下地を底上げする工事を施工。
その上から耐久性に優れたフロアタイルを張ることで、モダンなリビングへと生まれ変わりました。
リビング内には新しく高めのカウンターを設置し、コンセントも完備しました。
カウンターには、お気に入りの椅子を置いてダイニングスペースにするなど、ライフスタイルに合わせて自由にアレンジしていただけます。


収納は、あえて扉のないオープン収納へ変更しました。
収納内には、衣類をサッと掛けれるパイプハンガーを設置。
棚の底板にはお手入れが簡単なクッションフロアを、側面はダイノックシートで仕上げました。
「見せる収納」として小物をおしゃれに飾ったりと、自由にアレンジが楽しめるのが魅力です◎


6畳の和室を完全個室へリフォーム!
6畳の和室は、壁を新設して独立した個室へ変更しました。
床は畳を全て撤去し、下地を底上げして高さを調整、その上からフロアタイルを張って仕上げています。
壁には清潔感のある白いクロスを張り、天井や掃き出し窓の枠は塗装で仕上げました。
新設した壁にはソフト巾木を張り、細部まで綺麗に仕上げています。


押入れの扉には、ダイノックシートを張りお部屋全体の雰囲気に馴染むよう施工しています。
空調設備についても、従来の窓付けエアコンから壁付けエアコンに変更しました。
壁を新設し個室になったことで、冷暖房の効率が格段にアップし、一年中快適に過ごせる理想のプラベート空間が完成しています。
1㎡×1万円の定額制リフォーム「イメチェン」は全国展開中!



「イメチェン」は1㎡(床面積)×1万円でデザイナーズ物件にイメージチェンジを図る事ができる一般住宅、賃貸物件向けの定額制のリフォームブランドを全国で展開しています。
築古のアパート、マンション、戸建てはイメチェン可能です!
お見積りは無料です!
ガス管撤去とレイアウト変更!スッキリと開放的なキッチンに
室内を這っていた無骨なガス管を全て撤去したことで、圧迫感が解消され驚くほどスッキリとしたキッチンに生まれ変わりました。
もともと給湯器が別系統だったことに加え、今回は100Vの一口IHクッキングヒーターを採用。
これにより、室内へのガス配管を完全に無くすことが可能になりました。
キッチンは従来の壁付け型キッチンから、パナソニックの対面式キッチン(開口1200)へと刷新。
壁付け型キッチンを90度回転させたレイアウト変更と、レンジフードの新設により視覚的な広がりだけでなく、機能面も大幅に向上しています。
100Vの一口IHクッキングヒーターなら、契約アンペアが低い一人暮らしの部屋でも、ブレーカー落ちを心配せず導入できるのが魅力です◎


キッチン撤去後、床から排水管が立ち上がっていることが判明しましたが、これをカバーするボックスを造作して解決しています。
設計のポイントは、キッチンの扉の開閉を妨げない絶妙な配置です。
あえて高さを出すことで、足元をうっかりぶっけてしまう心配のない安全な設計に仕上げています。


屋外にあった洗濯機置き場を、キッチン横に移設しました。
排水の勾配を考えると、この位置がギリギリのライン。
本当はもう少し玄関側に寄せたかったのですが、水の流れを優先して現在の場所に設置しています。
その玄関側の空いたスペースには、冷蔵庫置き場を作り空間を有効活用しました。


「丁度いいが心地良い」サイズに縛られない新しい水廻り
以前は0812サイズのコンパクトな浴室でしたが、今回はあえてTOTOのシャワールーム(0808サイズ)を採用しました。
「前より狭くなるのでは?」という不安もありましたが、実際は男性が快適にゆったりと過ごせるほどの広さ。
窮屈さは一切なく、機能的で心地よい空間へと生まれ変わりました。


トイレは従来の「隅付きタンク」から、スペースを効率よく使えるLIXILの正面配置トイレへ刷新しました。
念願の温水洗浄便座を搭載し、利便性も確保しています。
他にも、扉にはダイノックシートを施工。
コストを抑えつつ、まるで建具を取り替えたような仕上がりを実演しています。


もともとは、小さなボウルのみの空間でしたが、限られた広さに合わせてコンパクトな洗面台を設置しました。
給湯の都合で「単水栓(水のみ)」仕様となりましたが、サイズはスペースにぴったり◎
限られた条件を最大限に活かした、機能的な洗面空間を実現しています。


リフォーム動画と費用総額!使用設備もご紹介
今回のリフォーム費用は総額340万円(税込)でした。
- 【間取り】2K→広々とした1LDKへ
- 【内装】和室→モダンな洋室へ変更
- 【水廻り】浴室→機能的なシャワールームへ
上記を内容を含めてこちらの金額となりました!
イメチェン品川南大井店では、お客様との会話を大切にし、ご要望を丁寧にヒアリングすることで、理想のリフォーム・リノベーションを実現できるよう努めております。
お客様のご希望やご予算に合わせたご提案も可能ですので是非こちらからお気軽にご相談ください。
今回使用した主要設備はこちら▼
- キッチン▶︎パナソニック製品(W1200)
- トイレ▶︎LIXIL製品
- シャワールーム▶︎TOTO製品(0808サイズ)

この記事の監修者 篠原 昌志
(株)ココテラス代表取締役/一卵性の双子/山口県出身/職人・施工会社が薄利というリフォーム業界の悪い収益構造改革をする事を目標に、定額制リフォーム「イメチェン」のFC本部を運営。
現在全国42拠点で展開中。リフォーム事例を紹介するYouTubeのチャンネル登録者は約1.7万人。
1㎡1万円の定額制リフォーム「イメチェン」に相談してみませんか?
定額制リフォーム「イメチェン」は1㎡(床面積)×1万円でデザイナーズ物件にイメージチェンジを図る事ができる一般住宅、賃貸物件向けの定額制のリフォームブランドを全国で展開しています。
施工エリアの確認だけでも大歓迎
見積もり依頼も大歓迎です!
リフォーム事例満載のパンフレット配布中!

定額制リフォーム「イメチェン」施工可能エリア ※詳細はお問い合わせください
| 北関東エリア | 群馬県前橋市周辺 / 茨城県の一部 |
| 関東エリア | 埼玉県の一部 / 東京都の一部 / 神奈川県の一部 / 千葉県の一部 |
| 中部エリア | 静岡県静岡市・焼津市周辺 / 愛知県名古屋市・稲沢市周辺 |
| 関西エリア | 京都府京都市周辺 / 大阪府大阪市・枚方市周辺 / 兵庫県神戸市・明石市周辺・姫路市周辺 |
| 九州エリア | 福岡県福岡市周辺・北九州市周辺 |
オンラインリフォーム相談「イメチェンコンシェルジュ」

イメチェンコンシェルジュとはオンライン(GoogleMeet)でリフォームの無料相談が出来るサービスです。
リフォームのプロがあなたのお悩みを解決致します。
60分と限られた時間になりますので、事前に物件詳細(平面図・室内写真)やご希望の工事内容を共有頂ければ、より内容の濃い面談が可能になります。

定額制リフォーム「イメチェン」間取り別リフォーム事例
定額制リフォーム「イメチェン」金額別リフォーム事例
定額制リフォーム「イメチェン」お部屋の大きさ別リフォーム事例
定額制リフォーム「イメチェン」デザイン別リフォーム事例
お部屋をイメチェンされたお客様の声





























