アイランド型の対面キッチンに激変!昭和の3DKを大人気2LDKへ変えるリフォーム術/イメチェン藤沢店

この記事の監修者 篠原 昌志

(株)ココテラス代表取締役/一卵性の双子/山口県出身/職人・施工会社が薄利というリフォーム業界の悪い収益構造改革をする事を目標に、定額制リフォーム「イメチェン」のFC本部を運営。

現在全国42拠点で展開中。リフォーム事例を紹介するYouTubeチャンネルの登録者は約1.7万人超(2025年12月末時点)。

神奈川県横浜市にある築31年3DK(55㎡)の賃貸マンションを、ゆとりある2LDKへと刷新しました。

一番の見どころは、もともとの壁付けキッチンを「アイランド型」の対面キッチンへと作り替えた点です。

「壁付けからアイランドキッチンへの変更は難しいのでは?」とお考えの方や、ご自宅のキッチンリフォームを検討されている方には、非常に参考になる内容となっています。

こだわりの詰まったリノベーションの全貌をぜひ最後までご覧ください。

背景
  • キッチンを壁付け型からアイランド型へ変更してほしい
  • 家賃アップが期待できるリノベーションを希望
イメチェン後
  • 左右どちらからでも行き来ができる「島型」の対面式キッチンにレイアウト変更
  • 3DKの間取りをゆとりのある2LDKへフルリノベーション!

それでは、今回のリノベーションの詳細についてご紹介します。

1㎡1万円の定額制リフォーム「イメチェン」

リフォーム前
リフォーム後
リフォーム前
リフォーム後

「イメチェン」は1㎡(床面積)×1万円でデザイナーズ物件にイメージチェンジを図る事ができる一般住宅、賃貸物件向けの定額制のリフォームブランドを全国42店舗で展開しています。

まずはリフォームのプロに相談しませんか?

リフォーム事例満載のパンフレット配布中!

「イメチェン」とは1㎡×1万円でデザイナーズ賃貸にイメージチェンジを図る事が出来き、空室改善できる定額制のリフォーム商品です。パンフレット配布中!

物件概要

物件種別賃貸マンション
住所神奈川県横浜市
竣工年月1995年(築31年)
構造RC造
間取り(面積)3DK→2LDKに間取り変更(55㎡)
リフォーム費用540万円(税込)
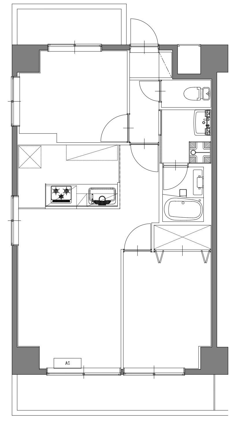
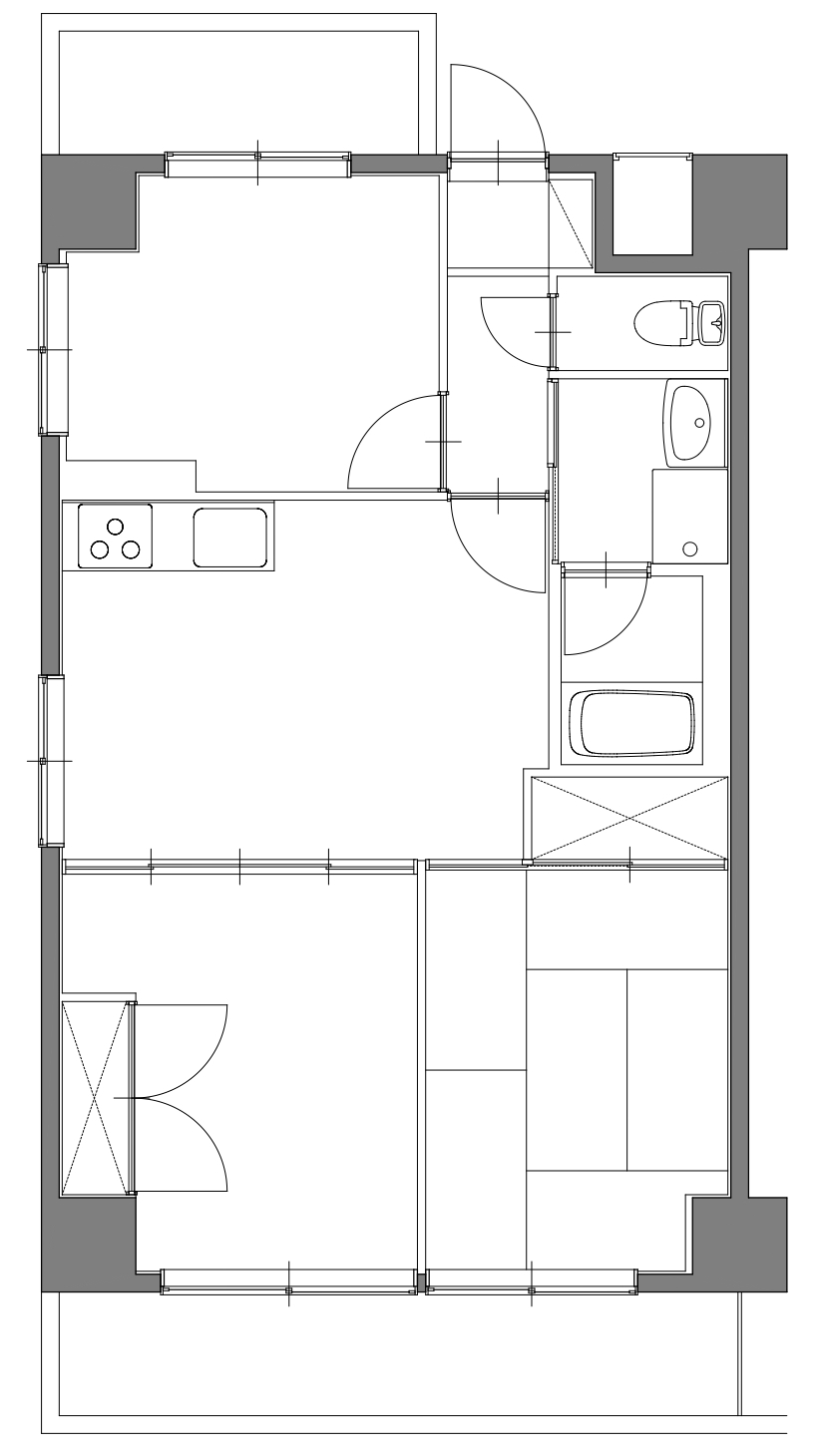
平面図
Before
After

リノベーション施工内容

  • 3DK→2LDKへ間取り変更
  • 和室→洋室変更
  • 押入れ→クローゼットに変更
  • 壁付けキッチン→島型対面式キッチンに交換
  • エアコン新設
  • 塩ビタイル施工(床)
  • 窓枠シート施工
  • クロス張り替え
  • 洗面化粧台交換
  • 防水パン交換
  • 浴槽交換
  • 照明交換
  • 建具交換
  • トイレ交換
  • 給湯器交換
  • 給水管・給湯管更新
  • 可動棚設置(玄関)
  • その他

リクシル・シエラSで叶える島型対面キッチン

壁付けだったキッチンを、LIXILのシエラS(2100サイズ)へとサイズアップしました。

食洗機と三口グリルを完備したこのキッチンは、左右どちらからでも行き来ができる「島型」の対面式にレイアウト変更しています。

シエラS(サイズ:2100)/LIXIL

デザインや機能だけでなく、居心地の良さよ使い心地を重視したシステムキッチン。

調理動線を意識して設計されています。(LIXIL公式HP参照)

ビフォー_キッチン_LIXIL_シエラS_2100サイズ_アイランドキッチン_2LDK
Before
ビフォーアフター_キッチン_LIXIL_シエラS_2100サイズ_アイランドキッチン_2LDK
After

今回の課題は、背面カップボードの設置などに伴う、既存の窓との干渉でした。

これに対し、背面通路を1メートル確保した上で、キッチンを壁から離して配置し窓との干渉を回避。

床を上げて排水管を通したことで、この理想的な動線が実現しました。

天井はレンジフードの配管を通すため20センチほど下げ、温かみのある木目で仕上げています。

照明はダウンライトに加え、ライティングレールとペンダント照明を組み合わせました。

ビフォー_キッチン_背面通路_アイランドキッチン_2LDK
Before
ビフォーアフター_キッチン_背面通路_アイランドキッチン_2LDK
After
ビフォー_キッチン_窓の干渉_アイランドキッチン_2LDK
Before
ビフォーアフター_キッチン_窓の干渉_アイランドキッチン_2LDK
After

もともとは3DKだった間取りを、ゆとりのある2LDKへ変更しました。 

4枚の引き戸と収納を解体し、隣接する洋室をリビングに取り込むことで、開放感あふれる空間を実現しています。

床は既存のクッションフロアを剥がし、木目調の塩ビタイルで刷新。

リビングのエアコンも交換し、快適に過ごせる空間に生まれ変わりました。

ビフォー_リビング_2LDK
Before
ビフォーアフター_リビング_2LDK
After

和室から洋室へ!利便性を追求したクローゼット

リビングに隣接する和室は、天井の新設や床上げを行い洋室へと一新。

押し入れは、解体してクローゼットに変更しました。

左側に枕棚とパイプハンガー、右側には可動棚を備え、左右で用途を使い分けられる機能的な仕様にしています。

建具には、パナソニックのベリティスを採用し、空間全体の質感を高めました。

ベリィティス(カラー:しっくいホワイト)/パナソニック

豊富なカラーや質感で空間に個性をプラス。

高い耐久性とお手入れのしやすさを備え、長く美しさを保てる内装建材シリーズです。

ビフォー_洋室_パナソニック_ベリティス_しっくいホワイト_2LDK
Before
ビフォーアフター_洋室_パナソニック_ベリティス_しっくいホワイト_2LDK
After
Before
After
Before
After
ビフォー_洋室_押入れ解体_クローゼット_2LDK
Before
ビフォーアフター_洋室_押入れ解体_クローゼット_2LDK
After

古さを感じさせない!「高見え」水廻りリフォーム

ユニットバスはLIXIL・リノビオフィット

浴室はサイズや位置は変えずに、リクシルのリノビオフィットを設置しました。

給水・給湯管を更新し、給湯器の交換も行っています。

リノビオフィット/LIXIL

マンションリフォーム用のシステムバス。

コンパクトサイズながらゆったりを実現。鏡面だけでなく、浴槽もカラーが豊富です。

ビフォー_浴室_LIXIL_リノビオフィット_2LDK
Before
ビフォーアフター_浴室_LIXIL_リノビオフィット_2LDK
After

洗面・洗濯スペース

洗面台はLIXILのPVを設置しました。

洗濯機の防水パンは「水栓付き」の物を採用。

壁配管をやり直す手間も省け、見た目もスッキリと納まる優れもの◎

他にも、脱衣所の引き戸は、シートを張って仕上げました。

コストを抑えながらも、まるで新品のような仕上がりを実現しています。

PV/LIXIL

デザイン性や多機能を省き、掃除のしやすさと低価格に特化した実力派モデルです。

ビフォー_洗面_LIXIL_PV_2LDK
Before
ビフォーアフター_洗面_LIXIL_PV_2LDK
After
Before
After

トイレはLIXIL・アメージュ便器

トイレはLIXILのアメージュ便器に交換しました。

天井には、温かみのある木目調をセレクト。

対照的に床はクールな石目調のクッションフロアを張って仕上げています。

アメージュ便器/LIXIL

便器のふちがなく足元がスッキリしたデザインなので、お掃除しやすいのが特徴の便器です。

ビフォー_トイレ_LIXIL_アメージュ便器_2LDK
Before
ビフォーアフター_トイレ_LIXIL_アメージュ便器_2LDK
After

アクセントクロスで洋室をモダンに刷新!

玄関横の洋室は、窓枠にシートを張って仕上げました。

壁の一面にはグレーのアクセントクロスを採用し、落ち着いた空間を演出しています。

ビフォー_玄関横洋室_2LDK
Before
ビフォーアフター_玄関横洋室_2LDK
After
Before
After

玄関は機能性とデザイン性をアップデート

玄関土間は塩ビタイルを張り、照明は人感センサー付きに交換しました。

もともとあった下駄箱を撤去し、新たに可動棚を設置。

玄関扉の表面は、シートを張って仕上げています。

ビフォー_玄関_人感センサー照明_2LDK
Before
ビフォーアフター_玄関_人感センサー照明_2LDK
After
ビフォー_玄関_下駄箱_2LDK
Before
ビフォーアフター_玄関_下駄箱_2LDK
After

リノベーション動画と費用総額!使用設備もご紹介

今回のリノベーション費用は、総額540万円(税込)となりました。

間取り変更を伴うフルリノベーションを実施。

細部までこだわり抜き「家賃アップも期待できる理想の住まい」へと生まれ変わりました。

前田社長は、今も現場に立つ現役の大工。

藤沢市周辺の現場では、社長自らが直接腕を振るい、職人の目線で一軒一軒を丁寧に仕上げています。

「前田社長に直接施工をお願いしたい!」という方は、お気軽にこちらからご相談ください。

今回使用した主要設備はこちら▼

この記事の監修者 篠原 昌志

(株)ココテラス代表取締役/一卵性の双子/山口県出身/職人・施工会社が薄利というリフォーム業界の悪い収益構造改革をする事を目標に、定額制リフォーム「イメチェン」のFC本部を運営。

現在全国42拠点で展開中。リフォーム事例を紹介するYouTubeのチャンネル登録者は約1.7万人。

1㎡1万円の定額制リフォーム「イメチェン」に相談してみませんか?

定額制リフォーム「イメチェン」は1㎡(床面積)×1万円でデザイナーズ物件にイメージチェンジを図る事ができる一般住宅、賃貸物件向けの定額制のリフォームブランドを全国で展開しています。

施工エリアの確認だけでも大歓迎

見積もり依頼も大歓迎です!

リフォーム事例満載のパンフレット配布中!

「イメチェン」とは1㎡×1万円でデザイナーズ賃貸にイメージチェンジを図る事が出来き、空室改善できる定額制のリフォーム商品です。パンフレット配布中!

定額制リフォーム「イメチェン」施工可能エリア ※詳細はお問い合わせください

北関東エリア群馬県前橋市周辺 / 茨城県の一部
関東エリア埼玉県の一部 / 東京都の一部 / 神奈川県の一部 / 千葉県の一部
中部エリア静岡県静岡市・焼津市周辺 / 愛知県名古屋市・稲沢市周辺
関西エリア京都府京都市周辺 / 大阪府大阪市・枚方市周辺 / 兵庫県神戸市・明石市周辺・姫路市周辺
九州エリア福岡県福岡市周辺・北九州市周辺

オンラインリフォーム相談「イメチェンコンシェルジュ」

イメチェンコンシェルジュとはオンライン(GoogleMeet)でリフォームの無料相談が出来るサービスです。

リフォームのプロがあなたのお悩みを解決致します。

60分と限られた時間になりますので、事前に物件詳細(平面図・室内写真)やご希望の工事内容を共有頂ければ、より内容の濃い面談が可能になります。

定額制リフォーム「イメチェン」間取り別リフォーム事例

定額制リフォーム「イメチェン」金額別リフォーム事例

定額制リフォーム「イメチェン」お部屋の大きさ別リフォーム事例

定額制リフォーム「イメチェン」デザイン別リフォーム事例

お部屋をイメチェンされたお客様の声