
この記事の監修者 篠原 昌志
(株)ココテラス代表取締役/一卵性の双子/山口県出身/職人・施工会社が薄利というリフォーム業界の悪い収益構造改革をする事を目標に、定額制リフォーム「イメチェン」のFC本部を運営。
現在全国42拠点で展開中。リフォーム事例を紹介するYouTubeチャンネルの登録者は約1.7万人超(2025年12月末時点)。
定額制リフォームを全国展開中!
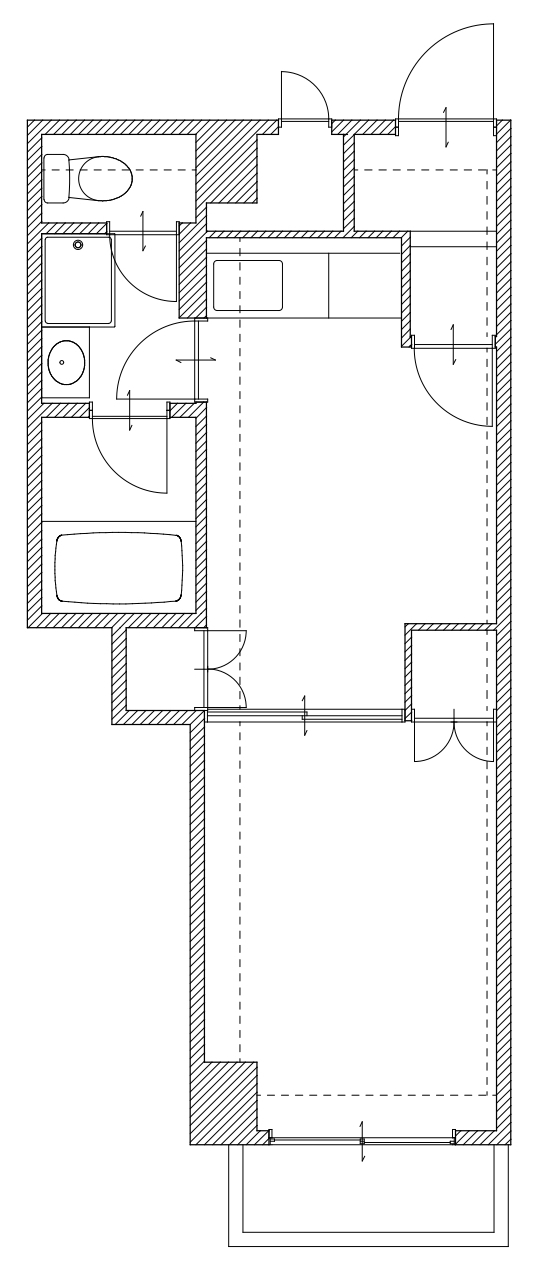
東京都荒川区にある、築41年1DK(30㎡)の賃貸マンションがフルリノベで再生します。
YouTube解体編からついに完成したリノベーションの全貌を公開!
41年間未改修の室内が賃貸物件としてどう生まれ変わったのか?
驚きのビフォーアフターをぜひ最後までご覧ください!
- 貸し出しに向けて一度も改修をしていない室内を丸ごと一新したい
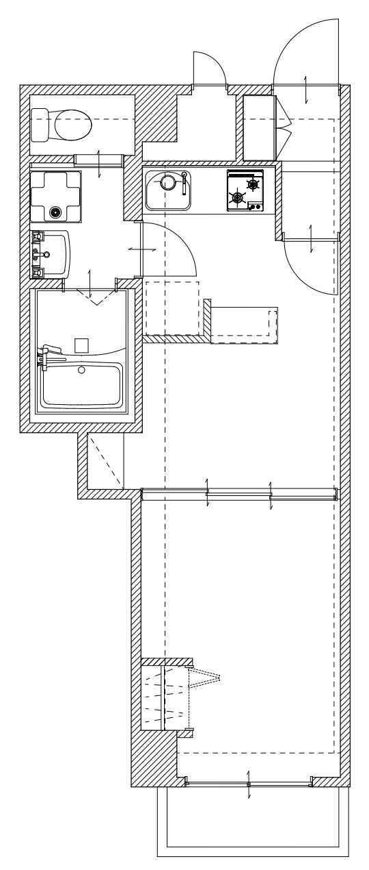
- ダイニングの間仕切りを開放すると広々としたワンルームに
- 既存の収納を活かしてデスクスペースに変更
それでは、今回のリノベーションの詳細についてご紹介します。
1㎡1万円の定額制リフォーム「イメチェン」




「イメチェン」は1㎡(床面積)×1万円でデザイナーズ物件にイメージチェンジを図る事ができる一般住宅、賃貸物件向けの定額制のリフォームブランドを全国42店舗で展開しています。
まずはリフォームのプロに相談しませんか?
リフォーム事例満載のパンフレット配布中!

物件概要
| 物件種別 | 賃貸マンション |
| 住所 | 東京都荒川区 |
| 竣工年月 | 1984年(築41年) |
| 構造 | SRC造 |
| 間取り(面積) | 1DK(30㎡) |
| リフォーム費用 | 500万円(税込) |


リノベーション施工内容
- キッチン交換
- キッチンカウンター施工
- 可動棚設置(キッチンカウンター下)
- 冷蔵庫置き場施工
- エアコン新設
- クローゼット・デスクスペース新設
- 室内物干し(ホスクリーン)設置
- 遮音フローリング施工
- クッションフロア施工(玄関土間)
- 窓枠塗装
- 洗面化粧台交換
- 洗濯パン交換
- 浴槽交換
- 照明交換
- 建具交換
- トイレ交換
- 下駄箱新設
- 給水管・給湯管更新
- その他
Tioで創るスマートで快適なキッチン空間
キッチンは、LIXILのTio(ティオ)に交換しました。
幅1500mmというサイズを活かし、限られたスペースに最大限の機能性を凝縮しています。
多彩なデザインとハイクラスな機能性が魅力のコンパクトキッチン




キッチンの間仕切りには、圧迫感のないカウンターを設置。
カウンター下には3段の可動棚と上部にはコンセントを備え、お気に入りの家電を自由にレイアウトすることも可能に◎
また、冷蔵庫スペースは生活感が出すぎない配置にこだわるなど、細部までデザインと使い勝手を両立させました。


デットスペースを活用し、奥行きを活かしたデスクスペースに作り替えました。
上部にはダウンライトとコンセントを完備し、作業のしやすさにもこだわっています。
また、インターホンやネット回線も使い勝手を考え、ダイニング側へ移設しました。


【変幻自在】仕切りを外せば、大きなワンルームに!
既存の収納を解体したため、使い勝手の良いクローゼットを新設しました。
その横にはゆったりとしたフリースペースを確保。
フリースペースには、お気に入りの棚を置いたりと自由なアレンジを楽しめます。




また、共働きや花粉の時期に嬉しいTOTOの室内物干しホスクリーンも完備。
強度を考えて、天井にはしっかりと下地を入れています。
窓枠は清潔感のある白で塗装し、お部屋全体を明るい印象にしました。

ダイニングとの間仕切りには、3枚の引き戸を採用。
扉を開放して広々としたワンルームとして使うなど、シーンに合わせた使い分けが可能に◎
他にも、エアコンを新設しています。




機能美にこだわった最新水廻りリフォーム
今回の水廻りリフォームでは、限られたスペースを最大限に活用するための工夫を随所に凝らしました。
洗面台には、スリムなデザインが魅力のジャニス工業のアルテシリーズを採用。
脱衣場の広さを損なわず、スタイリッシュな空間を実現しています。
小さくても使い勝手の良い洗面台。洗面ボウルだけが手前に出ていて、省スペースでも洗面としてしっかり使えます。
キャビネット付きにすると収納力UP。


洗濯機置き場の上部に可動棚を新設。
トイレの扉との干渉を避けるため、給水栓付きの洗濯パンを設置しています。
これにより、見た目もスッキリとしました。


トイレは清掃性に優れたLIXILのアメージュ便器に交換しました。
便器のふちがなく足元がスッキリしたデザインなので、お掃除しやすいのが特徴の便器です。


浴室は既存のサイズを維持しながら、LIXILのリノビオ(1116サイズ)へ交換しました。
動線とメンテナンス性を考えた、機能美あふれる仕上がりとなっています。
やわらかな曲線でゆったりと入浴できるマンション用のユニットバス。
立ち上がるときに縁をつかみやすい、お湯が冷めにくい保温素材を使用しているなど高機能でコスパが良いため、人気の高い商品です。




機能性を高めた玄関リフォーム
廊下は、既存の床を剥がして、遮音フローリングを上張りしています。
玄関土間は、クッションフロアで仕上げ質感をアップ。
下駄箱を新設して、上部にはダウンライトも完備しました。




リノベーション動画と費用総額!使用設備もご紹介
今回のリノベーション費用は、総額500万円(税込)ぴったりでした!
給水管・給湯管の更新もすべて含んだ今回のリノベーション。
この広さであれば、この予算感でここまでの仕上がりを実現することが可能です。
そして何より嬉しいご報告が!
工事中に募集を開始したところ、わずか3日で入居申し込みをいただきました。
私たちの強みは、単に工事をするだけではありません。
賃貸経営としての出口戦略まで徹底してサポートすることができます。
「築古物件の家賃をアップしたい!」「空室を早期に改善したい」
とお悩みのオーナー様、ぜひ一度お気軽にこちらからご相談ください。
今回使用した主要設備はこちら▼
- キッチン▶︎LIXIL/Tio
- 洗面化粧台▶︎ジャニス工業/アルテシリーズ
- トイレ▶︎LIXIL/アメージュ便器
- 浴槽▶︎LIXIL/リノビオP

この記事の監修者 篠原 昌志
(株)ココテラス代表取締役/一卵性の双子/山口県出身/職人・施工会社が薄利というリフォーム業界の悪い収益構造改革をする事を目標に、定額制リフォーム「イメチェン」のFC本部を運営。
現在全国42拠点で展開中。リフォーム事例を紹介するYouTubeのチャンネル登録者は約1.7万人。
1㎡1万円の定額制リフォーム「イメチェン」に相談してみませんか?
定額制リフォーム「イメチェン」は1㎡(床面積)×1万円でデザイナーズ物件にイメージチェンジを図る事ができる一般住宅、賃貸物件向けの定額制のリフォームブランドを全国で展開しています。
施工エリアの確認だけでも大歓迎
見積もり依頼も大歓迎です!
リフォーム事例満載のパンフレット配布中!

定額制リフォーム「イメチェン」施工可能エリア ※詳細はお問い合わせください
| 北関東エリア | 群馬県前橋市周辺 / 茨城県の一部 |
| 関東エリア | 埼玉県の一部 / 東京都の一部 / 神奈川県の一部 / 千葉県の一部 |
| 中部エリア | 静岡県静岡市・焼津市周辺 / 愛知県名古屋市・稲沢市周辺 |
| 関西エリア | 京都府京都市周辺 / 大阪府大阪市・枚方市周辺 / 兵庫県神戸市・明石市周辺・姫路市周辺 |
| 九州エリア | 福岡県福岡市周辺・北九州市周辺 |
オンラインリフォーム相談「イメチェンコンシェルジュ」

イメチェンコンシェルジュとはオンライン(GoogleMeet)でリフォームの無料相談が出来るサービスです。
リフォームのプロがあなたのお悩みを解決致します。
60分と限られた時間になりますので、事前に物件詳細(平面図・室内写真)やご希望の工事内容を共有頂ければ、より内容の濃い面談が可能になります。

定額制リフォーム「イメチェン」間取り別リフォーム事例
定額制リフォーム「イメチェン」金額別リフォーム事例
定額制リフォーム「イメチェン」お部屋の大きさ別リフォーム事例
定額制リフォーム「イメチェン」デザイン別リフォーム事例
お部屋をイメチェンされたお客様の声





























