
この記事の監修者 篠原 昌志
(株)ココテラス代表取締役/一卵性の双子/山口県出身/職人・施工会社が薄利というリフォーム業界の悪い収益構造改革をする事を目標に、定額制リフォーム「イメチェン」のFC本部を運営。
現在全国42拠点で展開中。リフォーム事例を紹介するYouTubeチャンネルの登録者は約1.7万人超(2025年12月末時点)。
定額制リフォームを全国展開中!
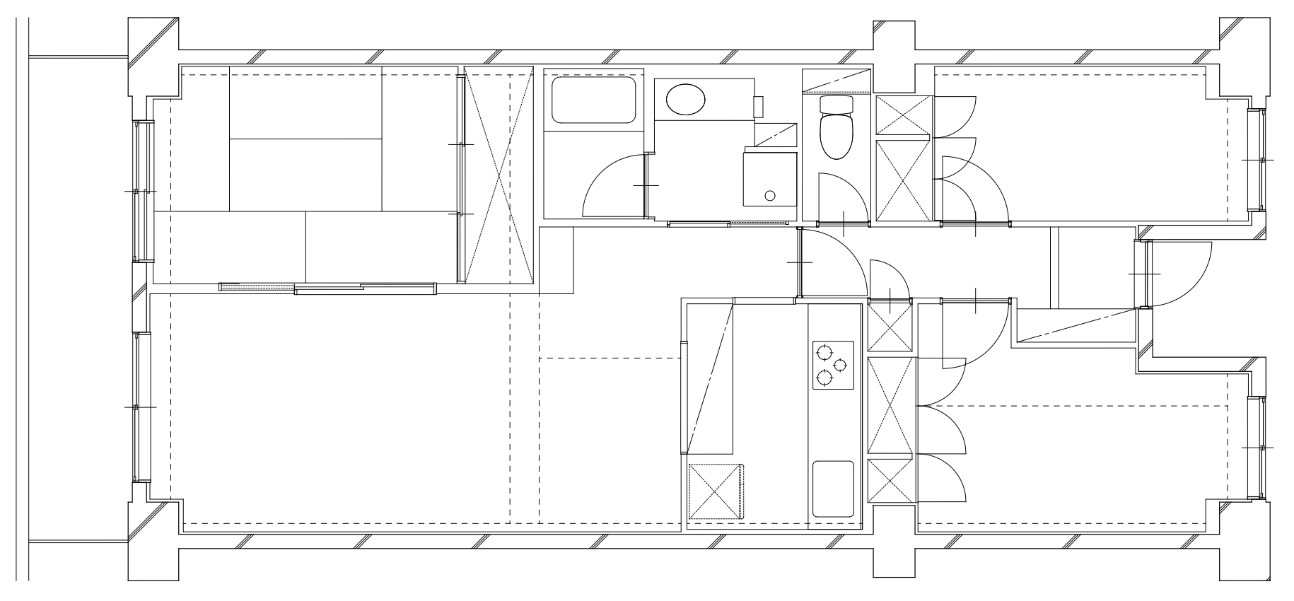
今回の物件は、東京都江東区にある築40年3LDK(76㎡)の大型分譲マンションです。
オーナー様が居住後、賃貸として貸し出されていた本物件は、40年間一度も大規模リフォームが実施されていない状況でした。
「このままでは次の入居者を見つけるのは難しい」とリフォームを決意されたオーナー様。
しかし、最初に依頼した他社の見積もりは、まさかの800万円超え…。
そこでイメチェンにご相談いただき、イメチェン新橋店が費用対効果の高い賃貸向けリフォームを実施しています。
最初の見積もりから脱却し、魅力的な物件へどのように生まれ変わったのか?
その全貌を、ぜひビフォーアフターでご覧ください。
- 古い水廻りの設備(キッチン・浴室・トイレ・洗面台など)を交換したい
- 古く暗いお部屋を明るく一層したい
- 賃料相場が高騰してきているのでリフォームをして高く貸し出したい
- 古い設備を一新して使いやすい水廻に
- キッチンの壁を撤去し家族とのコミュニケーションも取れる明るく広々としたリビングを実現
それでは、今回のリフォームの詳細についてご紹介します。
1㎡1万円の定額制リフォーム「イメチェン」

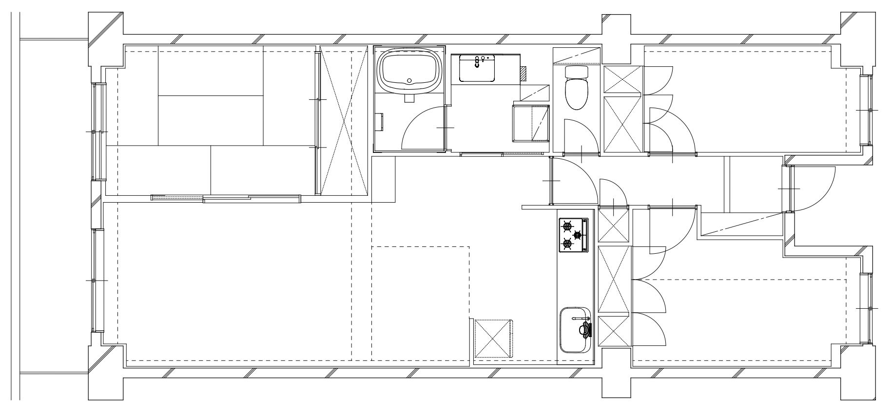
リフォーム前

リフォーム後

リフォーム前

リフォーム後
「イメチェン」は1㎡(床面積)×1万円でデザイナーズ物件にイメージチェンジを図る事ができる一般住宅、賃貸物件向けの定額制のリフォームブランドを全国42店舗で展開しています。
リフォーム事例満載のパンフレット配布中!

物件概要


リフォーム施工内容
- 遮音フローリング施工
- キッチン間仕切り壁撤去
- キッチン交換
- 畳表替え
- 襖・障子張替え
- 洗面化粧台交換
- ユニットバス交換
- ウォシュレット一体型トイレ交換
- 給湯器交換
- 給水・給湯・追い焚き配管更新
- 浴室乾燥機設置
- ダイノックシート施工(建具・枠・かまち・下駄箱・電話台)
- 塩ビタイル施工(玄関土間)
- クロス張替え
- 照明交換
- テレビモニター付きインターホン交換
- コンセント増設
1㎡×1万円の定額制リフォーム「イメチェン」は全国展開中!



「イメチェン」は1㎡(床面積)×1万円でデザイナーズ物件にイメージチェンジを図る事ができる一般住宅、賃貸物件向けの定額制のリフォームブランドを全国で展開しています。
築古のアパート、マンション、戸建てはイメチェン可能です!
お見積りは無料です!
床と壁を刷新!開放感あふれるリビングを実現


「お部屋を明るい雰囲気にしたい」「リフォームによって賃料アップを実現したい」と言うオーナー様のご要望に基づき、1㎡2万円のイメチェンプレミアムプランを採用しました。
イメチェンプレミアムプランの詳細についてはこちら
カーペット敷きの床を撤去し、分譲マンション規約の遮音等級を満たす、遮音フローリングを直張りしています。
壁のクロスは白基調で統一し、明るく開放的な空間を演出。
また、ダウンライトを新設しお部屋全体を明るく優しい印象に仕上げました。
さらに、受話式のインターホンをテレビモニター付きのインターホンに交換することで、セキュリティと美観の向上を実現しています。
テレビモニター付きのインターホンは、人気設備ランキングで上位のため、競争力向上の必須設備と判断し設置しています。
リビングにある既存の棚は、ダイノックシートで仕上げコストを抑えています◎
キッチンはグレー×ブラックのコントラストが際立つLIXILのシエラSを採用
以前は壁に囲まれた「キッチン室」として独立していましたが、思い切って壁を撤去しキッチンとリビングを一体化しました。
結果、圧倒的な開放感が生まれ家族とのコミュニケーションも取りやすい、明るく広々としたLDKへと生まれ変わっています。
採用したキッチンは、LIXILのシエラSです。
広々とした作業スペースが確保できる点や、取手などの細かなパーツの色を選べる自由度の高さが決め手となりました。
中でも特にこだわったのは、グレーと黒のモノトーンなコントラストです。
このシックな組み合わせが、キッチン全体をスタイリッシュに引き締める主役となっています。
シンプルかつスタイリッシュなデザインが人気のシステムキッチン。
豊富な扉カラーや取手のバリエーションがあり、好みに合わせて選ぶことができます。


リビングから冷蔵庫の背面が見えないよう、冷蔵庫の後ろの部分だけは壁を残す工夫も施しました。

1㎡×1万円の定額制リフォーム「イメチェン」は全国展開中!



「イメチェン」は1㎡(床面積)×1万円でデザイナーズ物件にイメージチェンジを図る事ができる一般住宅、賃貸物件向けの定額制のリフォームブランドを全国で展開しています。
築古のアパート、マンション、戸建てはイメチェン可能です!
お見積りは無料です!
畳の温もりを残したモダンな和室リフォーム
オーナー様のご要望により、趣のある和室はそのまま残しています。
リビングとの繋がりを重視し、間仕切り(襖)にはリビングと同じクロスを張り、一体感のあるモダンな雰囲気に仕上げました。
他にも傷んでいた畳の表替えや、襖や障子の張り替えを実施。
障子は破れにくい強化フィルムを採用し、小さなお子さんがいるご家庭でも安心してお過ごしいただけるよう、機能性も高めています。






快適性を追求した使いやすい水廻りを実現!
長年使って古びてしまった水廻りスペースを、今回のリフォームで一新しました。
古い枠や建具は、ダイノックシートで丁寧に仕上げています。
新しい洗面化粧台には、パナソニックのシーラインを選定。
シーラインの洗面カウンターは、設置場所に合わせてカットできるため、既存のスペースに無駄なく収めることができるのもポイントです!
また、洗面化粧台の下には、オープンスペースを設けています。
オープンスペースには椅子を置くことで、座ってゆったりと身支度できるプライベート空間が誕生しました◎
スリムで洗練されたデザインが魅力。
限られた空間でもすっきり収まり、収納力とお手入れのしやすさで快適な洗面空間を叶えます。


浴室には、リクシルのリノビオPシリーズを設置しました。
採用したリノビオPシリーズ(1218サイズ)の決め手は、限られた選択肢の中でデザイン性とコストパフォーマンスという2つの条件を、高いレベルで両立していた点です。
さらに、毎日の快適性を高めるため浴室乾燥機も完備しました。
これにより、雨の日でも洗濯の心配がなくなり、実用性が大きく向上しています。
やわらかな曲線でゆったりと入浴できるマンション用のユニットバス。
立ち上がるときに縁をつかみやすい、お湯が冷めにくい保温素材を使用しているなど高機能でコスパが良いため、人気の高い商品です。


トイレはTOTOのウォシュレット一体型に交換し、お手入れのしやすさと節水性能を向上させました。
扉と収納棚は、統一感を出すため耐久性に優れたダイノックシートで仕上げています。
床は空間全体をキリッと引き締める黒を、壁には温かみのある茶色のアクセントクロスを採用しました。
モノトーンと暖色を組み合わせることで、デザイン性と機能性を両立した落ち着きのある空間に仕上がりました◎


以前はなかった追い焚き機能を新設するため、給湯器を交換しました。
交換に伴い安心してお使いいただけるよう、給水・給湯・追い焚き配管も全て更新しています。
ファミリー物件において、入浴時間がバラバラな世帯のニーズに応える追い焚き機能は今や欠かせない必須設備です◎
暗い玄関横の洋室を明るく快適な空間へ
採光が十分ではなく暗い印象だった玄関横の2つの洋室を、白を基調とした内装で明るく快適な空間に一新しました。
各部屋のクローゼット扉は、ダイノックシートで丁寧に仕上げています。
床は以前のカーペット敷きから、リビングと同じ高性能な遮音フローリングを直張りしました。
これにより、階下への生活音の軽減とお掃除のしやすい快適な住空間を実現しています。


機能美を追求した玄関・廊下リフォーム
玄関の土間には塩ビタイルを採用し、スッキリとした印象に仕上げました。
框(かまち)や下駄箱にはダイノックシートを張り、空間に統一感を持たせています。
さらに、日々の使い勝手を考慮し、下駄箱横にはコンセントを増設。
これにより、電動自転車のバッテリー充電をはじめ、様々な電化製品に非常に便利になりました◎


リビングに続く廊下の扉や、廊下の収納扉はダイノックシートで丁寧に仕上げました。
また、将来の使い勝手を考慮し、廊下の収納内部にはコンセントを新設。
これにより、充電式の掃除機などを収納しながら充電できる、実用的な動線を確保しています。
リフォーム動画と費用総額!使用設備もご紹介
今回のリフォーム費用は総額600万円(税込)でした。
- 【内装】表層工事一式
- 【設備】水廻り4点(キッチン・浴室・洗面・トイレ)の一新
- 【配管】給水・給湯・追い炊き配管の全てを更新
上記を内容を含めてこちらの金額となりました!
当物件のような分譲ファミリーマンションにおいて、間取り変更や建具の交換などを行わない全面改修であれば、こちらの金額を目安として実現が可能です。
今回の魅力的な物件は、現在賃貸募集中です(2025年12月現在)
管理はイメチェン新橋店にて行っておりますので、ご興味をお持ちいただけましたら是非こちらからお問い合わせください。
今回使用した主要設備はこちら▼
- キッチン▶︎LIXIL/シエラS(W2700)カラー:グレージュスタッコ
- 洗面化粧台▶︎パナソニック/シーライン(W1200)カラー:ホワイト
- ユニットバス▶︎LIXIL/リノビオPシリーズ(1218サイズ)
イメチェン新橋店は、リフォームやリノベーションだけではなく、不動産売買や賃貸管理も得意としております。
空室期間が長くてお困りの方、現在の管理会社に不安を感じているオーナー様は、ぜひお気軽にこちらからご相談ください。

この記事の監修者 篠原 昌志
(株)ココテラス代表取締役/一卵性の双子/山口県出身/職人・施工会社が薄利というリフォーム業界の悪い収益構造改革をする事を目標に、定額制リフォーム「イメチェン」のFC本部を運営。
現在全国42拠点で展開中。リフォーム事例を紹介するYouTubeのチャンネル登録者は約1.7万人。
1㎡1万円の定額制リフォーム「イメチェン」に相談してみませんか?
定額制リフォーム「イメチェン」は1㎡(床面積)×1万円でデザイナーズ物件にイメージチェンジを図る事ができる一般住宅、賃貸物件向けの定額制のリフォームブランドを全国で展開しています。
施工エリアの確認だけでも大歓迎
見積もり依頼も大歓迎です!
リフォーム事例満載のパンフレット配布中!

定額制リフォーム「イメチェン」施工可能エリア ※詳細はお問い合わせください
| 北関東エリア | 群馬県前橋市周辺 / 茨城県の一部 |
| 関東エリア | 埼玉県の一部 / 東京都の一部 / 神奈川県の一部 / 千葉県の一部 |
| 中部エリア | 静岡県静岡市・焼津市周辺 / 愛知県名古屋市・稲沢市周辺 |
| 関西エリア | 京都府京都市周辺 / 大阪府大阪市・枚方市周辺 / 兵庫県神戸市・明石市周辺・姫路市周辺 |
| 九州エリア | 福岡県福岡市周辺・北九州市周辺 |
オンラインリフォーム相談「イメチェンコンシェルジュ」

イメチェンコンシェルジュとはオンライン(GoogleMeet)でリフォームの無料相談が出来るサービスです。
リフォームのプロがあなたのお悩みを解決致します。
60分と限られた時間になりますので、事前に物件詳細(平面図・室内写真)やご希望の工事内容を共有頂ければ、より内容の濃い面談が可能になります。

定額制リフォーム「イメチェン」間取り別リフォーム事例
定額制リフォーム「イメチェン」金額別リフォーム事例
定額制リフォーム「イメチェン」お部屋の大きさ別リフォーム事例
定額制リフォーム「イメチェン」デザイン別リフォーム事例
お部屋をイメチェンされたお客様の声





























