
この記事の監修者 篠原 昌志
(株)ココテラス代表取締役/一卵性の双子/山口県出身/職人・施工会社が薄利というリフォーム業界の悪い収益構造改革をする事を目標に、定額制リフォーム「イメチェン」のFC本部を運営。
現在全国42拠点で展開中。リフォーム事例を紹介するYouTubeチャンネルの登録者は約1.7万人超(2025年12月末時点)。
定額制リフォームを全国展開中!
いつもお世話になっている不動産会社様より、神奈川県横浜市にある分譲マンションのフルリノベーションをご依頼いただきました。
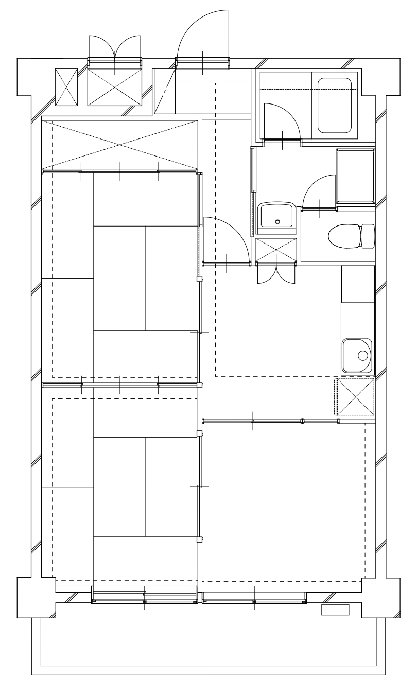
現代のライフスタイルでは少し使いにくいこの間取りを、一人暮らしやDNKS世帯を対象とした1LDKへと変更しています。
「まずは賃貸で運用し、将来的には売却する」
賃貸ニーズに応える居住性と、将来の売却時に有利に働くデザイン性。
この両立をどう実現したのか?
投資物件オーナー様にとってヒント満載の内容です。
ぜひ最後までご覧ください。
- 賃貸運用と将来の売却を見据えたリノベーションを希望
- 細かく区切られた3DKを開放感ある1LDKに変更
- 限られた空間を最大限活用し使いやすい水廻りを実現
それでは、今回のリノベーションの詳細についてご紹介します。
1㎡1万円の定額制リフォーム「イメチェン」




「イメチェン」は1㎡(床面積)×1万円でデザイナーズ物件にイメージチェンジを図る事ができる一般住宅、賃貸物件向けの定額制のリフォームブランドを全国42店舗で展開しています。
まずはリフォームのプロに相談しませんか?
リフォーム事例満載のパンフレット配布中!

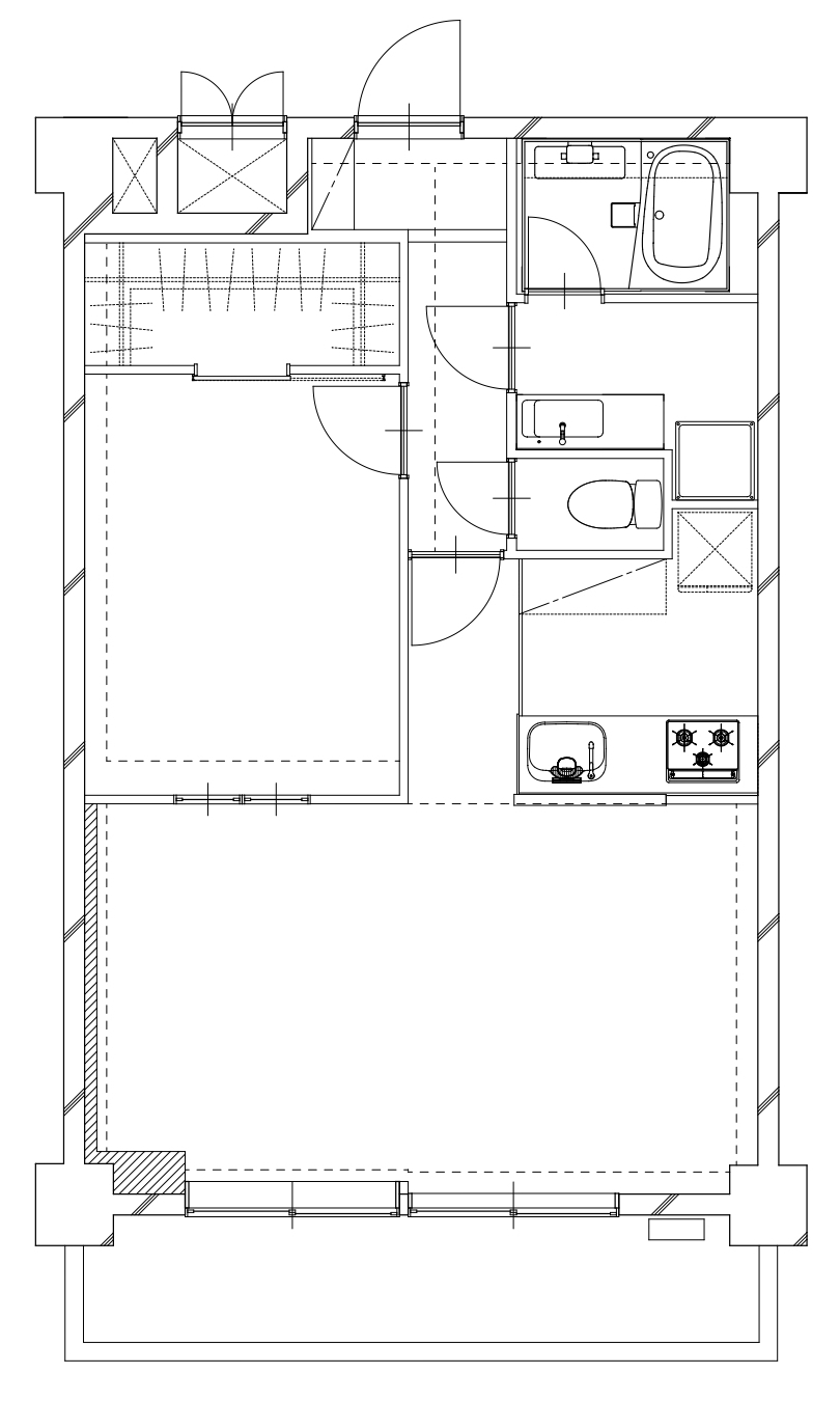
物件概要


リノベーション施工内容
- 3DK→1LDKへ間取り変更
- 和室→洋室変更
- 押入れ→大容量WICに変更
- トイレ移設
- キッチン交換
- 遮音フローリング施工(L−45)
- 室内窓設置(寝室)
- エアコン新設
- クロス張り替え
- 洗面化粧台交換
- 浴槽交換
- 照明交換
- 建具交換
- トイレ交換
- 分電盤交換
- エアコン新設・交換
- 給湯器交換
- 給水管・給湯管更新
- コンセント新設
- テレビモニター付きインターホン交換
- シューズボックス新設
- 玄関框新設
- 玄関扉・建具丁番・取手塗装
- その他
1㎡×1万円の定額制リフォーム「イメチェン」は全国展開中!



「イメチェン」は1㎡(床面積)×1万円でデザイナーズ物件にイメージチェンジを図る事ができる一般住宅、賃貸物件向けの定額制のリフォームブランドを全国で展開しています。
築古のアパート、マンション、戸建てはイメチェン可能です!
お見積りは無料です!
団地特有の閉塞感を解消したリビングルーム
かつては6畳のダイニングと細かく仕切られた和室がある、「昭和の団地」特有の間取りでした。
今回のリノベーションではその壁を取り払い、開放感あふれる1LDKへと一新しています。
床には、管理規約を遵守したL-45遮音性能を備えるグレージュのフローリングを採用。
今回は「イメチェンのプレミアムプラン」で施工しています。


また、和室の畳を撤去した際にできた床の段差には下地を造作。
オプションにはなりますが、L-45遮音性能を備えるフローリングで仕上げ、フラットな床を実現しました。
他にも、壁と天井のクロスを張り替え、一面にはアクセントクロスを採用しています。


配管類は、給水・給湯管をすべて一新。
バルコニー側の古い給湯器を交換し、配管ルートも最適化しています。
以前は室内の足元を通っていた配管ですが、古い鉄管や銅管を撤去。
新たに柱のラインに合わせて造作棚を設け、その内部に配管を納める工夫を施しました。
また、構造上の制約でコンセントの増設が難しい壁面に対し、この造作棚の立ち上がりを利用してコンセントを新設。
見た目をすっきりと整えました。


リビングが広々としたひと続きの空間になったため、エアコンの容量をアップしました。
それに伴い、コンセントも100Vから200Vへ切り替える工事を実施しています。
壁付けから対面へ!クリナップ「ラクエラ」で造る開放的なキッチン
もともとの壁付けキッチンを、対面式キッチンに変更しました。
リビングを見渡せる開放感にこだわりつつ、コストを抑える工夫として腰壁を造作。
手元が隠れるカウンター風に仕上げました。
また、限られた空間を最大限に活かすため、ユニットバスとの配置をミリ単位で調整しています。
レンジフードは、背面に梁がある構造に対応したものを選定。
冷蔵庫スペースは、水廻りの配置換えで生じたデッドスペースを活用するなど、設計上の工夫を随所に凝らしました。
キッチンは、クリナップのrakuera(ラクエラ)を採用。
3口のグリル付きガスコンロを備えつつ、あえて食洗機を付けずに、オーバースペックを避けた「賢い仕様」としています。
壁面はキッチンパネルで仕上げ、床はベニヤ板でレベルを調整した上で塩ビタイルを貼りました。
キッチンでありながら、家具のようにデザイン性が高いのが特徴。
扉カラーは30色から選べ、インテリアに合わせやすいキッチンです。




キッチン上部には、お好みの照明を楽しめるライティングレールを新設。
天井のライトだけでは影になりがちな手元を、スポットライトで明るく照らすことができます。

背面スペースは、食器棚やカップボードを置ける十分な奥行きを確保。
腰高のカウンター家電を置くことを想定し、あらかじめ高めの位置にコンセントを配したのもこだわりです◎
建具はパナソニックのベリティスへ交換し、丁番と取手を黒で塗装しました。
他にも、インターホンはテレビモニター付きへ交換し、給湯器のリモコンも一新しています。
豊富なカラーや質感で空間に個性をプラス。
高い耐久性とお手入れのしやすさを備え、長く美しさを保てる内装建材シリーズです。
1㎡×1万円の定額制リフォーム「イメチェン」は全国展開中!



「イメチェン」は1㎡(床面積)×1万円でデザイナーズ物件にイメージチェンジを図る事ができる一般住宅、賃貸物件向けの定額制のリフォームブランドを全国で展開しています。
築古のアパート、マンション、戸建てはイメチェン可能です!
お見積りは無料です!
コンパクトな空間を最大限活用した水廻りリノベーション!
以前は洗面脱衣所を経由していたトイレを、廊下から直接アクセスできる動線へと一新しました。
トイレはLIXILのアメージュ便器(温水洗浄便座付き)を設置。
これにより、お互いに気兼ねなく使用できるプライバシーに配慮した設計となっています。
構造上の関係で、トイレの床面は廊下より一段高くなっていますが、「使い勝手の良さ」を最優先に考えました。
便器のふちがなく足元がスッキリしたデザインなので、お掃除しやすいのが特徴の便器です。


今回の最大の難所は、キッチンと浴室に挟まれた限られたスペースの活用でした。
トイレの動線を優先したため、洗面所の奥行きには大きな制約が生まれたのです。
洗面化粧台は、パナソニックのシーライン(幅900mm)を選定。
奥行きの浅いモデルにコンパクトなキャビネットを組み合わせることで、通路を確保しつつ、ワイドなカウンタースペースを実現しました。
スリムで洗練されたデザインが魅力。
限られた空間でもすっきり収まり、収納力とお手入れのしやすさで快適な洗面空間を叶えます。


洗面台の裏にはトイレ、洗濯機置き場の裏には冷蔵庫を、背中合わせにレイアウトすることで、デッドスペースを無くしました。
他にも、洗濯機置き場の上部には便利な可動棚を設置。
機能的でスマートな空間へと昇華させています。


浴室はLIXILのリノビオPシリーズ(1216サイズ)を採用。
設置位置をあえて10cm手前に出す工夫により、1116サイズからのサイズアップを実現しました。
壁面はマグネット対応とし、収納やシャワー受けを自由にレイアウトできる仕様に。
さらに、清掃性を最優先してあえて鏡を設置しないという選択をしました。
やわらかな曲線でゆったりと入浴できるマンション用のユニットバス。
立ち上がるときに縁をつかみやすい、お湯が冷めにくい保温素材を使用しているなど高機能でコスパが良いため、人気の高い商品です。


大容量WICと室内窓で叶える機能美あふれるモダンな寝室
もともとは6畳の和室を、現代のライフスタイルに合わせて洋室に変更しました。
最大の特徴は、一軒半の押し入れを解体し、大容量のウォークインクローゼットへと作り替えた点です。
入り口にはアウトセットの引き戸を採用し、内部にはコの字型に枕棚とパイプハンガーを設置しました。
特にこだわったのは、クローゼットの奥行きを広げたことです。
部屋全体の広さにゆとりがあったからこそ実現できたレイアウトで、機能的な空間に仕上がりました。


他にも、採光と換気を両立するパナソニックの内窓を採用。
ブラックの枠が空間を引き締めるアクセントになっています。
内窓は上部が開閉可能なため、プライバシーを守りつつ効率的な空気循環を実現。
さらに、快適な暮らしに欠かせないエアコンも新設しました。
設置が難しい構造でしたが、新たに梁を造作し、その背面に配管を通しています。
さらに、リビングの壁を10cmふかすことで、冷媒管などの配管を壁の中に納めました。
そのままベランダの貫通口へとスマートに導く工夫により、寝室へのエアコン設置を実現しています。


機能性と開放感を両立させた玄関アプローチ
玄関は框を新設し、土間には耐久性のある塩ビタイルを貼りました。
壁面のくぼみを活用し、大容量のシューズボックスを設置しています。
通路の広さを保つため、奥行き350mmのパナソニックのコンポリアを特注サイズでぴったり配置。
扉をプッシュ式にしたことで、玄関からの動線もスムーズに◎
さらに、分電盤の交換やドアも白く塗装で仕上げました。
機能性とデザイン性を兼ね備えた玄関収納システム。
玄関周りの様々なものをすっきりと収納することができます。



リノベーション動画と費用総額!使用設備もご紹介
今回のリノベーション費用は、総額700万円(税込)となりました。
「まずは賃貸で運用し、将来的には売却を見据えたい」というオーナー様のご要望に合わせ、費用対効果を最大化させたプランをご提案させていただきました。
このように築古マンションを賢く再生し、価値を高めて運用したい方にとって、ひとつの参考になれば幸いです。
具体的なリフォーム・リノベーションをご検討中の方はぜひ、お気軽にこちらからご相談ください。
今回使用した主要設備はこちら▼
- キッチン▶︎クリナップ/rakuera(ラクエラ)
- 洗面化粧台▶︎パナソニック/シーライン(幅900mm)
- トイレ▶︎LIXIL/アメージュ便器
- 浴槽▶︎LIXIL/リノビオPシリーズ(カラー:ウッドグレインライト)
- シューズボックス▶︎パナソニック/コンポリア
- 建具▶︎パナソニック/ベリィティス(カラー:しっくいホワイト)

この記事の監修者 篠原 昌志
(株)ココテラス代表取締役/一卵性の双子/山口県出身/職人・施工会社が薄利というリフォーム業界の悪い収益構造改革をする事を目標に、定額制リフォーム「イメチェン」のFC本部を運営。
現在全国42拠点で展開中。リフォーム事例を紹介するYouTubeのチャンネル登録者は約1.7万人。
1㎡1万円の定額制リフォーム「イメチェン」に相談してみませんか?
定額制リフォーム「イメチェン」は1㎡(床面積)×1万円でデザイナーズ物件にイメージチェンジを図る事ができる一般住宅、賃貸物件向けの定額制のリフォームブランドを全国で展開しています。
施工エリアの確認だけでも大歓迎
見積もり依頼も大歓迎です!
リフォーム事例満載のパンフレット配布中!

定額制リフォーム「イメチェン」施工可能エリア ※詳細はお問い合わせください
| 北関東エリア | 群馬県前橋市周辺 / 茨城県の一部 |
| 関東エリア | 埼玉県の一部 / 東京都の一部 / 神奈川県の一部 / 千葉県の一部 |
| 中部エリア | 静岡県静岡市・焼津市周辺 / 愛知県名古屋市・稲沢市周辺 |
| 関西エリア | 京都府京都市周辺 / 大阪府大阪市・枚方市周辺 / 兵庫県神戸市・明石市周辺・姫路市周辺 |
| 九州エリア | 福岡県福岡市周辺・北九州市周辺 |
オンラインリフォーム相談「イメチェンコンシェルジュ」

イメチェンコンシェルジュとはオンライン(GoogleMeet)でリフォームの無料相談が出来るサービスです。
リフォームのプロがあなたのお悩みを解決致します。
60分と限られた時間になりますので、事前に物件詳細(平面図・室内写真)やご希望の工事内容を共有頂ければ、より内容の濃い面談が可能になります。

定額制リフォーム「イメチェン」間取り別リフォーム事例
定額制リフォーム「イメチェン」金額別リフォーム事例
定額制リフォーム「イメチェン」お部屋の大きさ別リフォーム事例
定額制リフォーム「イメチェン」デザイン別リフォーム事例
お部屋をイメチェンされたお客様の声





























