
この記事の監修者 篠原 昌志
(株)ココテラス代表取締役/一卵性の双子/山口県出身/職人・施工会社が薄利というリフォーム業界の悪い収益構造改革をする事を目標に、定額制リフォーム「イメチェン」のFC本部を運営。
現在全国42拠点で展開中。リフォーム事例を紹介するYouTubeチャンネルの登録者は約1.7万人超(2025年12月末時点)。
定額制リフォームを全国展開中!
東京都板橋区にある築55年(51㎡)の団地をフルリノベーションしました。
今回のテーマは、「古いから壊す」のではなくヴィンテージ感のある趣を大切にすること。
活かせるものは活かしつつ、現代のライフスタイルに寄り添う住まいへと再生しました。
施工を担当したのは、イメチェン下北沢店です。
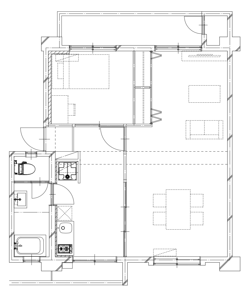
団地特有の細かく仕切られた3DKから、広々とした2DKへと生まれ変わりました。
「古い団地でもここまで変わるの?」そんな驚きとヒントが詰まった、ビフォーアフターをぜひ最後までご覧ください。
- 活かせるものは活かしつつ、ヴィンテージ感漂うアメリカンムードな部屋にしたい
- 二間続きの部屋をひとつにして、無骨でカッコいい開放的な居室を実現
- 全てを新しくせずあえて昭和の趣が残る既存を活かした味わい深い水廻りに
それでは、今回のリノベーションの詳細についてご紹介します。
1㎡1万円の定額制リフォーム「イメチェン」

リフォーム前

リフォーム後

リフォーム前

リフォーム後
「イメチェン」は1㎡(床面積)×1万円でデザイナーズ物件にイメージチェンジを図る事ができる一般住宅、賃貸物件向けの定額制のリフォームブランドを全国42店舗で展開しています。
リフォーム事例満載のパンフレット配布中!

物件概要


リノベーション施工内容
- 3DK→2DKに間取り変更
- 引き戸新設(ダイニングスペース間仕切り)
- 壁造作
- フロアタイル施工(床)
- プラスチックタイル施工
- 壁・天井・建具塗装
- 家具販売・配置(ACME Furniture )
- キッチン交換
- 冷蔵庫置き場新設
- 洗濯機置き場新設
- 棚・可動棚造作
- 置きバス設置
- バランス釜撤去
- 給湯器屋外壁付けタイプ変更
- 配管更新
- 洗面台交換
- トイレ交換
- 照明交換
- スイッチ・コンセント交換
- クロス施工
- テレビモニター付きインターホン交換
- 分電盤交換
- その他
1㎡×1万円の定額制リフォーム「イメチェン」は全国展開中!



「イメチェン」は1㎡(床面積)×1万円でデザイナーズ物件にイメージチェンジを図る事ができる一般住宅、賃貸物件向けの定額制のリフォームブランドを全国で展開しています。
築古のアパート、マンション、戸建てはイメチェン可能です!
お見積りは無料です!
「狭」から「広」に!計算された玄関アプローチ


玄関を開けると広がる、力強いラワンの木目。
あえてタイトに設計したアプローチは、素材に包み込まれるような心地よい密室感を演出します。
全ては、その先の居室の「広さ」を際立たせるための計算。
手前に「狭さ」があるからこそ、先の「広さ」が際立ちます。
玄関に入った瞬間「おっ!?」と思わせる仕掛け。
贅沢なラワンの質感に囲まれたコンパクトな空間が、ゲストを心地よく裏切ります!
ラワン材とは東南アジアに自生する「フタバガキ料」の広葉樹の総称。
安価で加工しやすく、家中の色々な場所を支えいる万能な木材です。
【昭和レトロ✖️アメリカン】こだわりを詰め込んだ居室
居室は開放感のある広いスペース。
手前の玄関アプローチの狭さが、居室の広さをより際立たせます。
ダイニングスペースと居室の間仕切りには、温かみのあるラワン材の建具を採用。
視線が散るのを防ぐため、市販の取手は付けず、手掛けの穴加工のみを施しました。
また、引き戸のレールは新調し、鴨井が経年で垂れてくることがないよう、補強用のボルトも設置しています。


今回のこだわりは、施主様憧れのコンクリートの素地感を活かした天井です。
カチオン塗装で仕上げることで、コンクリート特有のラフさと、現代的な上品さを両立させました。
目を引く鉄管のデザインは、直付け照明やコンセントとの相性も抜群。
生活感の出る配線類は、ふかした壁や天井の中に収め、視覚的なノイズを徹底的にカットしました。
「見せる配管」と「隠す配線」のメリハリこそが、洗練された空間を創り出す秘訣です。
電気の力を利用して、ムラなく強力に密着させる防錆(サビ止め)塗装のこと。


床材には、クラシックな表情が魅力のヘリンボーン柄のフロアタイルを。
建具は、昭和の趣を残すため、懐かしさを感じる握り玉(ドアノブ)に。
部屋の間を渡る梁は、あえて隠さず表し(あらわし)で仕上げることで、構造の機能美をデザインへと昇華させています。
既存の壁は再塗装をベースにしつつ、ふかし壁にはクロスを採用。
場所ごとに異なる素材の質感を使い分けるなど、細部までこだわりを詰め込みました。


施主様が大好きなアメリカン要素を、細かなディテールに散りばめました。
照明には、インダストリアルな雰囲気漂うトグルスイッチを採用。
収納スペースには、風合い豊かなルーバー扉を設置しています。
もちろん機能面でも妥協はしません。
洋服をたっぷり掛けられるよう、収納内部にはパイプハンガーを完備。
デッドスペースを最小限に抑えるため高さを調整し、天井ギリギリの最上部に取り付けました。


1㎡×1万円の定額制リフォーム「イメチェン」は全国展開中!



「イメチェン」は1㎡(床面積)×1万円でデザイナーズ物件にイメージチェンジを図る事ができる一般住宅、賃貸物件向けの定額制のリフォームブランドを全国で展開しています。
築古のアパート、マンション、戸建てはイメチェン可能です!
お見積りは無料です!
ミラタップのプレーンKプティで創る!ミニマルなキッチン空間
キッチンは少しサイズダウンさせました。
単身用としては充分な大きさのミラタップ/プレーンKプティを設置。
居室の空間に違和感なく溶け込むシンプルなデザインを採用しています。
また、本体をコンパクトにしたことで生まれたゆとりを活かし、新たに冷蔵庫置き場を新設しました。
シンプルなデザインはもちろん、水栓や加熱機器などのカスタマイズ性が高いのも人気の理由です。
「自分らしさ」を詰め込んだ理想のキッチンスペースを納得の価格で実現できる商品です。


キッチン上部には利便性の高い造作棚を設置し、壁面にはマグネット対応のキッチンパネルを施工。
キッチン用品を浮かせて収納できるので使い勝手も◎!
手元灯も完備。
床は清掃性の高いプラスチックタイルで仕上げ、デザイン性と実用性を兼ね備えたキッチンに生まれ変わりました。
以前は屋外にあった洗濯機置き場を、室内に設置しました。
これによりキッチンや洗面所との距離も縮まり、家事動線が大幅に改善しています◎
緑の扉と御影石が彩る素材の良さを活かした水廻り
水廻りは大きく変えず、素材の良さを引き出す工夫を。
脱衣所とトイレの扉は、既存の物を鮮やかなグリーンで塗装し、空間のアクセントに。
その足元にそっと鎮座する御影石は、あえてそのままの姿で残しています。
鮮やかなグリーンと無骨な御影石が相まって、空間に独特な深みとリズムを与えてくれました。


浴室周りは大幅に機能性UP!
バランス釜を撤去し、給湯器は屋外の壁付けタイプに変更。
見た目を損なわない配管ルートで更新しています。
浴槽はスタイリッシュな置くタイプのバスに。
ブラケットライトで海外風のおしゃれな雰囲気に。
壁や天井は塗装で、床は既存のタイルの上からシートを張って仕上げました。


洗面台は、ミラタップのレッタンゴロを採用。
シンプルな構成の中に、シャワー仕切り用のポールを組み込むことで、無駄のない機能美を持たせました。
空間を白・グレー・シルバーの無彩色で統一し、インダストリアルな鉄管の照明がアクセントになっています。
イタリア語で「長方形」を意味する名の通り、エッジが非常にシャープで直線的なデザインの洗面台。
ボウル部分と天板が継ぎ目のない一体型で、汚れがたまりにくくお手入れしやすいのが特徴です。


トイレで特にこだわったのは、目線の位置に設置した照明です。
「ハーフレスキュー」という正面が眩しくないライトを設置。
壁や天井は同色で塗装して統一感を出しました。
古いものを否定せず、細部を丁寧にアップデートすることで、新旧が心地よく共存する空間に生まれ変わりました。
スッキリ見えるタンクレストイレで、水アカがつきにくい清掃性が魅力。
3Dツイスター水流で汚れを渦巻きに洗い流し、節水性も高く、停電時にも水が流せる機能が備わっています。


ACME Furniture (アクメファニチャー)が彩るヴィンテージモダンな寝室
寝室も、こだわりが詰まったお部屋になりました。
床には、ウォールナット調のダークなフロアタイルを施工し、壁の一面にはチェック柄のアクセントクロスを取り入れています。
家具は内装に合わせて、ヴィンテージ感溢れるデザインで人気の「ACME Furniture (アクメファニチャー)」をセレクト。
施主様にお選びいただいたチェスト・デスク・ベッドをバランスよく配置し、内装と家具が互いを引き立て合う、特別な寝室が完成しました。




オープン収納で圧迫感ゼロ!広く感じる玄関リノベーション
玄関は扉の内側を塗り直し、パッと明るい印象に仕上げました。
収納は既存の下駄箱を解体し、オープンな可動棚に。
圧迫感がなくなり広く感じられるだけでなく、靴の出し入れもスムーズになりました。
また、古くなっていた分電盤やインターホンも更新しています。

リノベーション動画と費用総額!使用設備もご紹介
今回のリノベーション費用は、総額764万5000円(税込)でした。
今回のような築古物件&既存設備を活かしたリノベーションにおいては、施工しながらお客様と一緒に最適解を見つけていく流れになるので、施工前の打ち合わせ段階から完成度や施工価格をお約束することが難しいです。
躯体以外を壊してスケルトンにして既成の建材で作り上げる通常のリノベーションよりも難易度が高く、工期が長く追加費用がかかるケースが大半。
工期と予算に対しての余裕、お客様と施工業者の信頼関係が必要不可欠ですが、完成した物件はありきたりではなく唯一無二の価値が生まれます◎!
イメチェン下北沢店は、単なるおしゃれなリフォーム・リノベーションではなく、納得できる住まい造りを設計から丁寧に伴走させていただきます。
お客様のご希望やご予算に合わせたご提案も可能ですので、是非こちらからお気軽にご相談ください。
今回使用した主要設備はこちら▼
- キッチン▶︎ミラタップ/プレーンKプティ(カラー:ホワイト)
- 洗面化粧台▶︎ミラタップ/レッタンゴロ
- トイレ▶︎パナソニック/アラウーノVリミテッド(カラー:ホワイト)
- 家具▶︎ACME Furniture (アクメファニチャー)
団地のリフォーム・リノベーション事例

この記事の監修者 篠原 昌志
(株)ココテラス代表取締役/一卵性の双子/山口県出身/職人・施工会社が薄利というリフォーム業界の悪い収益構造改革をする事を目標に、定額制リフォーム「イメチェン」のFC本部を運営。
現在全国42拠点で展開中。リフォーム事例を紹介するYouTubeのチャンネル登録者は約1.7万人。
1㎡1万円の定額制リフォーム「イメチェン」に相談してみませんか?
定額制リフォーム「イメチェン」は1㎡(床面積)×1万円でデザイナーズ物件にイメージチェンジを図る事ができる一般住宅、賃貸物件向けの定額制のリフォームブランドを全国で展開しています。
施工エリアの確認だけでも大歓迎
見積もり依頼も大歓迎です!
リフォーム事例満載のパンフレット配布中!

定額制リフォーム「イメチェン」施工可能エリア ※詳細はお問い合わせください
| 北関東エリア | 群馬県前橋市周辺 / 茨城県の一部 |
| 関東エリア | 埼玉県の一部 / 東京都の一部 / 神奈川県の一部 / 千葉県の一部 |
| 中部エリア | 静岡県静岡市・焼津市周辺 / 愛知県名古屋市・稲沢市周辺 |
| 関西エリア | 京都府京都市周辺 / 大阪府大阪市・枚方市周辺 / 兵庫県神戸市・明石市周辺・姫路市周辺 |
| 九州エリア | 福岡県福岡市周辺・北九州市周辺 |
オンラインリフォーム相談「イメチェンコンシェルジュ」

イメチェンコンシェルジュとはオンライン(GoogleMeet)でリフォームの無料相談が出来るサービスです。
リフォームのプロがあなたのお悩みを解決致します。
60分と限られた時間になりますので、事前に物件詳細(平面図・室内写真)やご希望の工事内容を共有頂ければ、より内容の濃い面談が可能になります。

定額制リフォーム「イメチェン」間取り別リフォーム事例
定額制リフォーム「イメチェン」金額別リフォーム事例
定額制リフォーム「イメチェン」お部屋の大きさ別リフォーム事例
定額制リフォーム「イメチェン」デザイン別リフォーム事例
お部屋をイメチェンされたお客様の声





























