
この記事の監修者 篠原 昌志
(株)ココテラス代表取締役/一卵性の双子/山口県出身/職人・施工会社が薄利というリフォーム業界の悪い収益構造改革をする事を目標に、定額制リフォーム「イメチェン」のFC本部を運営。
現在全国42拠点で展開中。リフォーム事例を紹介するYouTubeチャンネルの登録者は約1.7万人超(2025年8月末時点)。
定額制リフォームを全国展開中!
今回は東京都杉並区にある築49年、1LDK(49.5㎡)の賃貸マンションです。
- 不動産個人オーナー様の所有物件(一棟)で、自分がお住まいだった部屋
- 築古だができるだけ賃料を上げて貸し出せるようなリノベーションを希望
- 木目×白×グレーであえて古さを残しつつもスタイリッシュなお部屋へイメチェン!
- キッチンの位置を大幅に変更!コア抜き含む配管位置の更新工事も
もともとオーナー様がお住まいになっていたお部屋のリノベーション。
「できるだけ高く貸したい!」というオーナー様の強いご要望がありました。
場所は杉並区・永福町駅のすぐ近くで、かなり立地が良いうえ、単身者や若い夫婦が多い住宅街です。
ターゲット像には以下を想定してリノベーションを設計しました。
- 単身者
- 若いカップル、DINKs
- 小さなお子さんがいるご夫婦
築古物件はお部屋や設備の古くささがネックになりがち。
今回のリノベーションでは、その古さをあえて残しつつ魅力的に活かしました!
お手持ちの築古物件をどのようにリノベーションすべきかお悩みの方は、ぜひ参考にしてください。
それでは今回のリノベーションの詳細について、ご紹介します。
1㎡1万円の定額制リフォーム「イメチェン」


「イメチェン」は1㎡(床面積)×1万円でデザイナーズ物件にイメージチェンジを図る事ができる一般住宅、賃貸物件向けの定額制のリフォームブランドを全国42店舗で展開しています。
まずはリフォームのプロに相談しませんか?
リフォーム事例満載のパンフレット配布中!

物件概要


リノベーション内容
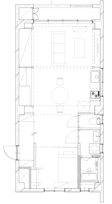
- 2DK → 1LDKへ改修
- キッチン位置移設(奥 → リビング側)
- 和室をリビングに統合
- IKEA「クノックスフルト」(W1800)設置
- 水道・ガス・ダクト新設工事
- オーバーカウンターシンク・2口コンロ・レンジフード
- 押入れ解体 → デスク&可動棚造作
- クロス・塗装仕上げ
- コンセント増設
- 玄関拡張
- オープン棚設置
- 床・壁・天井を木目デザインで統一
- トイレ:LIXIL「ラシッサS」、アクセントクロス、ブラックレバー
- 洗面:IKEA薄型洗面台設置
- 浴室:在来 → 小型ユニットバス交換、浴室暖房乾燥機新設
- 立川ブラインド「パネルカーテン」で間仕切り
- オープンクローゼット造作
- エアコン用電源新設
- バルコニーへ簡易手すり新設
- 床全面フロアタイル仕上げ
- 聚楽壁 → 塗装仕上げ
- 天井アクセントクロス
【リビングリフォーム】木部塗装とクロスで古さを活かしたモダンな空間へ


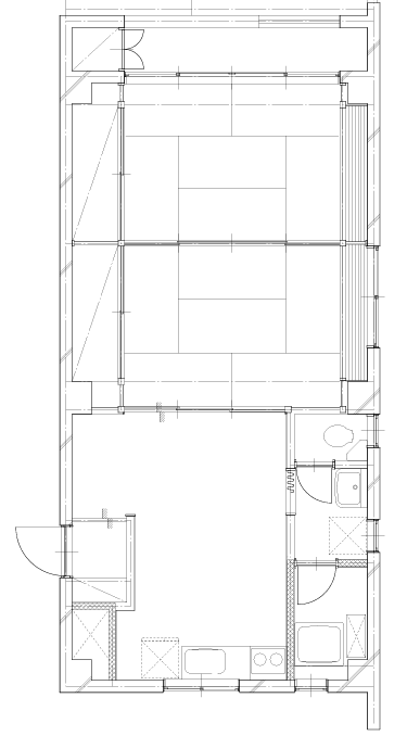
もともとの間取りは2DKでした。
奥にキッチンがありましたが、リビング側へ移設しています。
真ん中の和室は6畳強の部屋が2つ並ぶ構成でした。今回はリビングを広くとって、ゆったりとした1LDKへ!


リビングでは、もともと押入れだった収納を解体して塗装・クロス貼りしました。
この空間で生活が簡潔できるように、収納の一部にデスクスペースを新設。
向かって左側の押入れの中段を解体して、デスクを造作しています。
デスク付近には、コンセントも増設。
余った空間には、後付けの仕切り壁を入れて可動棚を設置しました。
収納部の木部は塗装で仕上げていますが、よく物を置くところはあえて無塗装としています。
合皮のバッグなどを置くと、塗装が付着する可能性があるためです。
お部屋の全体の色味はグレー×白×木目を基調に統一。
天井のみ山吹色のアクセントクロスを貼っています。
色を絞って使用することで、統一感のある仕上がりに。
収納の一部を意図的に塗らないことで「あえて古さを残す」というスタイルを演出しています。
コンセントプレートもあえて昔ながらのステンレスで統一し、新品ながら既存の古さと馴染ませているのがハイセンスです。
天井の一部はアクセントクロス、その他は塗装で仕上げています。
既存の壁は聚楽壁(じゅらくかべ)でした。
本来ならば下地処理後に薄ベニヤを貼ってクロス仕上げにすることもありますが、今回は塗装で仕上げています。
床はフロアタイル(塩ビタイル)を採用しました。

キッチンは北欧風の可愛らしいデザインが目を引く、IKEAのクノックスフルトシリーズ(サイズ:W1800)を採用。
シンプルでムダをそぎ落とした北欧風ユニットキッチン。
コストを抑えつつ、扉・引き出し・棚で必要な収納を備え、扉表面は傷に強く汚れも拭き取りやすい構造です。
開き扉がベースですが、ガスコンロ下は引き出し収納になっています。
天板はメラミンの木目柄で、白と木目の組み合わせが良い雰囲気。
シンクはオーバーカウンタータイプです。
コンロは2口。レンジフードは個別に手配して設置しています。
ここにはもともとキッチンがなかったため、水道・ガス・ダクトなどは新規で配管し、コア抜きを含む配管ルートの確保を行いました。
【玄関リフォーム】入った瞬間の広がりを演出





玄関は入った瞬間に「おっ」となる空間を意識しました。
賃貸マンションらしい、こもり感がある玄関から、パッと広い空間へ抜ける落差で驚きを演出。
床・壁・天井・建具はすべて木目で統一しています。
天井と壁はクロス、床と土間は塩ビタイルで仕上げました。
それぞれメーカーは異なりますが、どれも同じようなライトトーンの木目柄になるよう、慎重に選定しました。
同じ柄にすることで、異なる素材でも連続して見えるような不思議な空間を作っています。
土間は拡張し、手前に可動棚も設けたことで収納量をしっかり確保。
玄関右手にも収納があり、全体的に使い勝手の良いオープン収納になりました。
【水まわりリフォーム】トイレ・洗面・浴室を最新設備に更新


水まわりは玄関土間の延長線上に配置されています。
建具はLIXIL ラシッサSを採用。枠はチャコールグレーをオーダーしました。
向かって右、大きめの扉が洗面脱衣所・浴室、左の扉がトイレです。


トイレはレイアウトの変更はありません。
正面にタイル調のアクセントクロスを採用し、床はリビングと同じグレーのフロアタイルで統一。
便器はPanasonic アラウーノに交換しました。
スッキリ見えるタンクレストイレで、水アカがつきにくい清掃性が魅力。
3Dツイスター水流で汚れを渦巻きに洗い流し、節水性も高く、停電時にも水が流せる機能が備わっています。


洗面・浴室まわりの扉を開けると、正面にIKEAの洗面化粧台が。
清潔感あふれるシンプル設計。
扉や引き出しで収納力を確保しつつ、パーツの組み合わせ自由度が高いので空間に合った洗面台がつくれます(10年品質保証付きもあり)。
キッチンとテイストを合わせた可愛らしいデザインを採用しています。
奥が浴室になり、スペースがかなりタイトなので、洗面化粧台は薄型を選びました。
薄型でも日常使用に支障がでないバランスを意識しています。
鏡もIKEAの商品を合わせて統一感を演出。
洗濯機置き場は浴室の前に確保しました。洗濯機をすこし避けて浴室へ入る仕様です。
扉がついている側の壁は構造的に動かせないため、脱衣所を拡張できませんでした。


浴室はもともと在来工法のもの。
RC造りではフルサイズのユニットバスは入らないことが多いため、柱をよけて少し小さめのユニットバスを新設しました。
ユニットバスはTOTO WTシリーズを採用しています。
シンプルさと実用性を備えたユニットバス仕様。魔法びん構造で湯温をしっかりキープ、翌朝でもぬるくなりにくいのがうれしいポイント。
築年数が古いことはネガティブにとらえられがちなので、浴室暖房乾燥機は最新設備を導入して対応しています。
【寝室リフォーム】パネルカーテンで軽やかに間仕切り




かつてキッチンがあった奥のスペースは、今回のリノベーションでは寝室としての使い方を想定して設計しました。
間仕切りには立川ブラインドのパネルカーテン(パネルトラック)を採用しました。
普段は開けっ放しのままで使え、来客時にはベッド周りをさっと隠せます。
パネルカーテンは厚さや存在感は軽やかで、色・柄がお部屋のアクセントになるので模様替え感覚で入れ替えできるのがメリットです。
建具で仕切るよりも、コストは約1/4とリーズナブルです。
ただし、防音や遮光は限定的なので、個室にしたい場合には向いていません。
また、室内にはシンプルなオープンクローゼットを新設。
将来的にエアコンが追加できるように電源も用意していますが、パネルカーテンを開け放てばリビングのエアコンだけでもおおむねカバーできる想定です。
【バルコニー・配管リフォーム】手すりを新設して安全性を確保/必要箇所はコア抜き工事も



バルコニーは既存のままですが、手すりがなかったため、ピンコロをベースにしたパイプだけの簡易手すりを新設しました。
賃貸で安全に貸し出すという観点から、手すりを設置して安全性を担保しています。
外にある元キッチンのレンジフード用開口はふさぎました。
新規で給排水・ガス・ダクトを設置し、必要箇所はコア抜きを行って浴室や新しいキッチン側へ配管を立ち上げています。
このお部屋のリノベーション総額と事例動画
今回のリノベーション費用は658万円(税込)でした。
今回は賃料UPを目指したリノベーション。新たに設定した賃料は、やや強気の15万円台です。
ちなみに、近隣物件の相場は以下のとおり。
- 新築 約18万円
- 築50年前後 約12万円
通常の相場感から大きく引き上げた賃料での募集に挑戦!
今後どのように決まっていくか楽しみです。
イメチェン下北沢店では、今回のような賃貸リノベーションだけでなく個人宅のリノベーション実績も多数あります。
世田谷区周辺でのリノベーションをお考えの方は、ぜひイメチェン下北沢店までご相談ください。

この記事の監修者 篠原 昌志
(株)ココテラス代表取締役/一卵性の双子/山口県出身/職人・施工会社が薄利というリフォーム業界の悪い収益構造改革をする事を目標に、定額制リフォーム「イメチェン」のFC本部を運営。
現在全国42拠点で展開中。リフォーム事例を紹介するYouTubeのチャンネル登録者は約1.7万人。
1㎡1万円の定額制リフォーム「イメチェン」に相談してみませんか?
定額制リフォーム「イメチェン」は1㎡(床面積)×1万円でデザイナーズ物件にイメージチェンジを図る事ができる一般住宅、賃貸物件向けの定額制のリフォームブランドを全国で展開しています。
施工エリアの確認だけでも大歓迎
見積もり依頼も大歓迎です!
リフォーム事例満載のパンフレット配布中!

定額制リフォーム「イメチェン」施工可能エリア ※詳細はお問い合わせください
| 北関東エリア | 群馬県前橋市周辺 / 茨城県の一部 |
| 関東エリア | 埼玉県の一部 / 東京都の一部 / 神奈川県の一部 / 千葉県の一部 |
| 中部エリア | 静岡県静岡市・焼津市周辺 / 愛知県名古屋市・稲沢市周辺 |
| 関西エリア | 京都府京都市周辺 / 大阪府大阪市・枚方市周辺 / 兵庫県神戸市・明石市周辺・姫路市周辺 |
| 九州エリア | 福岡県福岡市周辺・北九州市周辺 |
オンラインリフォーム相談「イメチェンコンシェルジュ」

イメチェンコンシェルジュとはオンライン(GoogleMeet)でリフォームの無料相談が出来るサービスです。
リフォームのプロがあなたのお悩みを解決致します。
60分と限られた時間になりますので、事前に物件詳細(平面図・室内写真)やご希望の工事内容を共有頂ければ、より内容の濃い面談が可能になります。

定額制リフォーム「イメチェン」間取り別リフォーム事例
定額制リフォーム「イメチェン」金額別リフォーム事例
定額制リフォーム「イメチェン」お部屋の大きさ別リフォーム事例
定額制リフォーム「イメチェン」デザイン別リフォーム事例
お部屋をイメチェンされたお客様の声































