
この記事の監修者 篠原 昌志
(株)ココテラス代表取締役/一卵性の双子/山口県出身/職人・施工会社が薄利というリフォーム業界の悪い収益構造改革をする事を目標に、定額制リフォーム「イメチェン」のFC本部を運営。
現在全国42拠点で展開中。リフォーム事例を紹介するYouTubeチャンネルの登録者は約1.7万人超(2025年12月末時点)。
定額制リフォームを全国展開中!
今回のリノベーション事例は東京都杉並区にある築29年、2LDK(58.02㎡)の分譲賃貸マンションです。
ご依頼いただいたオーナー様が、相続で取得されたお部屋になります。
賃貸物件として活用したいものの、築年数がかなり経っているため、原状回復程度のリフォームでは賃料競争力に不安が。
リノベーションで賃料を上げて、市場で勝負できる賃貸物件にしたい、ということでイメチェンへご相談いただきました。
- 相続で分譲マンションの一室を取得
- 売却も視野に入れながら賃貸運用できる物件へリノベーション希望
- お部屋が広く明るく見えて築古感を感じさせない、ラグジュアリーなお部屋へイメチェン!
- ただコストをかけるのではなく「かけるポイントを押さえる」ことを重視
築20~30年のマンションを賃料アップ・売却を目指すリノベーションを検討されているオーナー様は、今回の事例をぜひ参考にしてください。
1㎡1万円の定額制リフォーム「イメチェン」

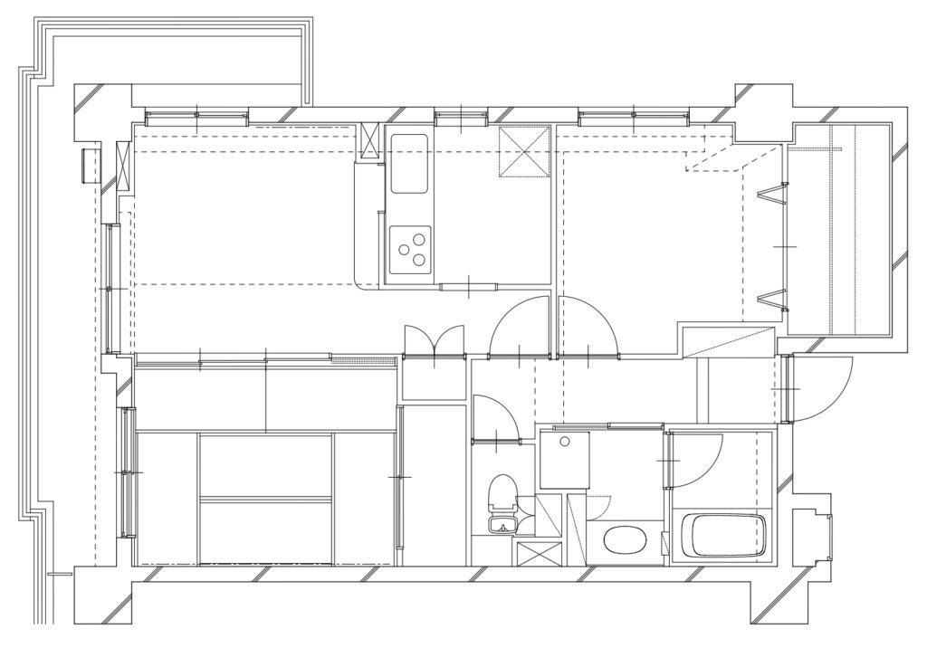
リフォーム前

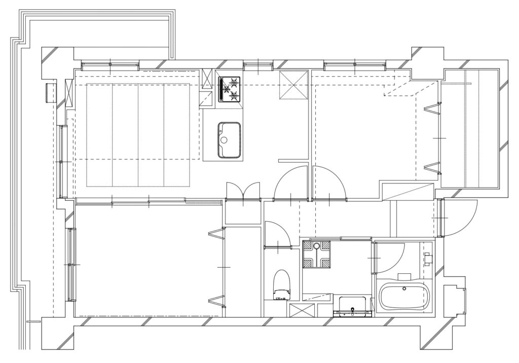
リフォーム後

リフォーム前

リフォーム後
「イメチェン」は1㎡(床面積)×1万円でデザイナーズ物件にイメージチェンジを図る事ができる一般住宅、賃貸物件向けの定額制のリフォームブランドを全国42店舗で展開しています。
リフォーム事例満載のパンフレット配布中!

物件概要
| 物件種別 | 分譲賃貸マンション |
| 住所 | 東京都杉並区 |
| 竣工年月 | 1997年(リノベーション当時 築約29年) |
| 構造 | RC造・地上6階建て |
| 間取り(面積) | 2LDK(58.02㎡) |
| リフォーム費用 | 808万5,000円(税込) |


リノベーション内容
- クロス貼り替え
- フローリング全面張り替え(遮音フローリング)
- 建具全交換
- 対面キッチンへ変更
- キッチン交換
- 食洗機新設
- 床暖房新設(電気式)
- ダウンライト交換(電球交換可能タイプ)
- 照明新設(ブラケット・間接照明含む)
- アクリル間仕切り扉設置
- アクセントクロス施工
- 可動棚・収納新設
- コンセント増設(収納上部・各所)
- Wi-Fi・モデム設置用配線計画
- 洗面化粧台交換
- ユニットバス交換
- トイレ交換
- 洗面横収納新設
- 間取り一部調整(水回り拡張)
- フロアタイル施工(玄関・水回り)
- カーテンレール新設
- エアコン交換
リビングは対面キッチン+床暖房で資産価値アップ!高級感を重視したデザインに






もともとの間取りは2LDKで、大きな間取り変更は行っていません。
既存のレイアウトを活かしながら、内装と設備を中心にアップデートしています。
部屋の色味は全体的に白系で統一されていますが、部分的にグレージュを採用。
白などの明るい色味だけでは、経年劣化で白茶けてしまい、安っぽく見えがちです。
今回はところどころにグレージュを取り入れることで、
想定入居者であるDINKS・DEWKS・SOHO利用の単身層に対し、お部屋の高級感を高められるように工夫しています。
フローリングについては、L-45の遮音フローリングに全て貼り替えました。
もともとコンクリートスラブの上にフローリングが貼ってある状態だったため、貼り換えの際には遮音施工をしなければなりませんでした。
そのため、今回は遮音フローリングに対応しているイメチェン・プレミアムプランで施工しています。

今回は朝日ウッドテックのフローリングを採用しました。
天然木の美しい風合いとぬくもりが魅力。キズや汚れに強く、日々のお手入れも簡単で長く快適に使えます。
空間に上質感をプラスし、心地よい住まいを演出します。
フローリング下には床暖房も新設。フローリングは床暖房対応です。
電気式の薄いパネル仕様の床暖房を導入しています。
また、オーナー様の「明るいお部屋にしたい」というご要望を受け、天井に間接照明を新設しました。
さらにダウンライトも新設。
入居者の好みで交換可能な電球式を採用しています。
ダウンライトに関しては、既存の設備を残すより交換することをおすすめします。
築20~30年程度の物件に設置されているダウンライトは、現在電球が製造されていないタイプがあります。
お部屋の間仕切りは、オーナー様のご要望で透明の建具に。
お部屋が広く見えるうえ、光がふんだんに入ります。こちらを開ければ、1つの大きな部屋として使える仕様です。

ガラスのように見えるこちらの建具、実はアクリル板を使用。
今回は素材をアクリル板に変更することで、コストを抑えて40万円に。
この大きさの引き戸で、同じようにガラスを使用すると70万円ほどかかります。
立川ブラインドで横幅や高さを全てオーダーして施工しています。
正面のアクセントクロスはタイル様の大柄な模様を採用しました。
高級な雰囲気をつくるには、アクセントクロスの柄も重要です。
シンプルな中にも高級感・重厚感のあるインテリアを導入すると、雰囲気はぐっと高まります。
間仕切りが透明なので、目線が気になる場合はカーテンで区切れるようにカーテンレールも設置済みです。
その他の建具は全室、LIXIL ラシッサDに交換しています。
木目の風合いを活かした上質なデザインが魅力。キズや汚れに強く、お手入れも簡単で美しさが長続きします。
空間にあたたかみを与え、快適な住まいづくりにぴったりです。
扉には壁や天井と同じ白ではなく、ワングレード上の濃い木目模様を採用。
また、質感が高いハンドル(マグネットタイプ)を取り付けました。
お部屋の高級感を高めたい場合、扉のハンドルなど手で触れる設備のグレードを上げるのも効果的です。
キッチン横の柱には収納棚を新設。
最上棚にはモデム・ルーター用コンセントを設置しました。
モデムやルーターは、上に収納できるように配線設計するのが大切です。
築年数の古い物件では、コンセントやLANジャックが床に近いところに設置してあるケースは多いもの。
最近はインターネットでWi-Fiを利用する入居者がほとんどなので、床でコードがごちゃごちゃにならない上のコンセントは喜ばれます。
給湯器のリモコンなどの配線関係は交換せず、既存を活用しています。




キッチンはPanasonic Sクラスに交換しました。
上質で落ち着いたデザインが魅力。汚れにくくお手入れしやすい素材で、日々の家事負担を軽減します。
機能性と美しさを兼ね備え、快適な住まいづくりに貢献します。
今回のキッチンではペニンシュラキッチンを採用していますが、柱の横にカウンターを設置する形で加工できる製品を選定しています。
ペニンシュラキッチンとは、一部が壁から半島(ペニンシュラ)のように突き出した形状のキッチンのことです。
キッチンには三口コンロとグリルも備え付けられています。
また、食洗器も導入しました。
ほとんどの再販物件には食洗器が導入されているため、売却予定がある場合は導入しておくのをおすすめします。
水回りは機能性とデザイン性を両立してリノベーション


洗面化粧台の隣には棚を新設。既存の棚よりも収納力がアップしました。
棚の中にはコンセントを設置して、利便性も向上!
洗面化粧台はPanasonicのシーライン(横幅:900㎜)に交換しました。
洗練されたデザインと使い勝手の良さが魅力。収納力が高く、すっきりとした空間づくりをサポートします。
お手入れしやすい素材で、毎日の身支度も快適に整います。
洗練されたデザインがかっこいい洗面化粧台です。シンプルなのでどんなインテリアにもなじみ、飽きがきません。


トイレも他の部屋に合わせて高級感を感じるインテリアにグレードアップ。
トイレ自体はコスパ良く仕入れられるPanasonic アラウーノVに交換しています。
すっきりとしたデザインと清潔感が魅力。汚れがつきにくくお手入れも簡単で、毎日快適に使えます。
節水性能にも優れ、家計と環境にやさしいのも嬉しいポイントです。
また、左側の壁にあった収納は取り外しました。


ユニットバスは既存の大きさ(1317サイズ)でPanasonic MR-Xに交換しました。
シンプルで使いやすいデザインが魅力。耐久性に優れ、キズや汚れがつきにくくお手入れも簡単です。
空間になじみやすく、長く快適に使える安心感があります。
直線的でシンプルなデザインながら、白のシャワー水栓や2つ並んだブラケット照明がかわいらしい雰囲気です。
洋室は収納力の高いクローゼットが魅力的



玄関横の洋室はフローリングとクロスを貼り替え、建具を入れ替えました。
大きいクローゼットの手前にはパイプハンガーを新設。
奥にも小物類やたたんだ洋服を置ける棚があるので、収納力はかなり充実しています。
また、端の方は光が届かず見えにくくなるのでブラケット照明を設置しました。
エアコンも今回交換済みです。
このお部屋のリノベーション費用と事例動画
今回リノベーションにかかった費用は808万5,000円(税込)でした。
お部屋全体をラグジュアリーな雰囲気に仕上げながら、ところどころでコストを抑えて施工しています。
女性オーナー様の雰囲気にもあっている、素敵なお部屋にイメチェンしました!
イメチェンでは、築年数の古いマンションを投資物件にリノベーションしたいオーナー様のご相談を承っております。
今回のリノベーションを担当したイメチェン下北沢店では、施工工事だけでなく設計やデザインまでワンストップで対応しています。
築年数の古いマンションを投資物件にリノベーションしたくても、間取りやデザインをどう変えればいいかわからず悩んでおられる方は多いのではないでしょうか。
下北沢店では、設計からデザインまで丸ごとご相談いただけます。
なかなか自分でデザインを考えるのが難しいという方がおられましたら、ぜひイメチェン下北沢店にお任せください。

この記事の監修者 篠原 昌志
(株)ココテラス代表取締役/一卵性の双子/山口県出身/職人・施工会社が薄利というリフォーム業界の悪い収益構造改革をする事を目標に、定額制リフォーム「イメチェン」のFC本部を運営。
現在全国42拠点で展開中。リフォーム事例を紹介するYouTubeのチャンネル登録者は約1.7万人。
1㎡1万円の定額制リフォーム「イメチェン」に相談してみませんか?
定額制リフォーム「イメチェン」は1㎡(床面積)×1万円でデザイナーズ物件にイメージチェンジを図る事ができる一般住宅、賃貸物件向けの定額制のリフォームブランドを全国で展開しています。
施工エリアの確認だけでも大歓迎
見積もり依頼も大歓迎です!
リフォーム事例満載のパンフレット配布中!

定額制リフォーム「イメチェン」施工可能エリア ※詳細はお問い合わせください
| 北関東エリア | 群馬県前橋市周辺 / 茨城県の一部 |
| 関東エリア | 埼玉県の一部 / 東京都の一部 / 神奈川県の一部 / 千葉県の一部 |
| 中部エリア | 静岡県静岡市・焼津市周辺 / 愛知県名古屋市・稲沢市周辺 |
| 関西エリア | 京都府京都市周辺 / 大阪府大阪市・枚方市周辺 / 兵庫県神戸市・明石市周辺・姫路市周辺 |
| 九州エリア | 福岡県福岡市周辺・北九州市周辺 |
オンラインリフォーム相談「イメチェンコンシェルジュ」

イメチェンコンシェルジュとはオンライン(GoogleMeet)でリフォームの無料相談が出来るサービスです。
リフォームのプロがあなたのお悩みを解決致します。
60分と限られた時間になりますので、事前に物件詳細(平面図・室内写真)やご希望の工事内容を共有頂ければ、より内容の濃い面談が可能になります。

定額制リフォーム「イメチェン」間取り別リフォーム事例
定額制リフォーム「イメチェン」金額別リフォーム事例
定額制リフォーム「イメチェン」お部屋の大きさ別リフォーム事例
定額制リフォーム「イメチェン」デザイン別リフォーム事例
お部屋をイメチェンされたお客様の声





























