
この記事の監修者 篠原 昌志
(株)ココテラス代表取締役/一卵性の双子/山口県出身/職人・施工会社が薄利というリフォーム業界の悪い収益構造改革をする事を目標に、定額制リフォーム「イメチェン」のFC本部を運営。
現在全国42拠点で展開中。リフォーム事例を紹介するYouTubeチャンネルの登録者は約1.7万人超(2025年12月末時点)。
定額制リフォームを全国展開中!
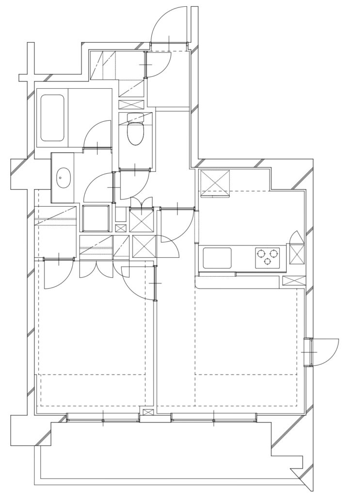
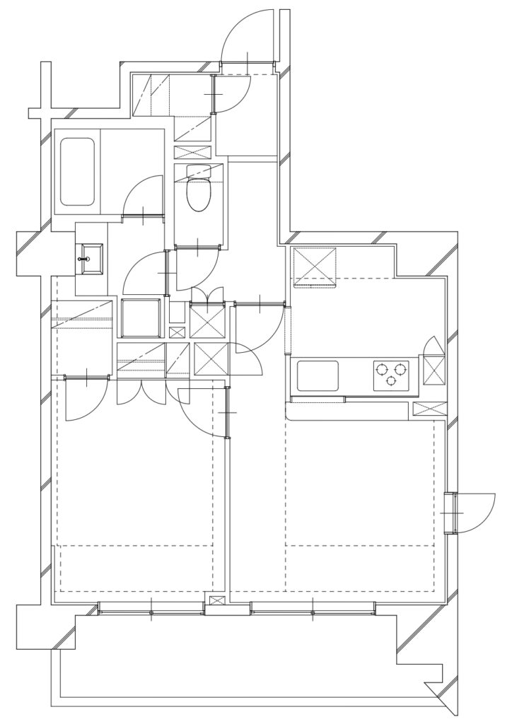
東京都江東区にある築21年、1LDK(51.3㎡)の分譲マンションをリフォーム。
比較的、築年数が浅く、設備はそれほど痛んでいなかったこともあり、「予算を抑えてお部屋の印象を変えたい」というご要望でした。
間取り変更や水回り交換なしで、新築のような印象にリフォームするのは可能なのでしょうか……?
ぜひ記事を最後までご覧いただきお確かめ下さい。
中古マンションをコスパ良くリフォームしたい方はとくに必見です!
- 中古分譲マンションを購入して施主様ご自身で住まれる予定(一人暮らし)
- 大がかりな間取り変更や水回り交換はせず、表層部分を中心にお部屋のイメージをガラッと変えたい
・木目調クロスで、シックかつ落ち着いた印象にイメチェン!
・既存設備を活かしつつ、塗装や洗面台の造作でこだわりポイントも◎!
それでは今回のリフォームの詳細についてご紹介します。
1㎡1万円の定額制リフォーム「イメチェン」

リフォーム前

リフォーム後

リフォーム前

リフォーム後
「イメチェン」は1㎡(床面積)×1万円でデザイナーズ物件にイメージチェンジを図る事ができる一般住宅、賃貸物件向けの定額制のリフォームブランドを全国42店舗で展開しています。
リフォーム事例満載のパンフレット配布中!

物件概要


リフォーム施工内容
- 天井・壁クロス全面貼替(アクセントクロス含む)
- 床上張り施工
- 床暖房対応フローリング施工
- 塩ビタイル施工(キッチン・玄関土間)
- クッションフロア貼替(洗面脱衣所・トイレ)
- リアテックシート施工(キッチン扉面材・キッチンカウンター・玄関框)
- キッチンパネル上張り施工(既存タイル面)
- 建具塗装(全室)
- レバーハンドル交換
- スイッチ/コンセントプレート交換
- 照明器具一部交換
- 巾木交換(スマート巾木に変更)
- 建具アンダーカット調整(床上張り対応)
- 造作洗面台新設(既存洗面撤去含む)
- 収納改修(扉撤去/棚板一部交換/ハンガーパイプ新設)
- 鏡取付(施主支給品)
- 既存設備クリーニング(キッチン・浴室・トイレ・三面鏡等)
リビングは天井の木目クロスが主役!シックで落ち着いた空間にリフォーム






リビングは天井と壁のクロスを全面的に貼り替えました。
天井クロスは、施主様のご要望で木目柄を採用。
インパクトがあり、お部屋の印象がグッと変わりました!
床暖房設備が付いている物件だったので、イメチェン基本パックからミドルプランを選択。
イメチェン基本プランでよく使用している塩ビタイルには、床暖房対応の商品が少ないため、ミドルプランになりました。
ミドルプランでは、上貼り可能のフローリングもご選択いただけます。
床暖房対応のナオスフローリングを導入しました。
天然木のような質感とあたたかみが魅力の床材。
キズや汚れに強く、日々のお手入れも楽に行えます。高い耐久性で長く美しさを保ち、住まいの快適さを高めてくれる床材です。



建具は白っぽいシート仕上げの扉でしたが、全体的に塗装でグレーに仕上げました。
一般的にはシートを貼り替えて色を変えることが多いですが、塗装の方がコストを抑えられます。
また、この建具は段差やラインがあり、シートだと浮きや剥がれのリスクもあるため、塗装が適していました。
とはいえ、シート仕上げの建具に塗装をする場合は、塗料が乗りにくいというデメリットもあります。
今回はプライマーを下地として入れ、塗料が密着しやすいように施工しています。
既存のシルバーラインは、塗装の際にマスキングして残し、アクセントとして活かしています。
レバーハンドルもグレーの扉に合わせて、パールブラックカラーに変更しました。






キッチンカウンターは白色でしたが、サンゲツのリアテックシートを上貼りして木目調にしています。
リアルな木目や石目を再現した高意匠シート。
既存の壁や扉に上から貼れるため工期も短く、コストを抑えながら空間の印象を一新できます。
キズや汚れに強く、お手入れも簡単です。
シンク横にある袖壁について、施主様は撤去を希望されていましたが、今回は現状のままとしました。
袖壁にオートロック連動の警報機能付きインターホンや床暖房リモコン、照明スイッチなどが集中しており、予算的にも移設工事が難しかったためです。
配線経路の変更は、一度壁を開口して確認しないと判断できないケースが多いです。
キッチンの床はフローリングではなく、塩ビタイルで上貼りしています。
キッチン本体の状態が良かったため、設備はそのまま活かしました。
扉の面材のみシートを施工して、新品のような印象に仕上げています。
タイルだった壁面には、アイカ工業のキッチンパネル・セラール上貼り。
側面も同様に施工しました。
キッチンや洗面まわりに使いやすい化粧パネル。
水や汚れに強く、お掃除もサッとひと拭きで清潔をキープできます。
デザインも豊富で、空間の雰囲気に合わせて選べるのも魅力です。
水栓やコンロも既存のものをクリーニングして活用することになりました。
寝室はアクセントクロス・スマート巾木でスタイリッシュに






リビングと同様、クロス貼り換え・床の上貼り・建具の塗装・レバーハンドル交換を行っています。
壁の一面にはアクセントクロスを採用。
幅木は60㎜の木巾木がついていましたが、撤去してPanasonicのスマート幅木に変更しました。
スマート幅木は通常の幅木より高さが低く、よりスタイリッシュな印象になります。
今回はオーナー様のご要望に合わせて採用しました。
床をフローリングで上貼りしたので約3㎜上がっており、収納扉が床に擦れる可能性があったため、アンダーカットをしました。
収納扉を取り外し、床が上がった分だけ下部をカットすることで、スムーズに開閉できるようにしています。
フローリングの上に上貼りする場合は、開き戸や折れ戸が無理なく開閉できるかのチェックを忘れずに!
造作した洗面台で高級感を演出




洗面台は既製品が設置されていましたが、ボウルに破損がありました。
使用上は問題ありませんでしたが、施主様のご希望で造作の洗面台に変更しています。
洗面台の下部に棚を設置してカウンターは下地を大工で組み、上からリアテックシートを施工。
石目調のシートのおかげで、高級感のある仕上がりに!
ミラーキャビネットは状態が良かったため、既存の物をクリーニングして再利用しています。
浴室も既存のままクリーニングのみで対応しました。
既存の設備を活かすことで全体のコストを抑えています。
床はクッションフロアに貼り替えています。


トイレも既存の設備をそのまま活かしています。
クロスとクッションフロアを貼り替え、スマート幅木に変更しました。
ペーパーホルダーも既存のまま。
もともとデザイン性のあるものだったので、空間のイメージにも合っています。
トイレ前のカウンターも、キッチンと同じシートで仕上げました。

玄関は収納も含めリニューアル!ハンガーパイプ仕様に改造






玄関の框(かまち)は大理石でしたが、リフォーム後の床のイメージに合わないため木目調のリアテックシートで仕上げました。
スイッチ類も交換しています。
鏡は施主様からの支給品で、取り付けのみ行いました。
玄関収納の一部には扉がありましたが、閉塞感があったため撤去。
枠ごと解体し、一部補修を行いました。
左側の可動棚は既存の設備のまま。
棚板は施主様がホームセンターで購入されたものを設置しました。
正面収納は奥行があったため、洋服を掛けられるように下地を補強して、アームハングタイプの可動棚を設置。
玄関土間は、石目調の塩ビタイルで仕上げています。
幅木も大理石からスマート幅木に変更しました。
このお部屋のリフォーム費用総額とのリフォーム事例動画
今回のリフォーム総額は、税込み250万円でした。
築年数が浅く水回りの状態が比較的良好だったため、間取り変更や設備交換は最小限に抑えました。
表層中心の工事でしたが、お部屋のイメージを大きくイメチェン!
築20年前後になると、設備はまだ使えてもデザインの古さや経年劣化が気になってくるものですが、表層リフォームだけでも充分印象を変えられます。
リフォームのお見積もりは無料です!
中古マンションのリフォームを検討されている方は、イメチェンまでお気軽にご相談ください。

この記事の監修者 篠原 昌志
(株)ココテラス代表取締役/一卵性の双子/山口県出身/職人・施工会社が薄利というリフォーム業界の悪い収益構造改革をする事を目標に、定額制リフォーム「イメチェン」のFC本部を運営。
現在全国42拠点で展開中。リフォーム事例を紹介するYouTubeのチャンネル登録者は約1.7万人。
1㎡1万円の定額制リフォーム「イメチェン」に相談してみませんか?
定額制リフォーム「イメチェン」は1㎡(床面積)×1万円でデザイナーズ物件にイメージチェンジを図る事ができる一般住宅、賃貸物件向けの定額制のリフォームブランドを全国で展開しています。
施工エリアの確認だけでも大歓迎
見積もり依頼も大歓迎です!
リフォーム事例満載のパンフレット配布中!

定額制リフォーム「イメチェン」施工可能エリア ※詳細はお問い合わせください
| 北関東エリア | 群馬県前橋市周辺 / 茨城県の一部 |
| 関東エリア | 埼玉県の一部 / 東京都の一部 / 神奈川県の一部 / 千葉県の一部 |
| 中部エリア | 静岡県静岡市・焼津市周辺 / 愛知県名古屋市・稲沢市周辺 |
| 関西エリア | 京都府京都市周辺 / 大阪府大阪市・枚方市周辺 / 兵庫県神戸市・明石市周辺・姫路市周辺 |
| 九州エリア | 福岡県福岡市周辺・北九州市周辺 |
オンラインリフォーム相談「イメチェンコンシェルジュ」

イメチェンコンシェルジュとはオンライン(GoogleMeet)でリフォームの無料相談が出来るサービスです。
リフォームのプロがあなたのお悩みを解決致します。
60分と限られた時間になりますので、事前に物件詳細(平面図・室内写真)やご希望の工事内容を共有頂ければ、より内容の濃い面談が可能になります。

定額制リフォーム「イメチェン」間取り別リフォーム事例
定額制リフォーム「イメチェン」金額別リフォーム事例
定額制リフォーム「イメチェン」お部屋の大きさ別リフォーム事例
定額制リフォーム「イメチェン」デザイン別リフォーム事例
お部屋をイメチェンされたお客様の声





























