
この記事の監修者 篠原 昌志
(株)ココテラス代表取締役/一卵性の双子/山口県出身/職人・施工会社が薄利というリフォーム業界の悪い収益構造改革をする事を目標に、定額制リフォーム「イメチェン」のFC本部を運営。
現在全国42拠点で展開中。リフォーム事例を紹介するYouTubeチャンネルの登録者は約1.7万人超(2025年12月末時点)。
定額制リフォームを全国展開中!
「古い物件を買って、自分好みに作り替えたい」、そんな夢をお持ちの方は多いのではないでしょうか?
今回は神奈川県横浜市にある築56年1DK(37㎡)の分譲マンションを「自分らしく暮らせる住まい」にフルリノベーション!
中古物件のリノベーションをご検討中の方には、ヒントが詰まった必見の内容です。
リノベーションのビフォーアフターを、ぜひご覧ください。
- バルコニーにある室外洗濯機置き場を室内に移動したい
- 洗濯機置き場を室内に新設し快適な水廻りを実現
- 細かく区切られた1DKの間取りを開放感溢れる広々ワンルームにイメチェン
それでは、今回のリノベーションの詳細についてご紹介します。
1㎡1万円の定額制リフォーム「イメチェン」

リフォーム前

リフォーム後

リフォーム前

リフォーム後
「イメチェン」は1㎡(床面積)×1万円でデザイナーズ物件にイメージチェンジを図る事ができる一般住宅、賃貸物件向けの定額制のリフォームブランドを全国42店舗で展開しています。
リフォーム事例満載のパンフレット配布中!

物件概要


リノベーション施工内容
- 1DK→ワンルームに間取り変更
- キッチン交換
- 居室内壁石膏ボード増し張り
- キッチン天井増し張り
- 可動棚設置
- オープン棚・ピクチャーレール設置
- 洗濯機置き場新設
- 遮音フローリング施工(L−40)
- 間仕切り壁・天井造作
- エアコン新設(コア抜き・コンセント新設工事含む)
- クロス張り替え
- 窓・玄関枠シート施工
- 洗面化粧台交換
- 浴槽交換
- 照明交換
- 建具交換
- トイレ交換
- 分電盤交換
- 給水管・給湯管更新
- その他
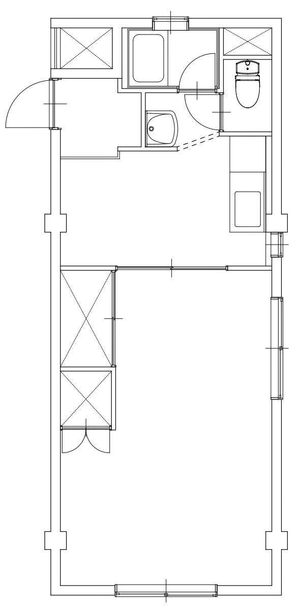
細かく区切られた1DKを開放的で明るいワンルームに間取り変更


アコーディオンカーテンで仕切られていた1DKを、開放的なワンルームに間取り変更しました。
床は、カーペットやクッションフロアを撤去し、マンション規定をクリアするL−40等級の遮音フローリングを採用。
見た目の美しさだけでなく、集合住宅に欠かせない遮音性も◎!
また、お部屋の圧迫感を抑えるため、扉のないオープンタイプの可動棚を設置。
その横にはコートなども掛けられるピクチャーレールを設け、収納力と開放感を両立させています。


窓枠はシートを張って仕上げました。
既存の壁の状態を考慮し、下地調整として石膏ボードを増し張りしています。
ボードの厚みで生じる断面(小口)をきれいに納めるため、窓枠の周囲に見切り材を施しました。
単に見栄えを整えるだけでなく、耐久性を高め、長く良好な状態でご使用いただけるよう施工しています。
外壁に配管用の穴を空け専用コンセントを新設し、エアコン設置を可能にしました。




キッチンは「Tio(ティオ)」を採用
狭い室内を広く見せるため、キッチンの壁を腰壁に変更して開放感を出しました。
また、室内に洗濯機置き場を設置するスペースを確保するため、キッチンの位置を右側に少しずらしています。
キッチンはLIXILのTio(ティオ)を採用。
コストパフォーマンスを重視しながらも、必要な機能を備えたコンパクトな設計であるため、LIXILのTio(ティオ)にしました。
多彩なデザインとハイクラスな機能性が魅力のコンパクトキッチン。


天井高の差を解消するため、境界に薄い梁を設置して高さを統一しました。
キッチンの天井はアスベストを含有していたため、壊さず安全に配慮した増し張りを行い、クロスで仕上げています。
また、壁に生じていた1cm程度の傾きは、新設した造作壁との接合部が自然に見えるよう、見切り材を用いてきれいに納めました。
限られた空間を最大限活用!水廻りの効率的リノベーション
脱衣所のスペースをキッチン側に広げて、室内洗濯機置き場のスペースを確保。
洗濯機置き場の新設に伴い、洗面化粧台は横幅を抑えたLIXIL のオフトを採用。
限られたスペースを最大限に活かしたレイアウトに仕上げました。
なめらかな質感の陶器ボウルを搭載した快適・エコな洗面化粧台です。



トイレは扉の位置を変更し、奥行きを10cm程広げて、ゆとりのある空間に仕上げました。
また、トイレとキッチンの間に生じたデッドスペースには、可動棚を造作して収納力UP!


浴室には、パナソニックAWソリューションズ のUWⅡを設置。
既存サイズを維持しつつ、追い焚き機能を新たに追加しました。
給湯器の交換(メーターボックス内設置)に合わせ、給水・給湯管などの配管類もすべて更新しています。
浴槽と床が一体型のリーズナブルな商品です。
浴室が使いやすく、日々の掃除もしやすいのがメリット。


照明&アクセントクロスで彩るモダンな玄関
管理組合によって更新された玄関扉のテイストに合わせて、枠にシートを張り、統一感を高めました。
壁の一面にはアクセントクロスを施し、照明は人感センサー付きのダウンライトを新設。
さらに、施主様こだわりのモチーフライトが空間を彩ります。
分電盤も交換し、細部まで安心・快適な住まいにアップデートしました。


リノベーション動画と費用総額!使用設備もご紹介
今回のリノベーション費用は、総額517万円(税込)となりました。
37㎡の限られた空間をフルリノベーションし、水廻り設備を全て一新。
給湯・給水管も更新し、暮らしの安心を底上げしています。
また、機能面ではエアコンのコア抜きや、専用コンセントの新設。
間仕切り壁や天井の造作など、使い勝手にもこだわりました。
床材にはイメチェンのプレミアムプランを採用し、遮音等級をクリアしたフローリングを施工しています。
「長く、大切に使っていただきたい」、そんな想いも詰まった今回のリノベーション。
このお部屋が、施主様の最高の住まいになれば幸いです。
イメチェン藤沢店は、大工工事を軸とした高い技術力を強みに、大規模な間取りのレイアウト変更を得意としております。
神奈川県全域および東京都の一部地域を対象に、理想の住まいづくりをサポートしております。
リフォーム・リノベーションをご検討中の方はぜひ、お気軽にこちらからご相談ください。
今回使用した主要設備はこちら▼
- キッチン▶︎LIXIL/Tio(ティオ)(サイズ:1650)
- 洗面化粧台▶︎LIXIL/オフト(W500)
- トイレ▶︎INAX
- 浴槽▶︎パナソニックAWソリューションズ/UWⅡ(サイズ:1014)

この記事の監修者 篠原 昌志
(株)ココテラス代表取締役/一卵性の双子/山口県出身/職人・施工会社が薄利というリフォーム業界の悪い収益構造改革をする事を目標に、定額制リフォーム「イメチェン」のFC本部を運営。
現在全国42拠点で展開中。リフォーム事例を紹介するYouTubeのチャンネル登録者は約1.7万人。
1㎡1万円の定額制リフォーム「イメチェン」に相談してみませんか?
定額制リフォーム「イメチェン」は1㎡(床面積)×1万円でデザイナーズ物件にイメージチェンジを図る事ができる一般住宅、賃貸物件向けの定額制のリフォームブランドを全国で展開しています。
施工エリアの確認だけでも大歓迎
見積もり依頼も大歓迎です!
リフォーム事例満載のパンフレット配布中!

定額制リフォーム「イメチェン」施工可能エリア ※詳細はお問い合わせください
| 北関東エリア | 群馬県前橋市周辺 / 茨城県の一部 |
| 関東エリア | 埼玉県の一部 / 東京都の一部 / 神奈川県の一部 / 千葉県の一部 |
| 中部エリア | 静岡県静岡市・焼津市周辺 / 愛知県名古屋市・稲沢市周辺 |
| 関西エリア | 京都府京都市周辺 / 大阪府大阪市・枚方市周辺 / 兵庫県神戸市・明石市周辺・姫路市周辺 |
| 九州エリア | 福岡県福岡市周辺・北九州市周辺 |
オンラインリフォーム相談「イメチェンコンシェルジュ」

イメチェンコンシェルジュとはオンライン(GoogleMeet)でリフォームの無料相談が出来るサービスです。
リフォームのプロがあなたのお悩みを解決致します。
60分と限られた時間になりますので、事前に物件詳細(平面図・室内写真)やご希望の工事内容を共有頂ければ、より内容の濃い面談が可能になります。

定額制リフォーム「イメチェン」間取り別リフォーム事例
定額制リフォーム「イメチェン」金額別リフォーム事例
定額制リフォーム「イメチェン」お部屋の大きさ別リフォーム事例
定額制リフォーム「イメチェン」デザイン別リフォーム事例
お部屋をイメチェンされたお客様の声





























