
この記事の監修者 篠原 昌志
(株)ココテラス代表取締役/一卵性の双子/山口県出身/職人・施工会社が薄利というリフォーム業界の悪い収益構造改革をする事を目標に、定額制リフォーム「イメチェン」のFC本部を運営。
現在全国42拠点で展開中。リフォーム事例を紹介するYouTubeチャンネルの登録者は約1.7万人超(2025年12月末時点)。
定額制リフォームを全国展開中!
埼玉県三郷市にある三郷団地。
9,000世帯という圧倒的な規模を誇るこの場所で、築51年3DK(51㎡)の一室をフルリノベーションしました!
今回リノベーションを担当したのはイメチェン埼玉吉川店です。
現在三郷団地にお住まいの方や、中古物件で資産運用を考えている方には、参考になる内容となっております。
三郷団地がどのような変貌を遂げるのかぜひ最後までご覧ください。
- キッチン・浴室・トイレ・洗面などの設備を一新したい
- 露出配管による「圧迫感」や「生活感」を払拭しスッキリしてほしい
- 細かく仕切られた古い間取りを見直し広々とした空間にしてほしい
- 3DKから1LDKへ間取り変更し広々とした空間を実現
- キッチン・浴室・トイレ・洗面などの設備を一新し快適で使いやすい水廻りに
それでは、今回のリノベーションの詳細についてご紹介します。
1㎡1万円の定額制リフォーム「イメチェン」

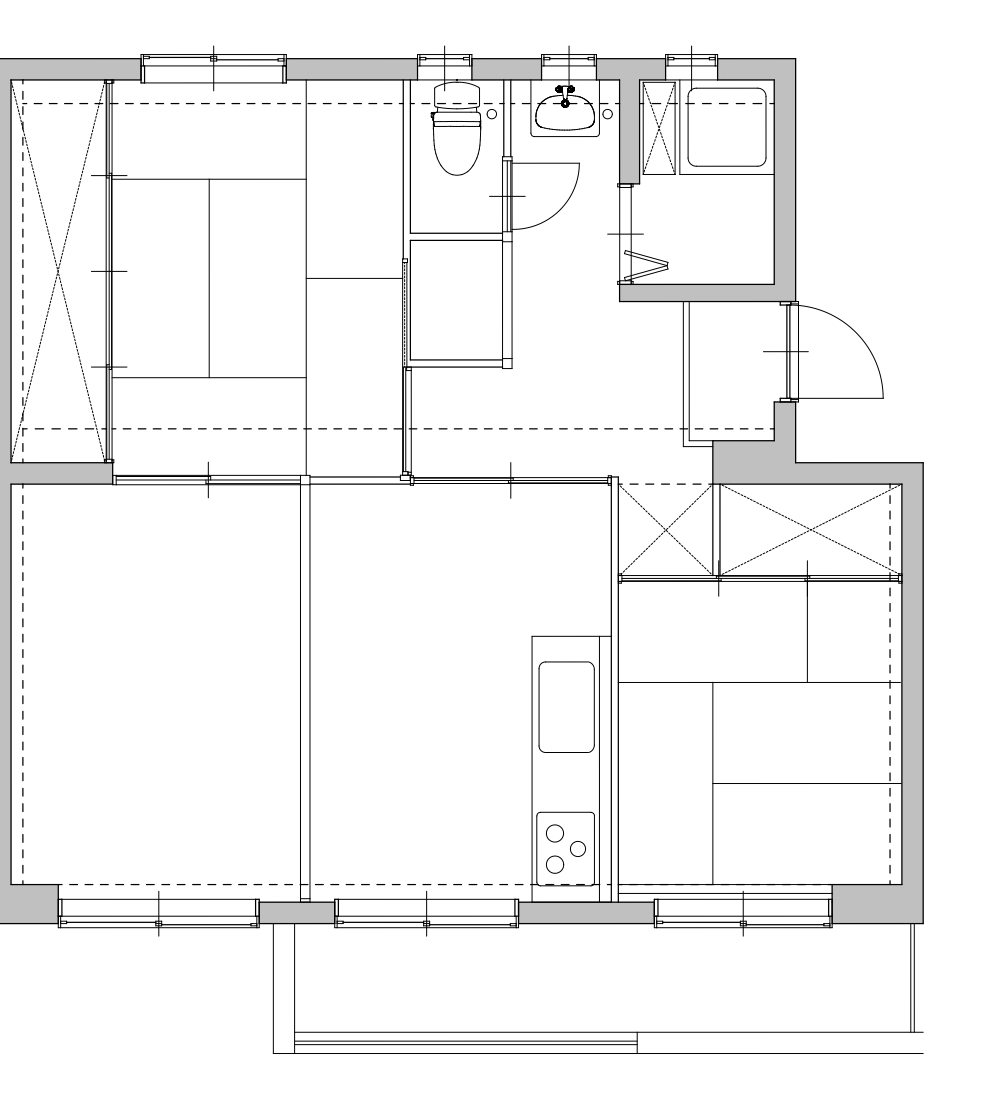
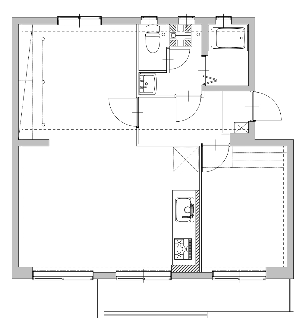
リフォーム前

リフォーム後

リフォーム前

リフォーム後
「イメチェン」は1㎡(床面積)×1万円でデザイナーズ物件にイメージチェンジを図る事ができる一般住宅、賃貸物件向けの定額制のリフォームブランドを全国42店舗で展開しています。
リフォーム事例満載のパンフレット配布中!

物件概要


リノベーション施工内容
- 3DK→1LDKへ間取り変更
- 和室→洋室変更
- バランス釜→壁貫通型給湯器(オールインワン)に変更
- 置床工法施工
- キッチン交換
- 可動棚設置(レンジフードダクト下)
- オープンクローゼット設置
- アイアンパイプハンガー別設
- 洗濯機置き場・洗面化粧台移設
- 塩ビタイル・フロアタイル・クッションフロア・ウッドタイル施工(床)
- 木枠塗装
- クロス張り替え
- 洗面化粧台交換
- 浴槽交換
- 照明交換
- 建具・折れ扉交換
- トイレ交換
- 下駄箱交換
- 分電盤交換
- 給水管・給湯管更新
- その他
1㎡×1万円の定額制リフォーム「イメチェン」は全国展開中!



「イメチェン」は1㎡(床面積)×1万円でデザイナーズ物件にイメージチェンジを図る事ができる一般住宅、賃貸物件向けの定額制のリフォームブランドを全国で展開しています。
築古のアパート、マンション、戸建てはイメチェン可能です!
お見積りは無料です!
3DKから開放的な1LDKへ!広々とした開放的なキッチンを実現






今回のリノベーションでは、施主様と共にショールームへ足を運びこだわりのキッチンを選定しました。
キッチンにはクリナップのrakuera(ラクエラ)を採用し、ブラックの取手で引き締めモダンに仕上げています。
設計上の大きなポイントは、床より高い位置にあった排水管への対応です。
あえてキッチンの奥行きを大きく設定し、その背面スペースを活用して配管を通すことで、構造上の課題をクリアしながらスムーズな排水勾配を確保しました。
また、レンジフード交換の際に生じるダクト下のデッドスペースには、可動棚を造作。
マグネット対応パネルやタッチセンサー付き照明、スイッチやコンセントなども集約して、デザイン性と機能性が共存する理想のキッチンスペースが完成しました。
「キッチンは家具、と考える」をテーマとして展開しているシステムキッチン。インテリアに馴染む豊富なデザインが魅力ですが、機能性も高いのが特徴です。
キッチンの天井をあえて7cm程下げ空間にメリハリをつけました。
照明には4灯のダウンライトと、自由度の高いライティングレールを併用しています。
また、一度スケルトン状態に戻して床構造から再構築しました。
集合住宅という特性を考慮し、遮音性に優れた「置床工法」を採用。
この隙間を利用して配管をすべて床下に納め、美しい仕上がりを実現しました◎
コンクリート床の上に支持脚を使って隙間を作り、もう一層の床を作る(二重床)工法のこと。


和室から洋室へ!見せる収納を楽しむリビング
以前は和室だった部屋を、開放感あふれる洋室へと変更しました。
一番のこだわりは、あえて扉を設けないオープンクローゼット。
4枚扉の押し入れを解体し、見せる収納を楽しむ空間を目指しました。
クローゼット内部にはパイプハンガーを設置。
さらにアイアンのパイプハンガーを別設し、機能性とデザイン性を両立させています。
また、床には塩ビタイルを張り、木枠は塗装で丁寧に仕上げました。
リビングの建具には、NODAのカナエルCデザインを採用。
他にも、照明もこだわりヴィンテージライクな空間に仕上げています。
水や汚れがしみにくく、お手入れしやすいのが特徴。抗菌処理もされており、細菌や傷に強いのもうれしいポイントです。
価格優位性:他社に比べ安価に仕入れることができる
信頼関係:長年の付き合いがあり納期や仕様の融通が利きやすい




1㎡×1万円の定額制リフォーム「イメチェン」は全国展開中!



「イメチェン」は1㎡(床面積)×1万円でデザイナーズ物件にイメージチェンジを図る事ができる一般住宅、賃貸物件向けの定額制のリフォームブランドを全国で展開しています。
築古のアパート、マンション、戸建てはイメチェン可能です!
お見積りは無料です!
レイアウトの逆転で理想を叶えたサニタリー空間
洗面所は明るくシンプルにをテーマに、NODAのカナエルCデザインの建具を採用しました。
今回は置床工法を採用したことで、配管の制約をクリア。
洗面台と洗濯機置き場の位置を入れ替え、より使い勝手の良い動線を実現しました。
洗面化粧台にはTOTOのVシリーズ(2面鏡)を設置。
洗面所の床と天井は木目調で仕上げ、照明はダウンライトを採用しました。
他にも、配管スペースの出っ張りは、デザインの一部としてすっきりと納めています。
水や汚れがしみにくく、お手入れしやすいのが特徴。抗菌処理もされており、細菌や傷に強いのもうれしいポイントです。
すっきりとしたデザインと使いやすさが魅力。お手入れが簡単な仕様で、日々の暮らしに快適さをプラスします。


浴室は広さを最大限に引き出すためオーダーメイド仕様に。
スペースを圧迫していたバランス釜を、壁貫通型給湯器(オールインワン)へ変更し給湯器本体を室外へ設置しました。
壁は通常のユニットバスよりも薄い防水パネルを張ることで、一回り大きな浴槽の設置を実現しています。
さらに、ハーフユニットの床に全面防水を施した上でオリジナルのパネルを組み合わせ、入り口の折れ戸も特注で製作。
また、リビング側からキッチンを経由する新たな配管を新設し、利便性の高い給湯システムと念願の追い焚き機能も完備しました。




以前は一段低くなっていたタイル床を、段差のないフラットな床に仕上げました。
トイレ内にある露出した配管は隠せませんでしたが、トイレをTOTOのZR1に交換し見た目をスッキリとさせています。


開放的なオープン収納で大きなベットも置ける寝室に
寝室の建具は、梁下に合わせて特注しました。
床には質感の良いウッドタイルを張っています。
大きなベッドを置くスペースを確保するため、押入れをオープンクローゼットに変更。
収納の自由度を優先し、パイプハンガーは取り外し可能なタイプを選定しました。
壁の一面にはアクセントクロスを張り、木枠はあえて一部黒く塗装することで空間全体を引き締めています。




グレーを基調としたスタイリッシュな玄関
廊下の床は、フロアタイルでモダンな雰囲気に仕上げました。
玄関の壁には、石目調のグレーのアクセントクロスを採用。
土間はクッションフロアを張り質感にもこだわりました。
また、2カ所のダウンライトは人感センサー付きの物を選定。
下駄箱と分電盤も交換するなど、デザイン性と機能性の両面をアップデートしています。


リノベーション動画と費用総額!使用設備もご紹介
今回のリノベーション費用は総額650万円(税込)でした。
水廻りを全て一新し間取り変更も実施、三郷団地を現代のライフスタイルに最適化させた今回のリノベーション。
「古いから」と諦める前に、まずはこの事例と価格をチェックしてみてください。
あなたのリノベ計画を具体化させるヒントが詰まっています!
私たち定額制リフォーム「イメチェン」は、住宅再生を通じて、関わるすべての人に笑顔を届けることを目指しています。
業界の常識だった「不透明な見積もり」をゼロにし、一目でわかる「明朗会計の定額制」を実現しました。
駆け引きのない、誠実な住まいづくりをここから。
まずはお気軽にこちらからご相談ください。
今回使用した主要設備はこちら▼
- キッチン▶︎クリナップ/rakuera(ラクエラ)(サイズ:2100)
- 洗面化粧台▶︎TOTO/Vシリーズ(サイズ:600)
- トイレ▶︎TOTO/ZR1
- 建具▶︎NODA/カナエルCシリーズ

この記事の監修者 篠原 昌志
(株)ココテラス代表取締役/一卵性の双子/山口県出身/職人・施工会社が薄利というリフォーム業界の悪い収益構造改革をする事を目標に、定額制リフォーム「イメチェン」のFC本部を運営。
現在全国42拠点で展開中。リフォーム事例を紹介するYouTubeのチャンネル登録者は約1.7万人。
1㎡1万円の定額制リフォーム「イメチェン」に相談してみませんか?
定額制リフォーム「イメチェン」は1㎡(床面積)×1万円でデザイナーズ物件にイメージチェンジを図る事ができる一般住宅、賃貸物件向けの定額制のリフォームブランドを全国で展開しています。
施工エリアの確認だけでも大歓迎
見積もり依頼も大歓迎です!
リフォーム事例満載のパンフレット配布中!

定額制リフォーム「イメチェン」施工可能エリア ※詳細はお問い合わせください
| 北関東エリア | 群馬県前橋市周辺 / 茨城県の一部 |
| 関東エリア | 埼玉県の一部 / 東京都の一部 / 神奈川県の一部 / 千葉県の一部 |
| 中部エリア | 静岡県静岡市・焼津市周辺 / 愛知県名古屋市・稲沢市周辺 |
| 関西エリア | 京都府京都市周辺 / 大阪府大阪市・枚方市周辺 / 兵庫県神戸市・明石市周辺・姫路市周辺 |
| 九州エリア | 福岡県福岡市周辺・北九州市周辺 |
オンラインリフォーム相談「イメチェンコンシェルジュ」

イメチェンコンシェルジュとはオンライン(GoogleMeet)でリフォームの無料相談が出来るサービスです。
リフォームのプロがあなたのお悩みを解決致します。
60分と限られた時間になりますので、事前に物件詳細(平面図・室内写真)やご希望の工事内容を共有頂ければ、より内容の濃い面談が可能になります。

定額制リフォーム「イメチェン」間取り別リフォーム事例
定額制リフォーム「イメチェン」金額別リフォーム事例
定額制リフォーム「イメチェン」お部屋の大きさ別リフォーム事例
定額制リフォーム「イメチェン」デザイン別リフォーム事例
お部屋をイメチェンされたお客様の声





























