
この記事の監修者 篠原 昌志
(株)ココテラス代表取締役/一卵性の双子/山口県出身/職人・施工会社が薄利というリフォーム業界の悪い収益構造改革をする事を目標に、定額制リフォーム「イメチェン」のFC本部を運営。
現在全国42拠点で展開中。リフォーム事例を紹介するYouTubeチャンネルの登録者は約1.7万人超(2025年12月末時点)。
定額制リフォームを全国展開中!
東京都江東区にある築53年50㎡の分譲マンション。
老朽化した設備と時代のニーズに合わない間取りが、空室改善の課題となっていました。
そこで今回は、最新設備で競争力を高め、安定した賃貸経営を目的にフルリノベーションを実施。
イメチェン新橋店がこの難題に取り組みました。
空室の悩みを解決する「賃貸経営のヒント」が詰まったビフォーアフターをご覧ください。
- 長期間の賃貸契約が終了したため、家賃アップを実現できるよう設備や間取りを一新し、その後の再募集までお願いしたい
- 和室を洋室に変更し、家族が集う広々とした快適なLDKを実現
- 屋内設置型給湯器移設で一変!使いやすい水廻りに
それでは、今回のリノベーションの詳細についてご紹介します。
1㎡1万円の定額制リフォーム「イメチェン」

リフォーム前

リフォーム後

リフォーム前

リフォーム後
「イメチェン」は1㎡(床面積)×1万円でデザイナーズ物件にイメージチェンジを図る事ができる一般住宅、賃貸物件向けの定額制のリフォームブランドを全国42店舗で展開しています。
リフォーム事例満載のパンフレット配布中!

物件概要


リノベーション施工内容
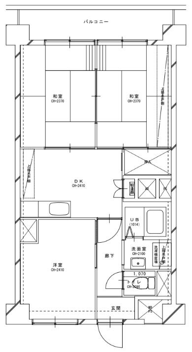
- 3DK→2LDK(間取り変更)
- 和室から洋室変更
- 屋内設置型給湯器移設
- 塩ビタイル施工(床)
- キッチン・廊下配置調整
- 柱・ボックス造作(壁面)
- キッチン交換
- クロス張替え
- 建具交換
- クローゼット新設
- 可動棚造作
- 照明交換
- ユニットバス交換
- 洗面化粧台交換
- トイレ交換
- 窓・玄関枠ダイノックシート施工
- テレビモニター付きインターホン交換
- エアコン新設(3台)
- エアコン配管工事
- 給湯管・給水管更新
- その他
1㎡×1万円の定額制リフォーム「イメチェン」は全国展開中!



「イメチェン」は1㎡(床面積)×1万円でデザイナーズ物件にイメージチェンジを図る事ができる一般住宅、賃貸物件向けの定額制のリフォームブランドを全国で展開しています。
築古のアパート、マンション、戸建てはイメチェン可能です!
お見積りは無料です!
3DKから2LDKに!現代の暮らしに合う広々リビングに



昔ながらの和室が二間ある3DKを、現代のライフスタイルに合うおしゃれな2LDKに変更しました。
和室を洋室に変更するため、床は分譲マンションの規約に対応する遮音性の高い下地を張り、その上から塩ビタイルで仕上げました。
建具も全て一新。
窓枠にもシートを張ることで空間全体の統一感を高めています。
リビングの壁には柱を造作。
2台分のエアコンの配管を通し、すっきりとした仕上がりになりました。

今回の物件にはオートロック設備がないため、テレビモニター付きのインターホンも新設しています。

LIXILシエラSで叶える!洗練されたキッチン
キッチンは、LIXILのシエラSを採用しました。
落ち着きのあるグレーの色味が、空間に洗練された印象を与えてくれます。
エアコンの配管処理のために造作したボックスや柱に合わせて、キッチンの配置を調整。
違和感なく、きれいに納まりました。
使いやすさとデザイン性を両立したシステムキッチン。
高い収納力とお手入れのしやすさで、毎日の料理がもっと快適になります。


1㎡×1万円の定額制リフォーム「イメチェン」は全国展開中!



「イメチェン」は1㎡(床面積)×1万円でデザイナーズ物件にイメージチェンジを図る事ができる一般住宅、賃貸物件向けの定額制のリフォームブランドを全国で展開しています。
築古のアパート、マンション、戸建てはイメチェン可能です!
お見積りは無料です!
遮音性と開放感を両立した洋室リノベーション
こちらの居室も和室から洋室に作り替えました。
床には遮音性の高い下地を張り、その上から塩ビタイルで仕上げています。
隣接するリビングとの間仕切りには、両開きの引き戸を採用。
また、エアコン設置に伴う配管は既存の穴を利用して先行配管を通し、すっきりとした仕上がりを実現しました。
さらに、クローゼットも新設して機能性も高めています。




難題クリアでエアコン設置が可能に◎玄関横の洋室
築古物件にはエアコンが設置できないことがよくあります。
今回の物件においても、玄関横の洋室にエアコンを設置することが今回の大きな課題でした。
冷媒管の確保のため各所にボックスを造作して配管工事を行い、ベランダまで通して室外機を設置できるようにしました。
さらに、分電盤から専用回路のコンセントを新設。
床は塩ビシートで仕上げ、スイッチ・コンセントも交換。
カーテンレールやクローゼットも一新し、機能的で快適性の高いお部屋に生まれ変わりました。



デッドスペースをゼロに!屋内設置型給湯器移設で快適な水廻り
築年数の古い物件に多く見られる、脱衣所を圧迫する屋内設置型給湯器。
今回のリノベーションでは、緻密な配管ルートの設計・確保を行い、この給湯器をベランダへ移設!
デッドスペースは解消され、洗面空間にゆとりが生まれました。


屋内設置型給湯器のあったスペースにLIXILのピアラ(洗面台)を設置。
正面には洗濯機置き場を移設。
動線を見直して、水廻りの機能性と利便性が大きく向上しました。
広々としたボウルとたっぷりの収納で、朝の身支度がスムーズに。
お掃除もラクで、忙しい毎日にうれしい機能が満載です。



元々、洗面・洗濯機があったスペースにLIXILのBWシリーズを設置。
これにより、コンパクトだった浴室を一回りサイズアップすることに成功!
念願の追い焚き機能も完備するなど、水廻りの全体がとても快適になりました!
マンションやアパートなど集合住宅用。
選べる色が豊富で、コンパクト且つ使いやすいバスルームです。


座ると膝が扉にあたるほどの狭さ(奥行き100cm)が課題だったトイレ空間。
廊下を20cmほどずらして奥行きを120cmにし、ゆとりができました。
便器はTOTOのZR1に交換しました。
優れた清掃性と節水性を備えているため、トイレリフォームでは非常に人気の高いモデルです。


機能的でモダンな玄関
玄関横には可動棚付きのオープン収納を設置しました。
また、照明設備を刷新。
玄関上部には人感センサー付き照明を、廊下にはダウンライトを設置し、利便性と快適性に配慮。
玄関扉の枠はダイノックシートで仕上げてきれいになりました!



リノベーション動画と費用総額!使用設備もご紹介
今回のリノベーション費用は総額600万円(税込)でした
3DKから2LDKに間取りを変更し、現代のライフスタイルに合う洋室に変更。
給水管・給湯管の更新や、水廻りの設備なども全て新しくしました。
賃貸物件として設備のグレードを適正化し、この価格でこのリノベーション内容を実現しています。
今回使用した主要設備はこちら▼
- キッチン▶︎LIXIL/シエラS(幅1950)
- トイレ▶︎TOTO/ZR1
- 浴室▶︎LIXIL/BWシリーズ(1216サイズ)
- 洗面台▶︎LIXIL/ピアラ(幅600)
新しく生まれ変わったこちらのお部屋は、絶賛大募集中です!
(2025年11月現在情報。時期により募集が終了していることもございます。ご了承ください)
イメチェン新橋店は、リフォームやリノベーションだけではなく、不動産売買や賃貸管理も得意としております。
空室期間が長くてお困りの方、現在の管理会社に不安を感じているオーナー様は、ぜひお気軽にこちらからご相談ください。

この記事の監修者 篠原 昌志
(株)ココテラス代表取締役/一卵性の双子/山口県出身/職人・施工会社が薄利というリフォーム業界の悪い収益構造改革をする事を目標に、定額制リフォーム「イメチェン」のFC本部を運営。
現在全国42拠点で展開中。リフォーム事例を紹介するYouTubeのチャンネル登録者は約1.7万人。
1㎡1万円の定額制リフォーム「イメチェン」に相談してみませんか?
定額制リフォーム「イメチェン」は1㎡(床面積)×1万円でデザイナーズ物件にイメージチェンジを図る事ができる一般住宅、賃貸物件向けの定額制のリフォームブランドを全国で展開しています。
施工エリアの確認だけでも大歓迎
見積もり依頼も大歓迎です!
リフォーム事例満載のパンフレット配布中!

定額制リフォーム「イメチェン」施工可能エリア ※詳細はお問い合わせください
| 北関東エリア | 群馬県前橋市周辺 / 茨城県の一部 |
| 関東エリア | 埼玉県の一部 / 東京都の一部 / 神奈川県の一部 / 千葉県の一部 |
| 中部エリア | 静岡県静岡市・焼津市周辺 / 愛知県名古屋市・稲沢市周辺 |
| 関西エリア | 京都府京都市周辺 / 大阪府大阪市・枚方市周辺 / 兵庫県神戸市・明石市周辺・姫路市周辺 |
| 九州エリア | 福岡県福岡市周辺・北九州市周辺 |
オンラインリフォーム相談「イメチェンコンシェルジュ」

イメチェンコンシェルジュとはオンライン(GoogleMeet)でリフォームの無料相談が出来るサービスです。
リフォームのプロがあなたのお悩みを解決致します。
60分と限られた時間になりますので、事前に物件詳細(平面図・室内写真)やご希望の工事内容を共有頂ければ、より内容の濃い面談が可能になります。

定額制リフォーム「イメチェン」間取り別リフォーム事例
定額制リフォーム「イメチェン」金額別リフォーム事例
定額制リフォーム「イメチェン」お部屋の大きさ別リフォーム事例
定額制リフォーム「イメチェン」デザイン別リフォーム事例
お部屋をイメチェンされたお客様の声





























