
この記事の監修者 篠原 昌志
(株)ココテラス代表取締役/一卵性の双子/山口県出身/職人・施工会社が薄利というリフォーム業界の悪い収益構造改革をする事を目標に、定額制リフォーム「イメチェン」のFC本部を運営。
現在全国42拠点で展開中。リフォーム事例を紹介するYouTubeチャンネルの登録者は約1.7万人超(2025年12月末時点)。
定額制リフォームを全国展開中!
千葉県松戸市、築55年RC造3DKの団地をリノベーションした事例についてご紹介します。
ご両親が所有されている物件を引き継ぎ、ご自身でお住まいになるためご依頼をいただきました。
今回はイメチェン習志野店が担当しました。
使用した主要設備の製品名もご紹介しておりますので、ぜひ最後までご覧ください。
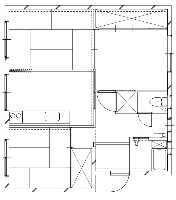
- 間仕切りを外してリビングスペースを作りたい
- 北向きの部屋を暖かくしたい
- 扉を全て引き戸に変更してほしい
- 3DK→2LDKにリノベーション、広々としたリビングスペースに
- エコカラットを使用し北向きのお部屋も暖かく快適に
- 扉は全て引き戸に変更、開放感のあるお部屋に
一般住宅(分譲マンション・戸建)向け定額制リフォーム「イメチェン」

リフォーム前

リフォーム後
定額制リフォーム「イメチェン」とは、1㎡(床面積)×1万円から始めることができる中古住宅(分譲マンション・戸建住宅)をオシャレなデザイナーズ住宅にイメージチェンジできる「定額制リフォーム」です。
全国42店舗で展開中!
中古住宅のリフォーム事例満載のパンフレット配布中!

物件概要


リノベーション施工内容
- 天井・壁クロス張り替え
- 塩ビタイル施工(床)
- 和室を洋室に変更
- 壁の造作
- 天井裏にインターネットの配管設置
- モニター付きのインターホン設置
- スイッチ・コンセント交換
- 木部塗装
- 断熱材・エコカラット施工
- 洗濯パン交換
- 給湯器に変更
- キッチン交換
- シューズボックス交換
- ユニットバスに交換
- トイレ交換
- 独立洗面台設置
- その他
1㎡×1万円の定額制リフォーム「イメチェン」は全国展開中!



「イメチェン」は1㎡(床面積)×1万円でデザイナーズ物件にイメージチェンジを図る事ができる一般住宅、賃貸物件向けの定額制のリフォームブランドを全国で展開しています。
築古のアパート、マンション、戸建てはイメチェン可能です!
お見積りは無料です!
間仕切りを無くし広々としたリビングスペースにリノベーション!






もともとキッチンの隣にあった和室を洋室に作り替え、壁は真壁から大壁に変更しました。
真壁は、柱や梁を露出させて仕上げた内壁のこと。
大壁は、柱や梁を壁の中に隠した内壁のことになります。
施主様のご要望によりインターネットの配管は天井裏に設置。部屋全体がスッキリとした印象になりました。
コンセントは全て3つ口に変更し、利便性も考えて増設もしています。
リフォーム・リノベーションで大掛かりな電気工事をするのであれば、ついでにコンセントの増設などもしやすいので、まとめて依頼すると◎
キッチンはクリナップのステディアに変更


キッチンはクリナップのステディア(2550サイズ)に変更。
プルダウン式の水切り棚にしたことで、背の高さを気にせず使用することができます。
美しさと機能性を兼ね備えた、長く使えるキッチンです。
高品質なキッチンや、お手入れのしやすさを重視する方にオススメです!
団地では取り付けが難しいおしゃれなレンジフードは、壁を造作して設置できました。
キッチンの位置は少し手前になりましたが、窓の開閉には支障がないよう設置しています。
1㎡×1万円の定額制リフォーム「イメチェン」は全国展開中!



「イメチェン」は1㎡(床面積)×1万円でデザイナーズ物件にイメージチェンジを図る事ができる一般住宅、賃貸物件向けの定額制のリフォームブランドを全国で展開しています。
築古のアパート、マンション、戸建てはイメチェン可能です!
お見積りは無料です!
【浴室・トイレ】水廻りは使いやすく洗練された雰囲気に


脱衣所にはEIDAI(エイダイ)のスリムインパウダーを設置。
洗濯物を一時的に置いたり、ついでに畳んだりできるので、便利ですね。
EIDAIが販売している洗面・パウダールーム用の壁面埋め込み型収納です。
洗面周りの整理整頓ができ、すっきりとしたおしゃれな空間が実現できます。
浴室はタカラスタンダードの広ろ美ろ浴室。
団地では珍しいユニットバスをオーダーして設置しました。
従来のシステムバスよりも広々した空間を実現し、開放感あふれる浴室を演出します。
さまざまな機能を備え、お手入れが簡単なのも特徴です。
元からあるバランス釜を給湯器に変更し、追い焚き機能もつけています。
浴槽の隣に横並びで設置されており、給排気機能を採用したガス風呂釜のこと。
室外の空気を取り入れてガスを燃焼しお湯を温め、使用済みの空気は排気口から外へ排出されます。
洗面化粧台はTOTOのオクターブ(750サイズ)
収納があった場所を解体し、洗面台を設置しました。
タッチレス水栓や、綺麗除菌水がオプションでついています。
節水に関心がある方・お手入れのしやすさを重視する方におすすめです!


トイレはTOTOのピュアレストMR。
トイレの扉も片引き戸に変更。
収納を解体し洗面台にした分、トイレ空間を広くすることができました。
床はクッションフロアで仕上げ、クロスも張り替えています。
シンプルなデザインと手洗い一体型が特徴です。
便器とタンクが一体になっているので、トイレ空間を広く使う事ができます。
使いやすい理想の玄関にイメチェン!
玄関土間はクッションフロアで仕上げました。


収納(下駄箱)には給水管があり既製品を設置することができなかったため、パナソニックのコンポリアをオーダーで設置しています。
機能性とデザイン性を兼ね備えた玄関収納システム。
玄関周りの様々なものをすっきりと収納することができます。
【リビング横の居室①】北向きのお部屋も断熱材やエコカラットで暖かく快適に
施主様のご要望により襖から3枚の片引戸に変更。
袖壁に扉を全て収納しスッキリした印象にリノベーションしています。




収納扉はオーダーサイズになるため、開口部分が大きく開く3枚の引き違い戸をご提案させていただきました。
中段に棚と2段のパイプハンガーを新しく設置しました。
北側には壁を造作し断熱材を入れ、エコカラットを施工。暖かく快適なお部屋にリノベーションしています。
温度を調整したり、匂いを吸収したりする機能があります。
快適な室内環境づくりと、おしゃれな空間デザインを両立できる便利な壁材です。
【居室②】3枚の引き違い戸で収納も使いやすくリノベーション
四畳半の和室を洋室に作り替え、天井と壁を造作しました。
3枚の引き違い戸で、収納扉とお部屋の入口扉の両方をカバーしています!
収納扉は全面開口するので、物の出し入れもスムーズになりました◎






リノベーション動画と費用総額!使用設備もご紹介
今回のリノベーション費用は総額798万円(税込)でした。
築55年の築古物件ではありましたが、断熱材の使用やオーダーメイドの建具などご要望にあわせた施工をし、魅力的なお部屋へイメチェンすることができました。
築古物件をイメチェンしたい方には、施主様のご希望をお伺いしながら、物件の状態に合わせたご提案をさせていただきます。
既製品を使用するなどコストを抑えてリフォームすることも可能ですので、是非イメチェンまでお問い合わせください!
今回使用した主要設備はこちら▼
- キッチン▶︎ステディア/クリナップ(カラー:トワルブルーグレー)
- ユニットバス▶︎広ろ美ろ浴室/タカラスタンダード(カラー:ウォールナット)
- 洗面台▶︎オクターブ/TOTO(カラー:ホワイトウッド)
- 壁面収納▶︎スリムインパウダー/EIDAI
- トイレ▶︎ピュアレストMR/TOTO
- シューズボックス▶︎コンポリア/パナソニック
今回施工を担当したイメチェン習志野店はデザイン性の高いリフォーム・リノベーションを得意としており、ご希望や予算に合わせてご提案いたしますので、お気軽にこちらからお問い合わせください!

この記事の監修者 篠原 昌志
(株)ココテラス代表取締役/一卵性の双子/山口県出身/職人・施工会社が薄利というリフォーム業界の悪い収益構造改革をする事を目標に、定額制リフォーム「イメチェン」のFC本部を運営。
現在全国42拠点で展開中。リフォーム事例を紹介するYouTubeのチャンネル登録者は約1.7万人。
一般住宅(分譲マンション・戸建)をおしゃれなお部屋へ!
定額制リフォーム「イメチェン」とは、1㎡(床面積)×1万円から始めることができる中古住宅(分譲マンション・戸建住宅)をオシャレなお部屋にイメージチェンジできる「定額制リフォーム」です。
施工エリアの確認だけでも大歓迎
見積もり依頼も大歓迎です!
中古住宅のリフォーム事例満載のパンフレット配布中!

定額制リフォーム「イメチェン」施工可能エリア
| 北関東エリア | 群馬県前橋市周辺 / 茨城県の一部 |
| 関東エリア | 埼玉県の一部 / 東京都の一部 / 神奈川県の一部 / 千葉県の一部 |
| 中部エリア | 静岡県静岡市・焼津市周辺 / 愛知県名古屋市・稲沢市周辺 |
| 関西エリア | 京都府京都市周辺 / 大阪府大阪市・枚方市周辺 / 兵庫県神戸市・明石市周辺・姫路市周辺 |
| 九州エリア | 福岡県福岡市周辺・北九州市周辺 |
オンラインリフォーム相談「イメチェンコンシェルジュ」

イメチェンコンシェルジュとはオンライン(GoogleMeet)でリフォームの無料相談が出来るサービスです。
リフォームのプロがあなたのお悩みを解決致します。
60分と限られた時間になりますので、事前に物件詳細(平面図・室内写真)やご希望の工事内容を共有頂ければ、より内容の濃い面談が可能になります。

間取り別リフォーム・リノベーション事例
金額別リフォーム・リノベーション事例
お部屋の大きさ別リフォーム・リノベーション事例
定額制リフォーム「イメチェン」デザイン別リフォーム事例
お部屋をイメチェンされたお客様の声



























