
この記事の監修者 篠原 昌志
(株)ココテラス代表取締役/一卵性の双子/山口県出身/職人・施工会社が薄利というリフォーム業界の悪い収益構造改革をする事を目標に、定額制リフォーム「イメチェン」のFC本部を運営。
現在全国42拠点で展開中。リフォーム事例を紹介するYouTubeチャンネルの登録者は約1.7万人超(2025年12月末時点)。
定額制リフォームを全国展開中!
今回は東京都渋谷区にある築44年、1LDK(41.79㎡)の分譲マンションです。
相続で取得されたお部屋でしたが、お子様の大学進学に合わせてリフォームされることに。
将来的に賃貸としての活用も視野に入れてリノベーションしたい、ということでイメチェンへご相談いただきました。
- 相続で取得した築古の分譲マンション
- 子ども(大学生)が居住する予定だが、将来的に賃貸・売却も考えている
- コストを抑えて設備を交換したい&配管の不安を解消したい
- グレーを基調にしたミニマルモダンなお部屋にイメチェン!
- コスパ良く水廻り交換と配管更新を実現!
今回の事例では、想定以上に配管の劣化が進んでいました。
古い配管をそのまま使用していると、水漏れによって下階へ影響が出る可能性もあります。
古い配管がそのままになっている築古物件をお持ちのオーナー様や、コスパ良く水廻りを一新したいオーナー様は、今回の事例をぜひ参考にしてください。
一般住宅(分譲マンション・戸建)向け定額制リフォーム「イメチェン」

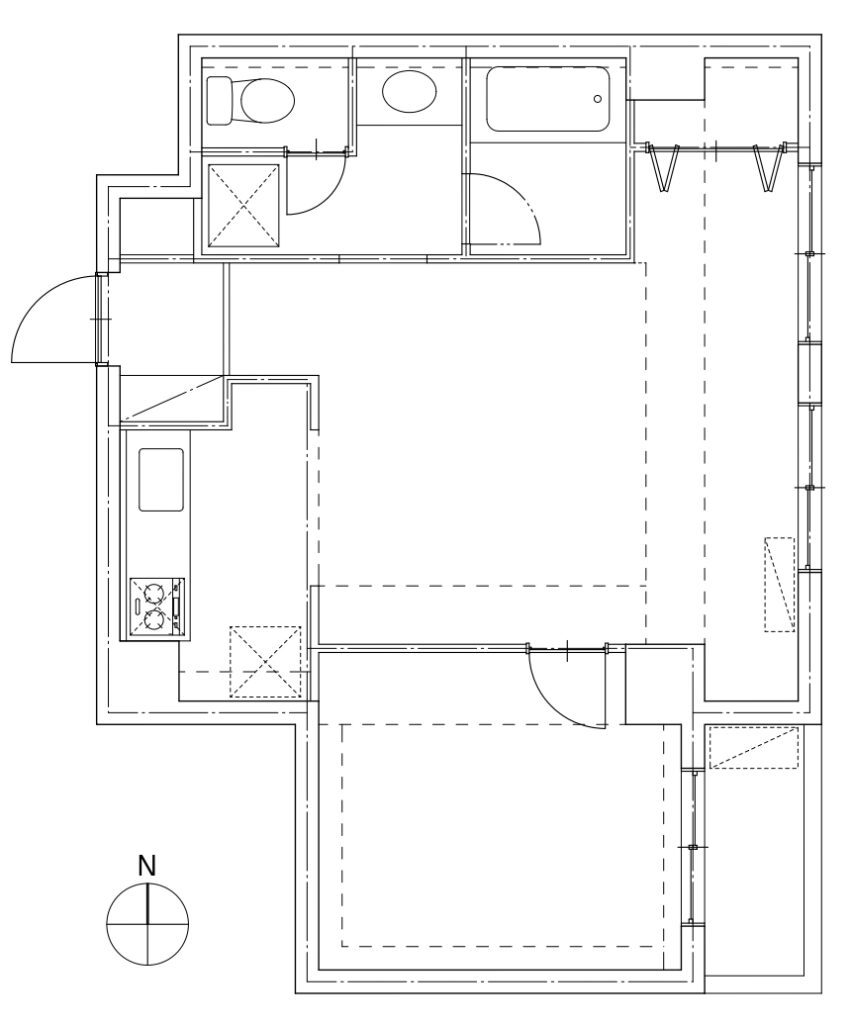
リフォーム前

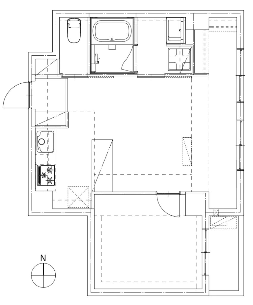
リフォーム後
定額制リフォーム「イメチェン」とは、1㎡(床面積)×1万円から始めることができる中古住宅(分譲マンション・戸建住宅)をオシャレなデザイナーズ住宅にイメージチェンジできる「定額制リフォーム」です。
全国42店舗で展開中!
中古住宅のリフォーム事例満載のパンフレット配布中!

物件概要
| 物件種別 | 分譲マンション |
| 住所 | 東京都渋谷区 |
| 竣工年月 | 1982年4月(リフォーム当時 築44年) |
| 構造 | 鉄筋コンクリート造 |
| 間取り(面積) | 1LDK(41.79㎡) |
| リフォーム費用 | 737万(税込) |


リノベーション内容
- キッチン交換(LIXIL シエラS)
- 配管ルート最適化
- 床一部解体・補修(配管工事に伴う)
- 排水管交換(逆勾配改善のため床解体)
- 給水管・給湯管更新(新規ルート配管)
- 追い焚き配管新設
- エアコン新設(リビング・洋室)
- 洗面化粧台交換
- ユニットバス交換
- 建具交換
- クロス貼替
- ウォークインクローゼット新設(オープン型)
- 玄関収納増設
- その他
LIXILラシッサSの新色建具でミニマルな印象のリビングにイメチェン!





今回は1LDKから大きな間取り変更は行っていません。
オーナー様がシンプルなモルタル調を好まれたので、全体的にミニマルなデザインでまとめました。
建具はすべて交換しています。
リビングからトイレ・水回りに入る扉はLIXIL ラシッサSに交換しました。
ミニマルな雰囲気にぴったりの新色コージーライトグレーを採用。
木目の質感を活かしたベーシックなデザインの建具。
キズや汚れに配慮した表面仕上げで、日常使いでも美しさを保ちやすい仕様。カラーやデザインのバリエーションも豊富です。
上吊り引き戸で、天井にレールを埋め込んでいます。
クロスは腰高で切り替えてデザイン的なアクセントをつけました。
グレーの無彩色でミニマルにまとめつつ、カジュアルさも加えた意匠壁に仕上げています。
リビング奥にあった既存のクローゼットは、ウォークインクローゼットに変更しました。





キッチンはLIXIL シエラS(サイズ:1800)に交換しました。
使いやすさとデザイン性を両立したシステムキッチン。
高い収納力とお手入れのしやすさで、毎日の料理がもっと快適になります。
解体して初めて分かったことですが、元の排水管が逆勾配になっていました。
逆勾配の状態とは、水の流れる方向に対して配管が上がってしまっている状態を指します。
今回の物件では、リノベーション前は水が溜まりやすい状態で、排水不良が起きていた可能性があります。
今回はキッチン位置自体は変えていませんが、床を解体して排水管も交換しています。
レンジフードは梁の影響で通常のものが使えなかったため、toolbox製の横抜き対応のレンジフードを採用しています。
吊戸棚も同様に梁の影響で大きなタイプは設置できませんでした。
使い勝手を優先し、薄型でフラップアップタイプの吊戸棚を導入しています。
対面カウンターはIKEAのカウンターを固定して設置しました。

もともと給湯器は洋室側のバルコニーへ設置してあり、サッシの下から洋室の床下を通って水廻りへ配管されているような状態でした。

既存の立ち上がりの配管は、交換の際に引き抜き、新しく配管するために引き抜いた後の穴を大きくする必要がありました。
穴を大きくするとコンクリートの防水層を痛めてしまい、雨水の侵入や水漏れのリスクが高まります。
通常は古い配管を一部残したまま配管を更新しますが、古い箇所にリスクが残る点に注意が必要です。
そのため、今回は配管ルートを変更。
また、既存では洋室にエアコンが設置できなかったので、コア抜きを行い、新規で冷媒管を通す穴を設けて設置できるようにしています。
壁にコア抜きしない場合、窓に塞ぎパネルを設置して貫通させる施工になります。
塞ぎパネルを設置すると、窓が完全に締め切らず音が漏れたり気密性が下がるデメリットがあります。
なお、今回のリノベーションでは、マンションの規約的にコア抜きは問題ありませんでした。
分譲マンションでは管理組合の規約上、コア抜き工事ができない場合もあります。
コア抜き工事をする場合は事前の確認が必要です!
リビングのエアコンは、もともと窓際上部に塞ぎ板をつけて設置していました。

設置はできたものの、排水のためのドレン管の勾配が取りにくい位置。
そのため、今回は新しい給湯器を反対側に位置変更し、エアコン2台分と給湯器の2本分を合わせてコア抜きしてリビング側に配管を通しました。
結果的に洋室からではなくリビングの床から水廻りへ配管する形になったため、既存の配管ルートよりも短くなっています。
配管更新のために大きく床を開口したり、配管ルートを壊していくと、それぞれの補修と復旧に費用がかかります。
今回は最短かつ一番無理のないルートで配管更新したため、補修費用も抑えられました。
水廻りはトイレを独立・洗面台とユニットバスを配置変更
水廻りの配置は、トイレを洗面脱衣所から独立させる形に変更しました。


トイレはPanasonic アラウーノV-limitedに交換しました。
スッキリ見えるタンクレストイレで、水アカがつきにくい清掃性が魅力。
3Dツイスター水流で汚れを渦巻きに洗い流し、節水性も高く、停電時にも水が流せる機能が備わっています。


水廻りの床は黒いフロアタイルを採用。
洗面化粧台はPanasonic C-LINE(サイズ:750)に交換しました。
空間に合わせやすいシンプルなデザインの洗面化粧台。
使いやすさに配慮した収納設計で、日常の身支度を快適にサポート。プランやカラーのバリエーションも選べます。
水廻りのレイアウトは一新しています。


ユニットバスはTOTO WS(カラー:ベーシスホワイト)を採用。
滑らかなフォルムと清掃性の高さが魅力。
汚れがつきにくい素材でお手入れ簡単、毎日快適に使える洗面空間を実現します。
シャワーは一番安いモデルを選ぶと、ホースの色が安見えしてしまって雰囲気が台無しに。
シャワーホースの色は見落としがちですが、デザイン性の高いお部屋を目指すなら少しグレードアップしておくのをおすすめします。
玄関は収納スペースを更新!オープン棚がお出かけ周りの小物を収納しやすい

玄関右側には扉付きの収納がありましたが、クロスを貼りなおしてオープン収納へ変更しました。
このお部屋のリノベーション費用総額&事例動画
今回のリノベーション費用は総額737万円(税込み)でした。
今回は築44年の物件で、配管更新が必須。
配管を交換・ルート変更した上で、さらに水廻りの設備も新調しているリノベーションとしては、コストをうまく抑えた施工となっています。
ズバリ、施工会社に設備選びをおまかせすること!
施工会社によって、取扱いが多いメーカー(LIXILやPanasonicなど)は異なります。
また、時期によっても安く仕入れられる商品は変わります。
コスパ重視で水廻りを選択したければ、営業の方におすすめ商品を提案してもらう方が、お得な商品や物が使えることが多いのです。
今回の事例でいうと、水廻り4点(キッチン・トイレ・洗面台・ユニットバス)で合計約180万円しかかかっていません。
もちろん、ただ安いだけの商品ではありません。リノベーション時に一番安く仕入れできた中で、仕様や内容も十分良い物を採用しています。
ショールームで商品を検討すると、ここからさらに60万~70万円は増額するでしょう。
リノベーションの際に費用を少しでも抑えたい、あるいは水廻りの設備を提案してもらいたいという方は、イメチェンまでご相談ください。

この記事の監修者 篠原 昌志
(株)ココテラス代表取締役/一卵性の双子/山口県出身/職人・施工会社が薄利というリフォーム業界の悪い収益構造改革をする事を目標に、定額制リフォーム「イメチェン」のFC本部を運営。
現在全国42拠点で展開中。リフォーム事例を紹介するYouTubeのチャンネル登録者は約1.7万人。
一般住宅(分譲マンション・戸建)をおしゃれなお部屋へ!
定額制リフォーム「イメチェン」とは、1㎡(床面積)×1万円から始めることができる中古住宅(分譲マンション・戸建住宅)をオシャレなお部屋にイメージチェンジできる「定額制リフォーム」です。
施工エリアの確認だけでも大歓迎
見積もり依頼も大歓迎です!
中古住宅のリフォーム事例満載のパンフレット配布中!

定額制リフォーム「イメチェン」施工可能エリア
| 北関東エリア | 群馬県前橋市周辺 / 茨城県の一部 |
| 関東エリア | 埼玉県の一部 / 東京都の一部 / 神奈川県の一部 / 千葉県の一部 |
| 中部エリア | 静岡県静岡市・焼津市周辺 / 愛知県名古屋市・稲沢市周辺 |
| 関西エリア | 京都府京都市周辺 / 大阪府大阪市・枚方市周辺 / 兵庫県神戸市・明石市周辺・姫路市周辺 |
| 九州エリア | 福岡県福岡市周辺・北九州市周辺 |
オンラインリフォーム相談「イメチェンコンシェルジュ」

イメチェンコンシェルジュとはオンライン(GoogleMeet)でリフォームの無料相談が出来るサービスです。
リフォームのプロがあなたのお悩みを解決致します。
60分と限られた時間になりますので、事前に物件詳細(平面図・室内写真)やご希望の工事内容を共有頂ければ、より内容の濃い面談が可能になります。

間取り別リフォーム・リノベーション事例
金額別リフォーム・リノベーション事例
お部屋の大きさ別リフォーム・リノベーション事例
定額制リフォーム「イメチェン」デザイン別リフォーム事例
お部屋をイメチェンされたお客様の声
























