注意事項
➀ 現在賃貸人または購入予定者を募集しているため、内見が入る場合があります。その際には時間の変更があることはあらかじめご了承願います。
➁ 当日現場見学会の様子をYouTube用動画の撮影を行う事があります。プライバシーには最大限配慮して撮影・編集致します。あらかじめご了承願います。
③ 参加希望の方は事前予約をお願い致します。ご予約いただいた方に詳細住所をメールにてお送り致します。
開催日程
【完工後】2026年3月8日(日)東京都港区高輪
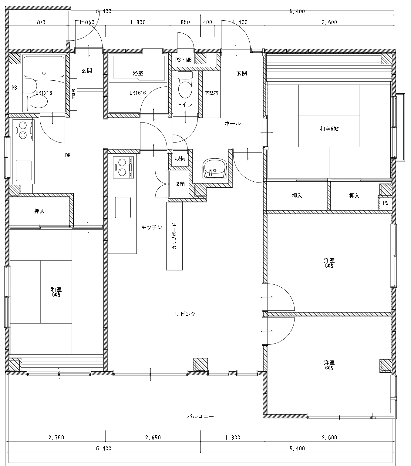
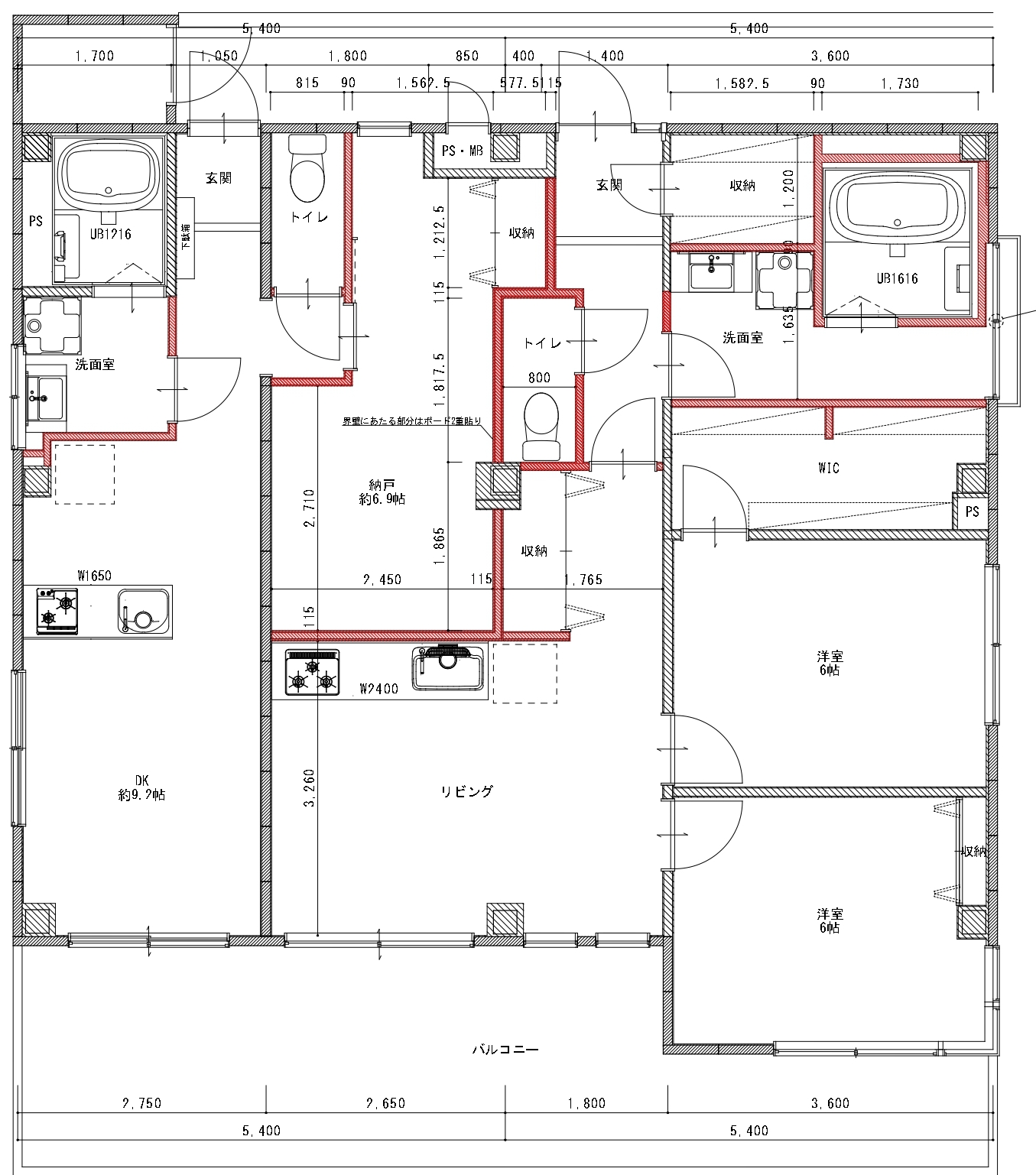
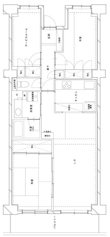
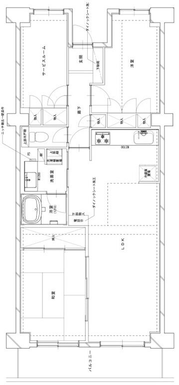
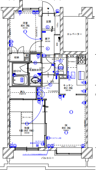
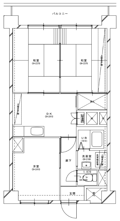
【着工前】2026年3月7日(土)東京都大田区東糀谷※4月末完工予定
【満員御礼】2025年12月6日(土)東京都中央区入船
【満員御礼】2025年11月29日(土)東京都江東区越中島
【満員御礼】2025年11月15日(土)11月16日(日)神奈川県茅ケ崎市
【満員御礼】2025年11月9日(日)東京都江東区清澄
【満員御礼】2025年6月28日(土)29日(日)千葉県船橋市前新西
【満員御礼】2025年3月22日(土)23日(日)東京都渋谷区笹塚
【満員御礼】2025年1月25日(土)神奈川県横浜市南区
【着工前見学会】2026年3月7日(土)10:00~15:00
| 物件種別 | 賃貸マンション |
| 住所 | 東京都大田区東糀谷 |
| 竣工年月 | 1990年3月 (築36年) |
| 構造 | 鉄骨造 |
| 間取り(面積) | 2世帯住宅を賃貸向けに2部屋に分離 1LDK・2LDK(合計:101㎡) |
| リフォーム費用 | 1800万円(税込) |
| 主催 | イメチェン品川南大井店 |






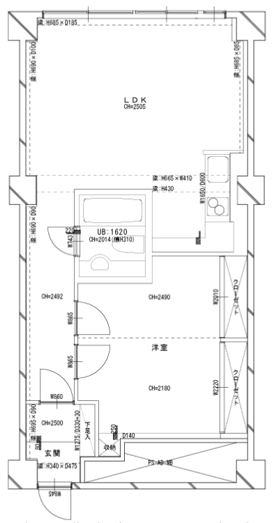
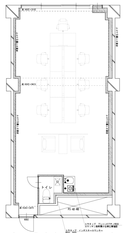
【完工後見学会】2026年3月8日(日)11:00~15:00
| 物件種別 | 賃貸マンション |
| 住所 | 東京都港区高輪 |
| 竣工年月 | 1970年5月 (築55年) |
| 構造 | RC造 |
| 間取り(面積) | 1LDK→1R事務所仕様(51㎡) |
| リフォーム費用 | 600万円(税込) |
| 主催 | イメチェン両国店 |






最新の見学会情報はメルマガで配信しています。まだ登録されていない方は下記からご登録下さい。







